世博黄浦体育园
南京/建筑师/5年前/349浏览
版权
世博黄浦体育园
世博黄浦体育园,上海 / 徐建兵+上海禾唐联合设计
黄浦西岸城市更新 滨江全民体育盛会。
基调
今天的上海,拥有2400万人口,城市更新,已然成为了解决上海这样一线城市对待处于发展停滞区域价值利用的有效手段。解决这类区域的现状与市民高质量生活场所诉求不匹配的矛盾,重新赋予活力,有效利用土地资源,节约建造成本。
黄浦江作为上海的母亲河流,沿线的城市更新更受关注,借此发展契机,于外马路1353号处,建设以运动为主题的“世博黄浦体育园”-成为沿江文化体育景观轴上重要的纽带。
本项目用地面积29841平米,总建筑面积为7030平米,建成后是集室外体育场、室内体育馆、商业配套、会议中心、办公、停车及景观等功能为一体的综合服务场所。
构建
本案地处南浦大桥以南,黄浦江以西,西邻内环高架,沿江往北可达轮渡码头、黄浦工人体育馆、上海“老码头”,往南可达上海当代艺术馆。地理位置优渥,承载着文化体育类城市更新与缝合黄浦滨江西岸沿线城市肌理的重要任务。
场地内原有功能为物流仓储、停车以及镭射互动游戏,本次设计需要对原本被城市遗忘的区域进行更新,整合场地资源、汇聚人流、唤醒黄浦江沿线重要节点的魅力与生机。
世博黄浦体育园本着谨慎的城市更新原则“尽量维持建筑原有主体建筑;强调原有空间尺度和新功能的有序融合,创造区域公共空间新节点”,是一次对特殊地段既有场地及建筑激活的积极尝试。
本次的改造和加建,根据体育场地需要拆除了部分体量较小的建筑,并结合具体功能要求,调整场地规划。
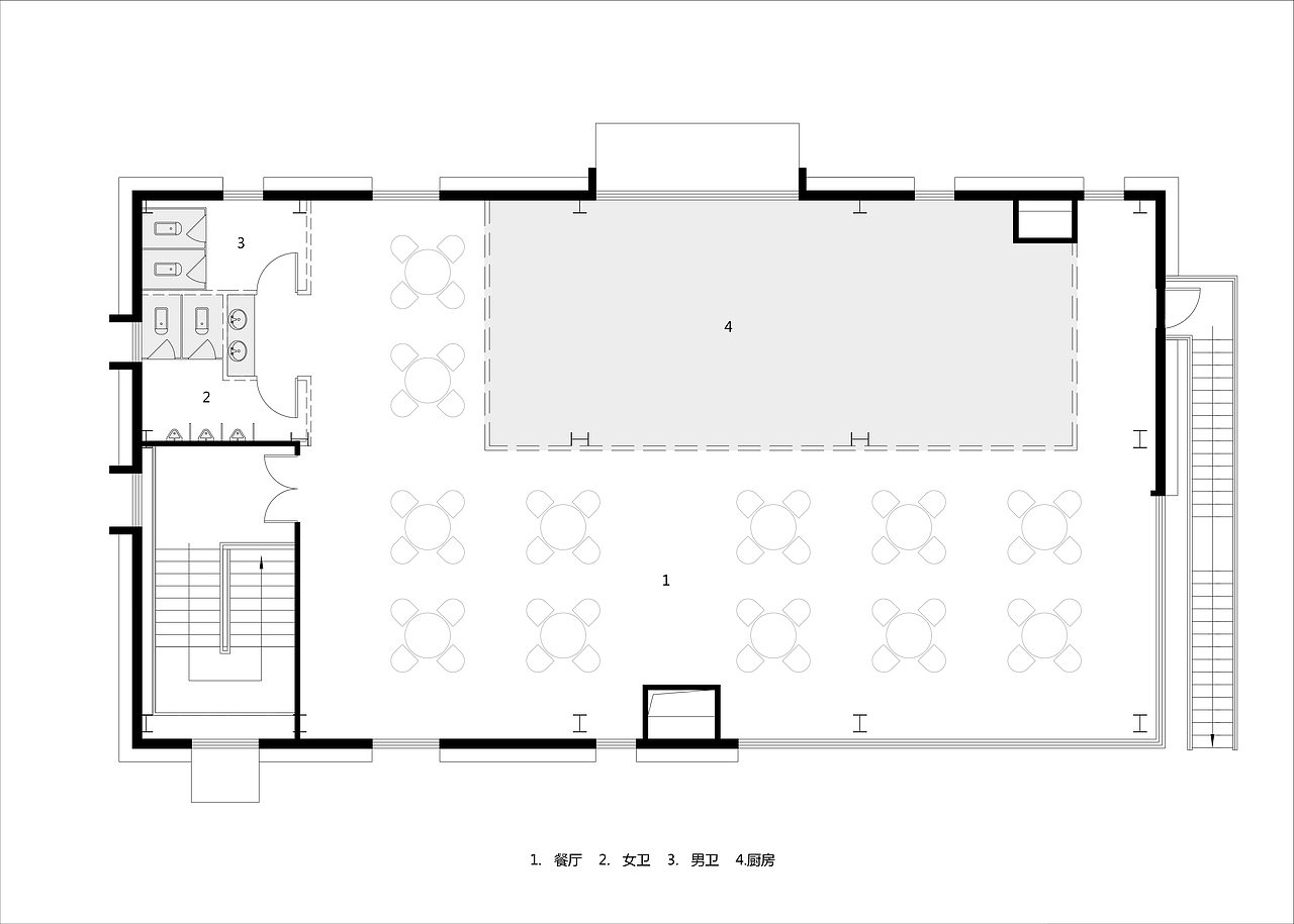
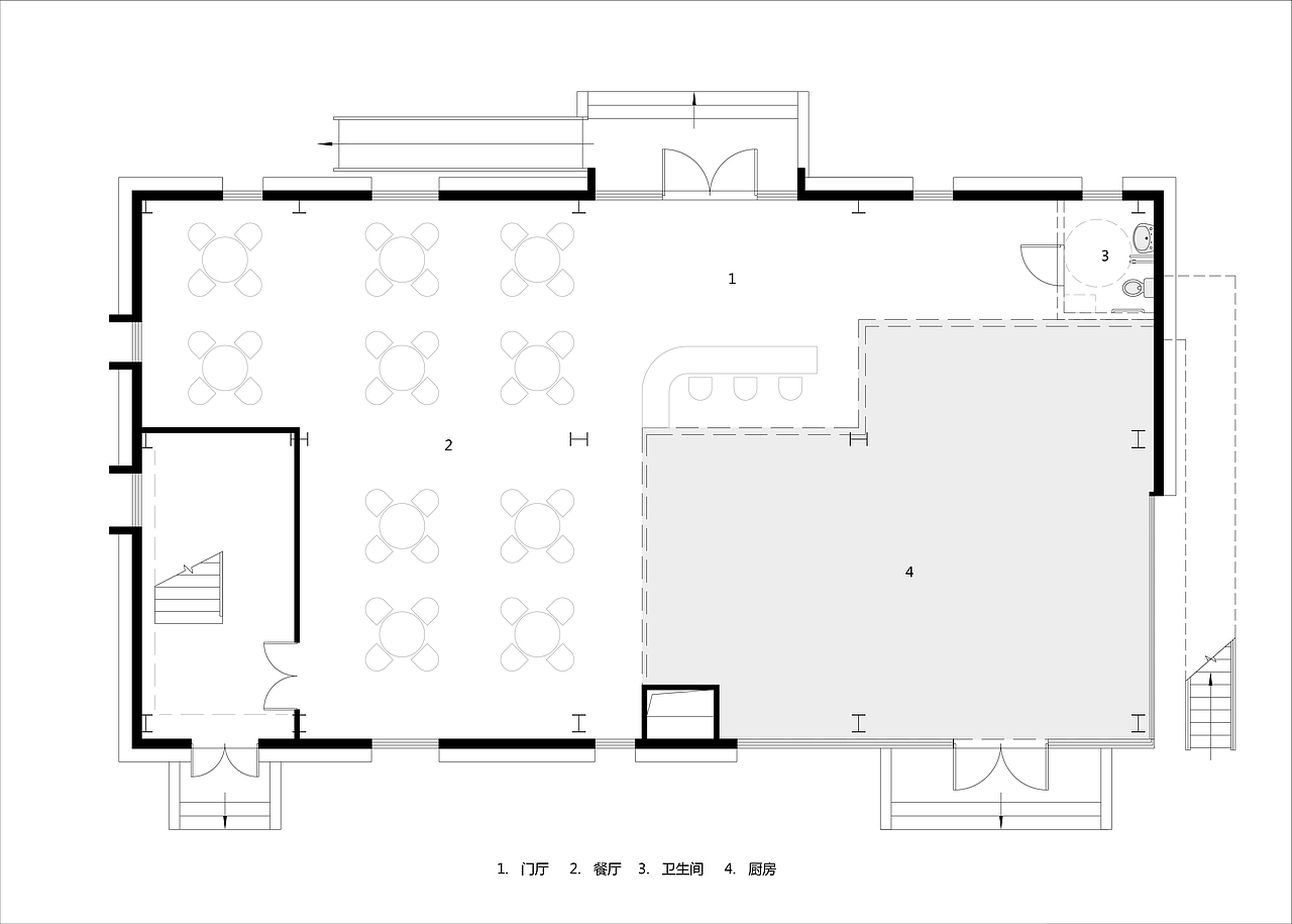
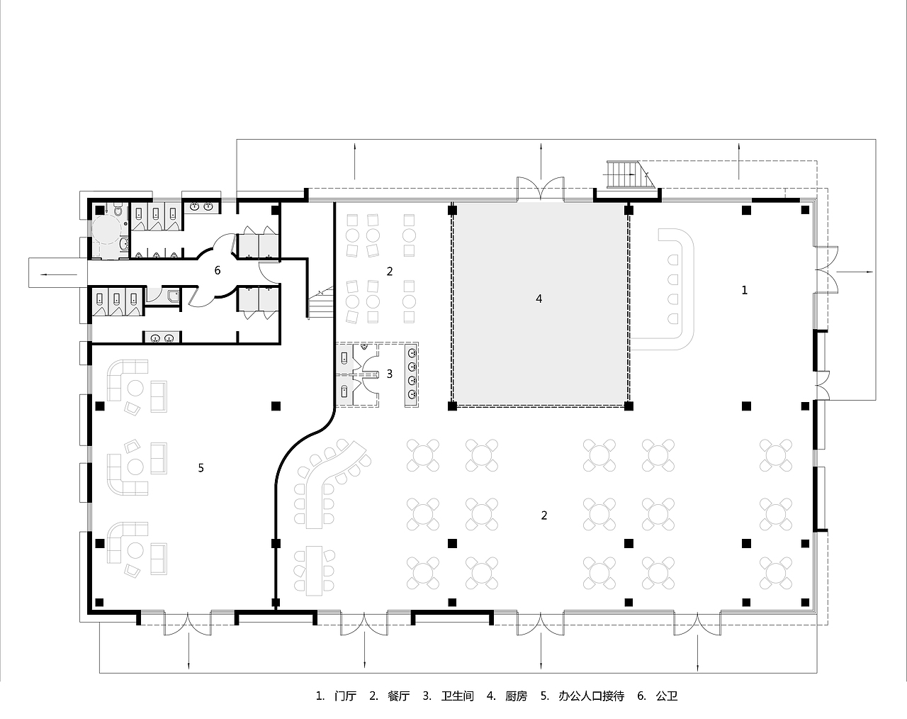
1#楼综合馆总面积6300平方米,包括标准篮球场,羽毛球场、网球场、乒乓球场、台球馆、健身房、会议中心及相关配套服务。
2#楼为面积600平方米的配套餐饮。
3#楼为面积1500平方米的配套餐饮及办公。
同时,顺应黄浦江沿线景观及视线要求,调整室外景观,在建筑外立面上应用垂直绿化,使建筑相对消影,成为滨江绿化的有机部分。
将来,随着黄浦江沿线各区域城市节点的更新与完善,一条焕然一新的沿江景观轴即将呈现在人们眼前。世博黄浦体育园作为此轴线的首个大型体育公园,也必将发挥串联纽带的作用,与其它各部分共同组建黄浦滨江新秩序,成为黄浦西岸市民体育活动的新地标。
13
Report
声明
1
Share
相关推荐
in to comment
Add emoji
喜欢TA的作品吗?喜欢就快来夸夸TA吧!
You may like
相关收藏夹
Log in
13Log in and synchronize recommended records
1Log in and add to My Favorites
评论Log in and comment your thoughts
分享Share
1









































































































