大学作品归类
广州/设计爱好者/7年前/600浏览
版权
大学作品归类
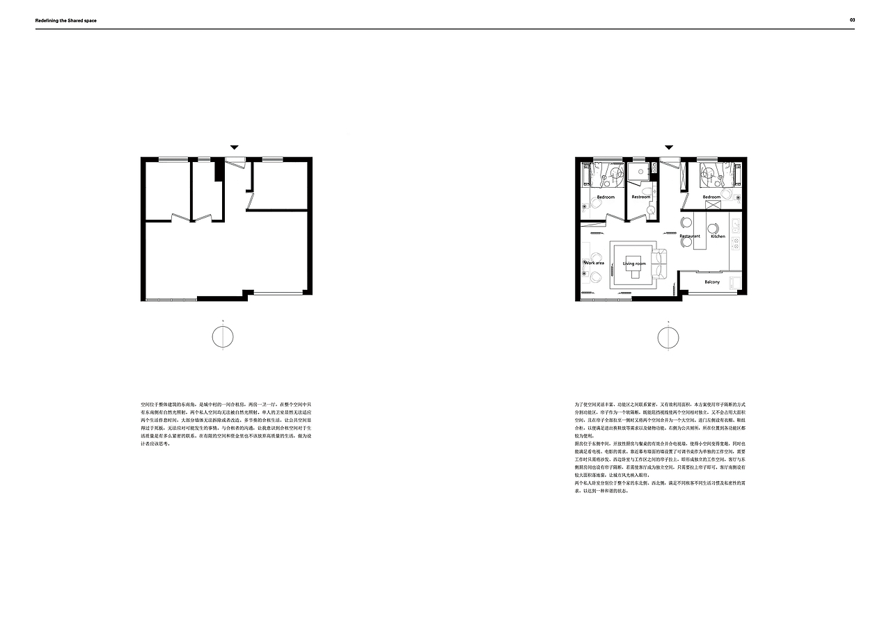
对自己大学四年来的想法和稿件进行了整理,其中不乏得奖作品。进行整理后,做为探索空间设计的记录,是对自己大学的一次总结
4
Report
声明
5
Share
相关推荐
in to comment
Add emoji
喜欢TA的作品吗?喜欢就快来夸夸TA吧!
You may like
相关收藏夹
Log in
4Log in and synchronize recommended records
5Log in and add to My Favorites
评论Log in and comment your thoughts
分享Share
























































































































