“野火堆”老北京火锅店
杭州/室内设计师/6年前/10092浏览
版权
“野火堆”老北京火锅店
项目名称:“野火堆”老北京火锅店
空间设计:杭州全文设计事务所
视觉设计:杭州即时反应文件艺术 / 陈至函
摄 影 :黄临海 /全文
项目地址:浙江省杭州市中山中路218号平海国际大厦
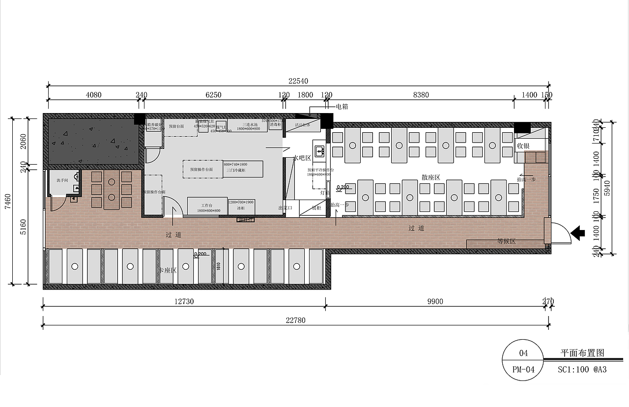
项目面积:约140平方米
竣工日期:2018.12
主要材料:硅藻泥、水磨石、地板、瓷砖 、黄铜、不锈钢 、镀锌铁板
野火堆火锅店位于杭州湖滨商圈附近的中河中路,专营老北京特色铜火锅。
前身是杭州转塘面向美院学生生意火爆的苍蝇小馆......
120平面餐厅包含90平餐区,76个餐位,在如此拥挤的空间内,在满足需求功能的同时,
希望可以创造一个私密,柔软且丰富的就餐体验。设计概念是转化和提取老北京的文化底蕴,
创造现代又有传统记忆的饮食空间 。
45
Report
声明
161
Share
相关推荐
in to comment
Add emoji
喜欢TA的作品吗?喜欢就快来夸夸TA吧!
You may like
相关收藏夹
Log in
45Log in and synchronize recommended records
99+Log in and add to My Favorites
评论Log in and comment your thoughts
分享Share














































































![AIGC助力电商视觉×头盔系列AI生成 [动态化探索实践]](https://img.zcool.cn/community/68e8da720067cv09d9quve1777.png?x-oss-process=image/resize,m_fill,w_520,h_390,limit_1/auto-orient,1/sharpen,100/quality,q_80)



























