Explore
AI Agent
AI Learning
Find Jobs
Find Designers
Find Assets
Log in
Sign up
1.3.66
All
Assets
Retouching
Picture
Collections
Designers
版权图库
课程
以图搜图
九渊鲤JYL
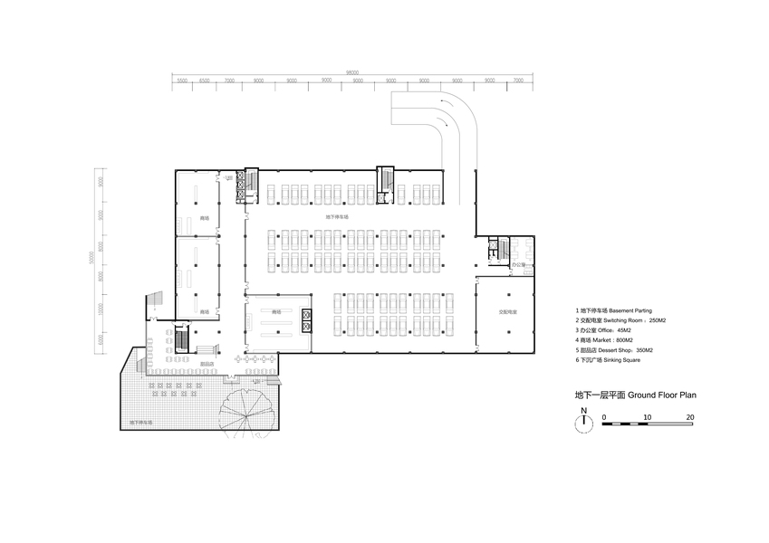
【案例分享】都团村公共服务中心,福建
Collect
小鱼AI设计
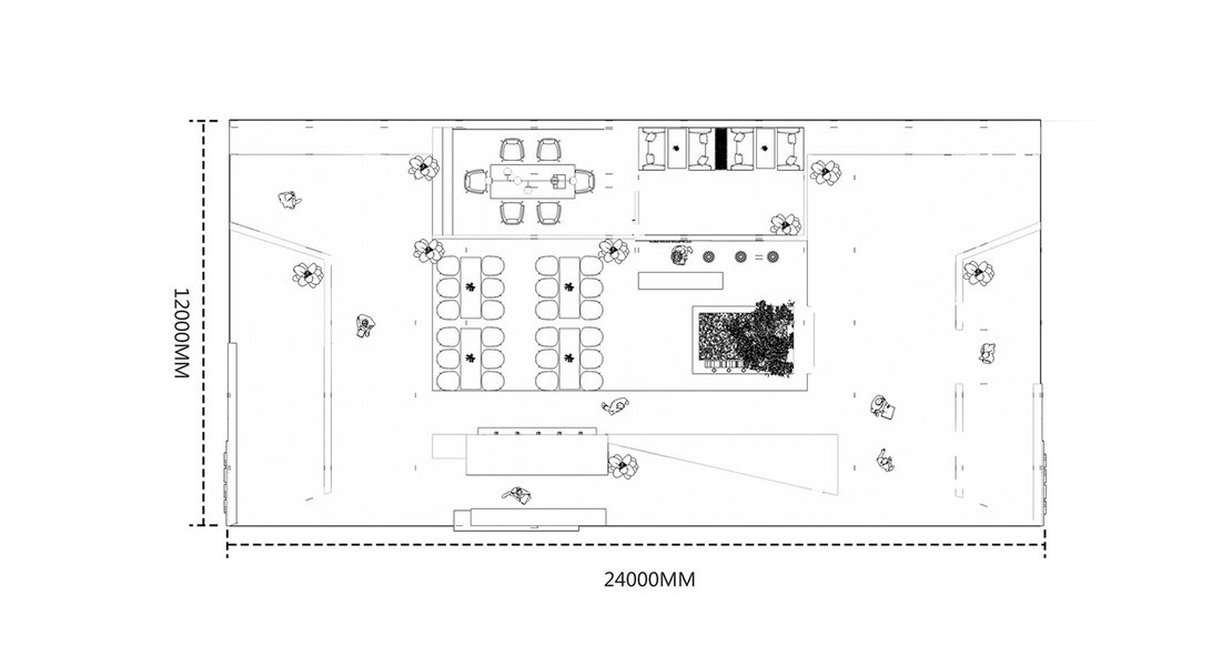
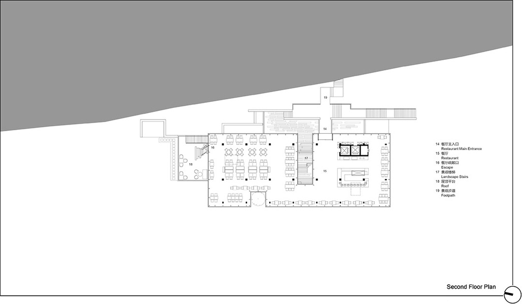
半山休闲餐厅改造设计方案和实体效果
Collect
星球建筑事务所
北京三里屯 - SOMESOME餐酒吧
Collect
九渊鲤JYL
【案例分享】杭州万科Q·Square劝学荟小镇中心
Collect
集文设计
婺源虹关村留耕堂修复与改造
Collect
weiweimao_
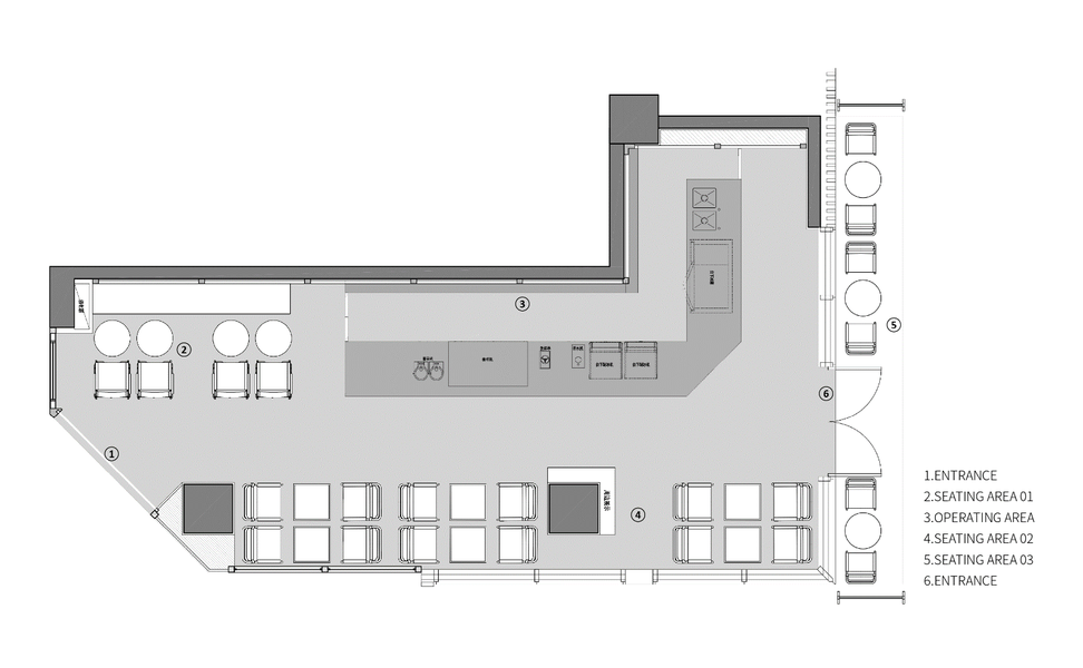
宇宙是甜的甜品店,深圳
Collect
丢丢勒
EOSS华建
Collect
子然空间设计
徐科新鲜火锅一店
Collect
INGROUP创意设计
INGROUP x McDonald's | 打造潮流网红新地标!
Collect
松计画
bosie无性别实验室 / 全国首店
Collect
众舍設計事務所
众舍 | zones「La Vie」
Collect
愿梦想的光照亮你
云南昆明华夏会所概念设计
Collect
子然空间设计
徐科新鲜火锅一店
Collect
INGROUP创意设计
INGROUP x McDonald's | 打造潮流网红新地标!
Collect
宇智波桐
项目|咖啡厅
Collect
麦哲伦设计
成都甜品奶茶店设计公司作品案例分享麦哲伦设计
Collect
众舍設計事務所
众舍 | zones「 木从久 · 原创现代茶馆 」
Collect
湖南科技大学
#2021青春答卷#<和“风”起舞 与“光”同耀>
Collect
湖南科技大学
#2021青春答卷#<和“风”起舞 与“光”同耀>
Collect
TheSecondDesign
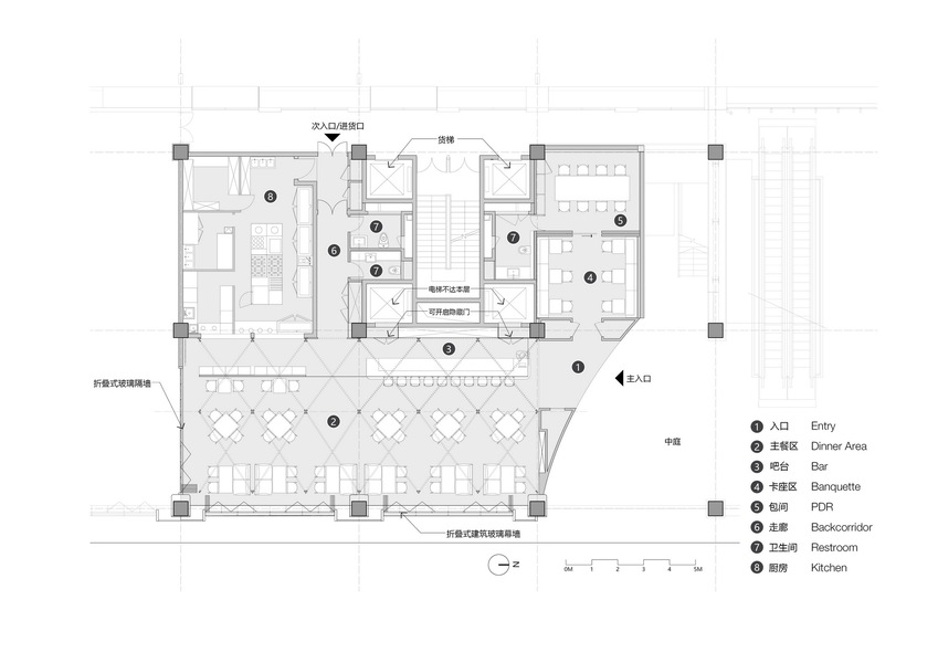
M Stand仁恒仓街店
Collect
学徒佳枫
科技与信任,从一个计算机学院的空间设计开始
Collect
效果图设计莉莉
餐吧案例
Collect
界非界空间设计
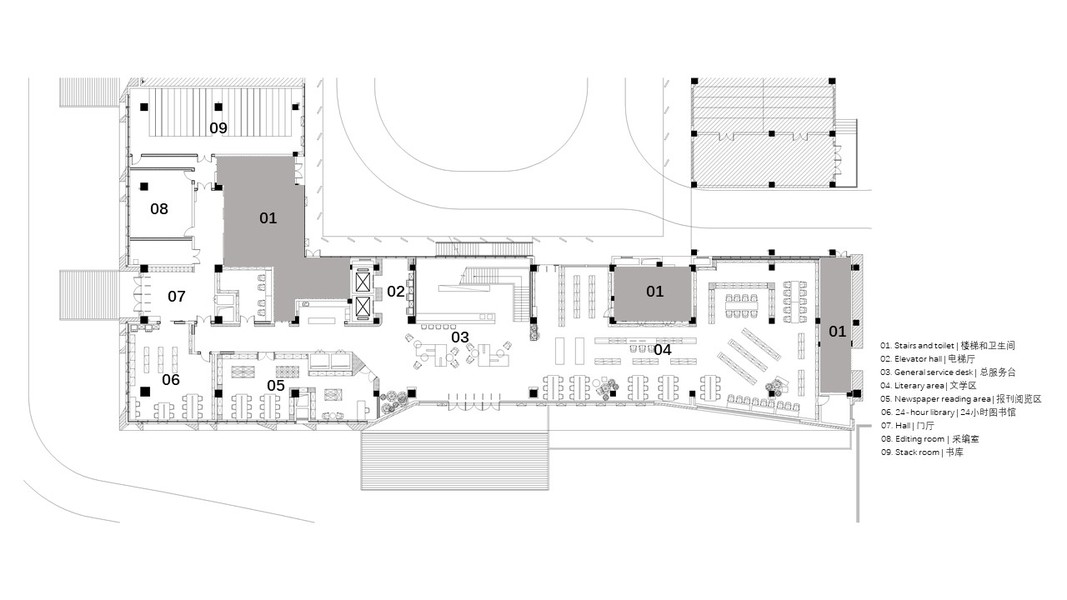
观和书院:高下相倾,音声相和 / 太和图书馆
Collect
五蛋
王府井高层酒店建筑设计
Collect
布道设计
【布道作品】古堡庆典 | BACVACA 烘焙坊
Collect
朴开十向
SWAY酒吧-武汉
Collect
集文设计
MADE LIM品牌空间
Collect
居寺空间
GS Project - 涂料专卖店设计
Collect
JSD简璞设计
BAN XIAOXUE | 向自然而生
Collect