Explore
AI Agent
AI Learning
Find Jobs
Find Designers
Find Assets
Log in
Sign up
1.3.70
All
Assets
Retouching
Picture
Collections
Designers
版权图库
课程
以图搜图
Tt唐恬超甜
工装&Venus精品女装店 - 空间设计展示 -Surprise金喜
Collect
夏沁呀
服装店设计——女装店铺
Collect
x小凡凡
服装店设计——女装店铺
Collect
苏颜吖
工装&Venus精品女装店 - 空间设计展示 -Surprise金喜
Collect
小程曦
Venus精品女装店 空间 展示设计
Collect
方案设计师
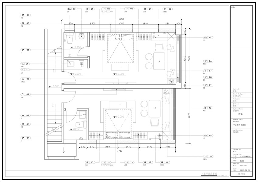
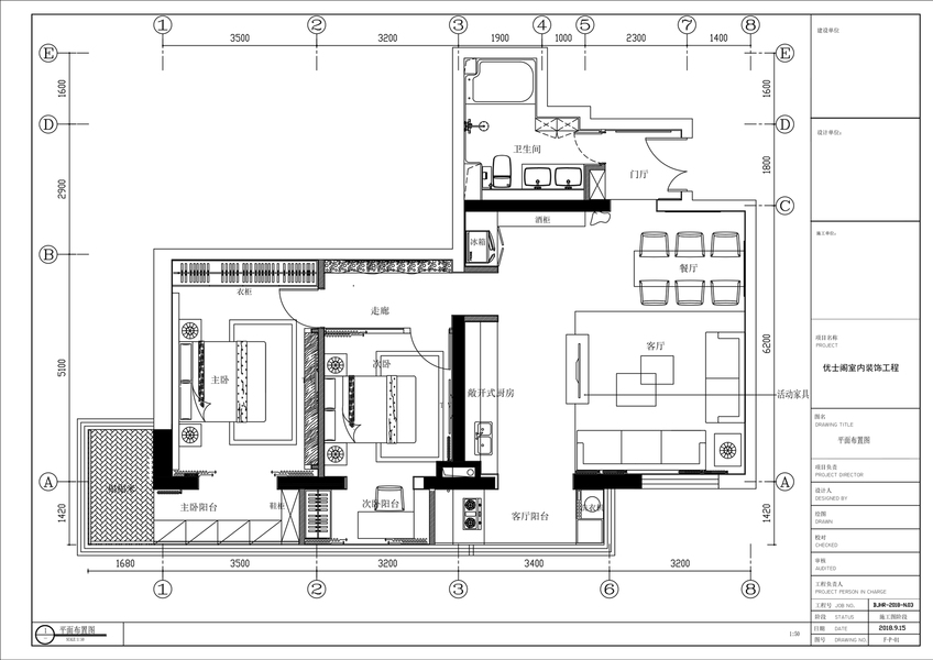
朝阳区双井优士阁
Collect
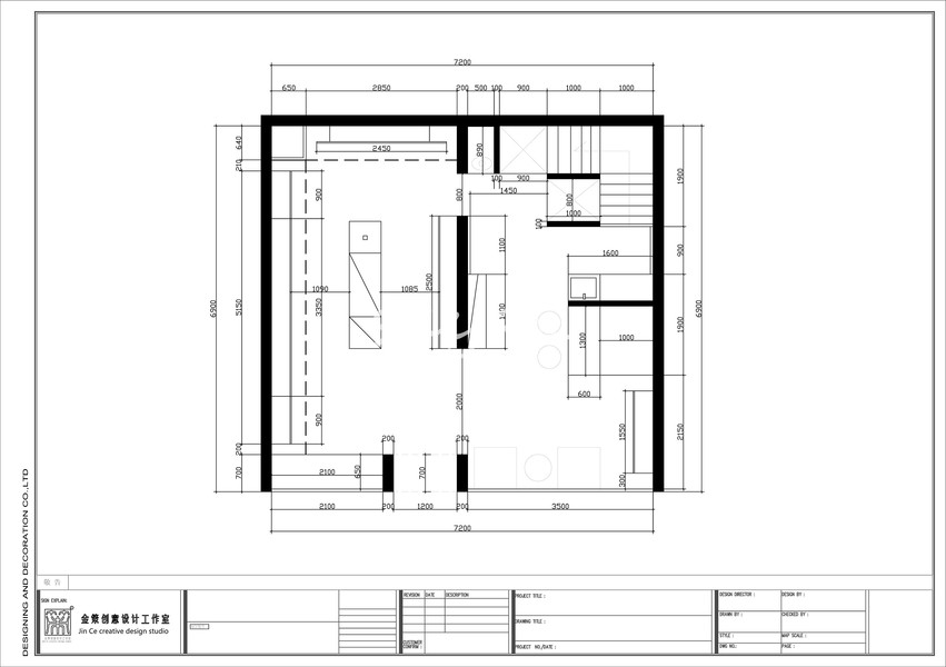
安徽三口设计培训
合肥短期室内设计培训 cad施工图纸培训
Collect
室内设计李
CAD施工图学员作品分享——安徽三口设计培训
Collect
室内设计李
三口设计培训分享CAD施工图学员作品
Collect
三口设计培训
三口设计室内设计培训学员作品出炉啦
Collect
CHOCOLIIII
2020作品集
Collect
安徽三口设计培训
三口设计培训分享室内设计培训课程内容
Collect
效果图小芳
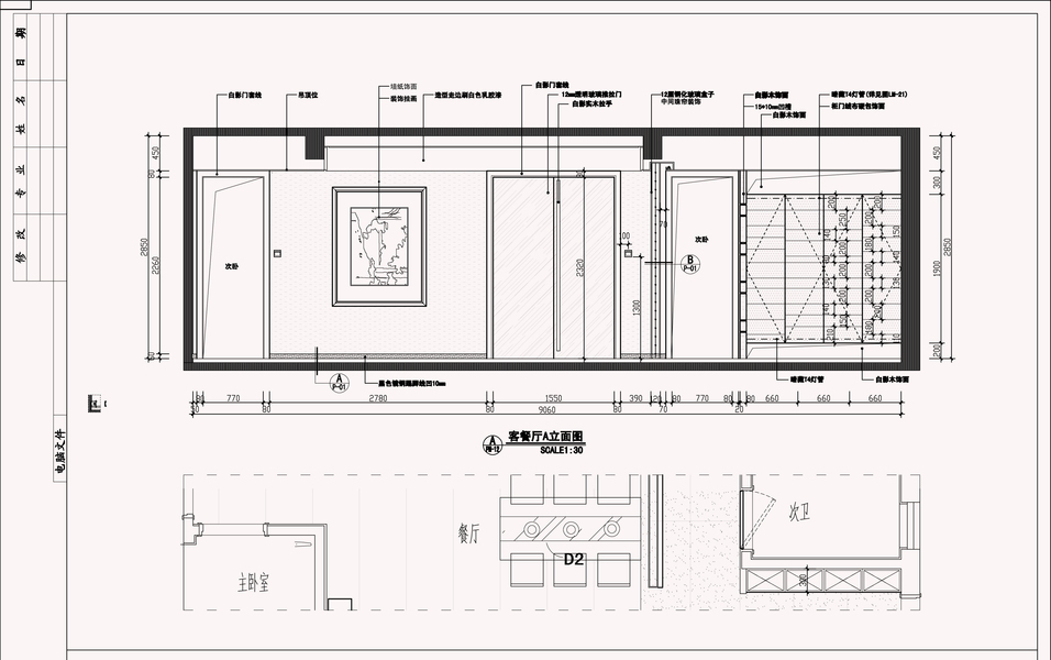
福建同安林先生自建房装饰施工图平面系统图部分案例
Collect
效果图小芳
福建同安林先生自建房装饰施工图平面系统图部分案例
Collect
猫汤和也
现代中式小别墅
Collect
小小猪猪bo
小刘作品集
Collect
小小猪猪bo
小刘作品集
Collect
Ronny聪
CAD建筑施工图
Collect
1992效果图汉堡
民宿施工图节选
Collect
效果图小芳
福建同安林先生自建房装饰施工图平面系统图部分案例
Collect
室内设计李
三口设计培训分享CAD施工图学员作品
Collect
安徽三口设计培训
合肥短期的零基础室内设计培训 效果图培训
Collect
小小猪猪bo
小刘作品集
Collect
猫汤和也
现代中式小别墅
Collect
Mr_Liang_
大久岩村项目施工图
Collect
室内设计李
CAD施工图学员作品分享——安徽三口设计培训
Collect
OXDGROUP大姚
KEYOUMI `未来补给站 -(便利店)
Collect
wu小礼物
橘色与青色的微妙接触
Collect
Ronny聪
CAD建筑施工图
Collect