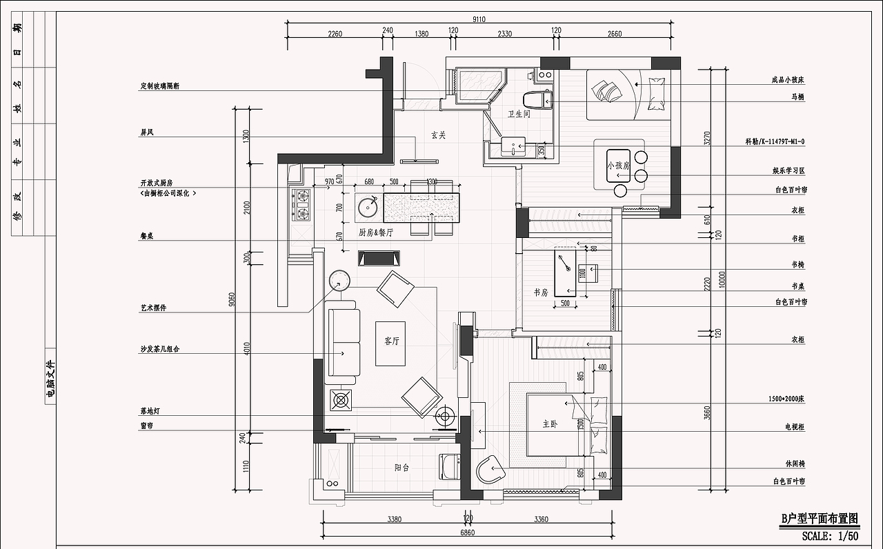
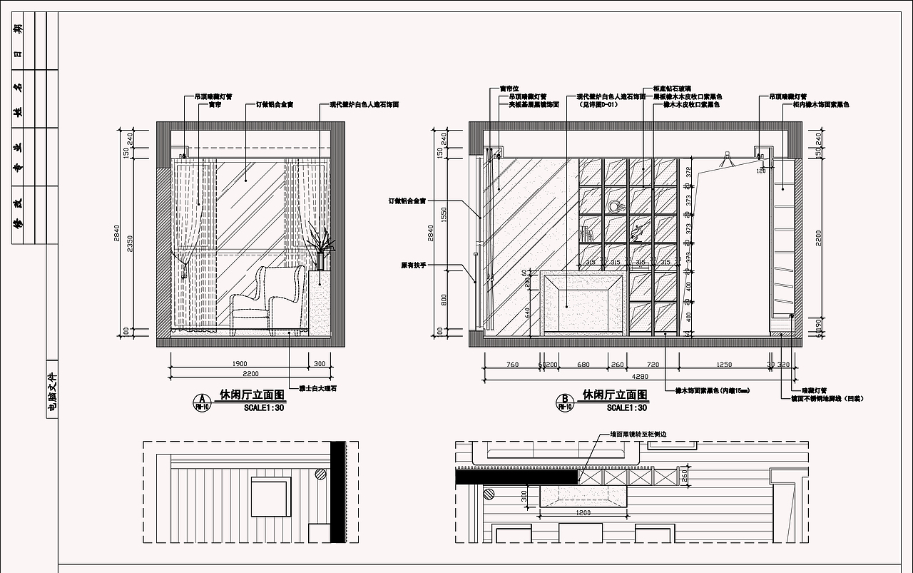
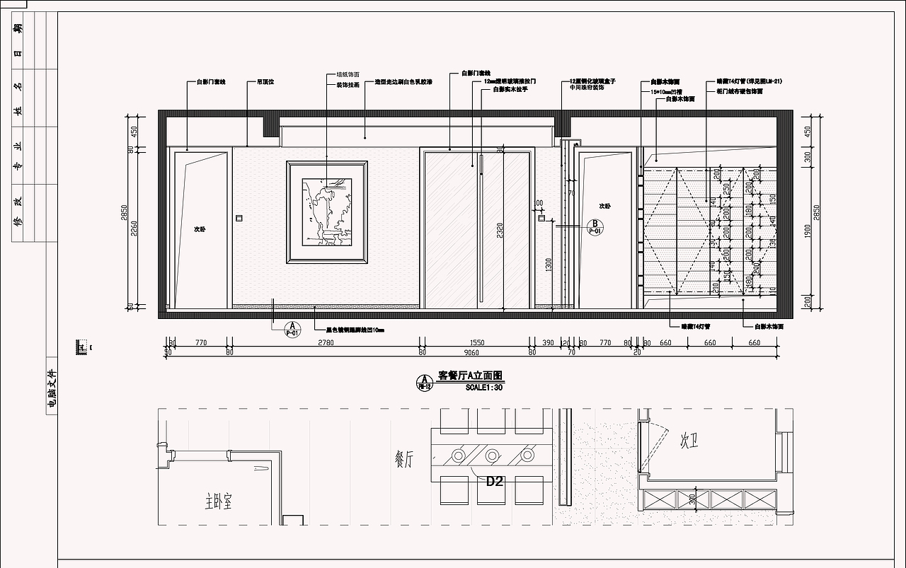
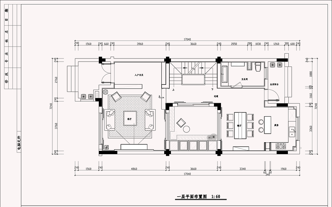
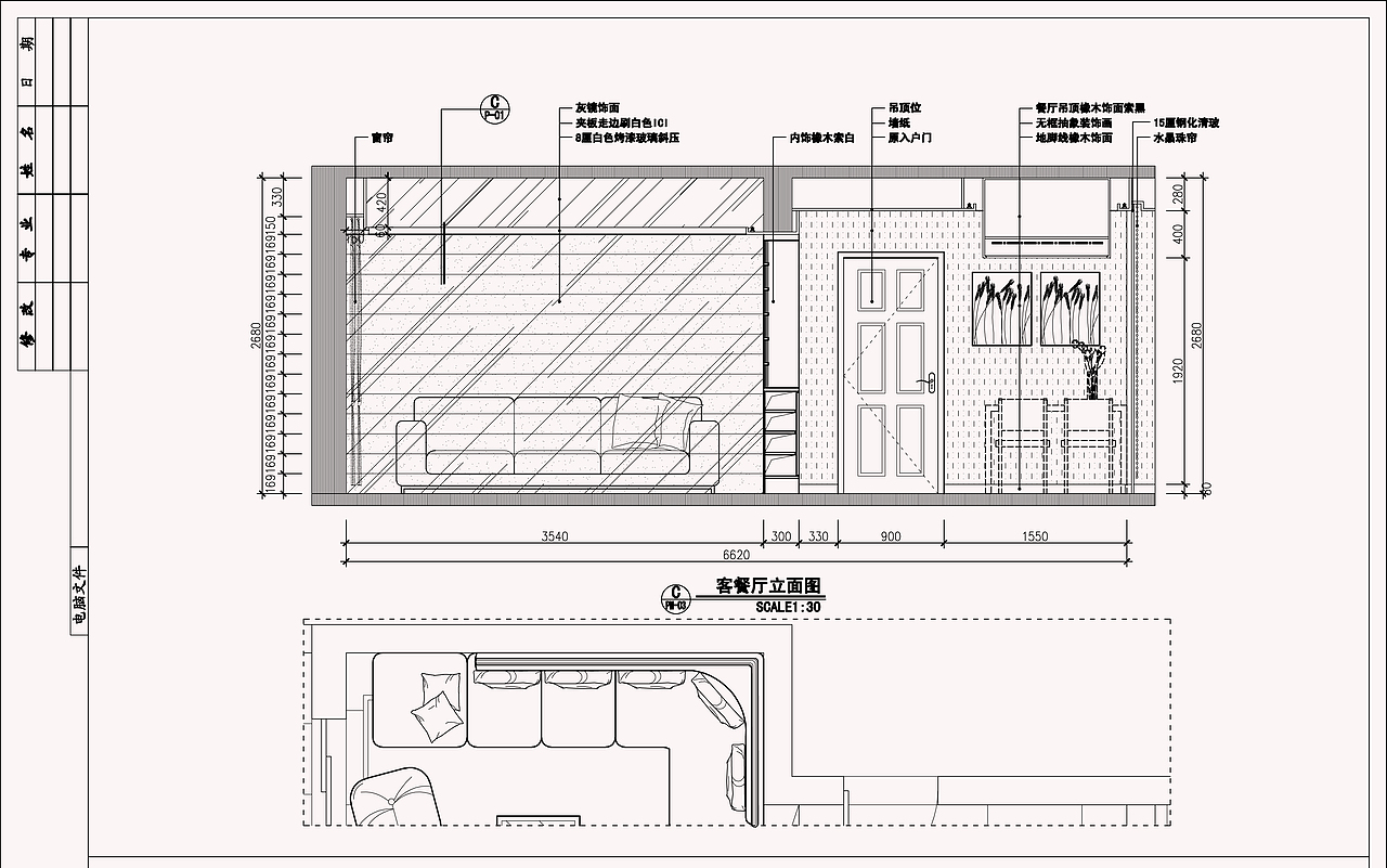
CAD施工图学员作品分享——安徽三口设计培训
合肥/设计爱好者/2年前/303浏览
版权
CAD施工图学员作品分享——安徽三口设计培训
1
Report
声明
3
Share
相关推荐
in to comment
Add emoji
喜欢TA的作品吗?喜欢就快来夸夸TA吧!
You may like
相关收藏夹
Log in
1Log in and synchronize recommended records
3Log in and add to My Favorites
评论Log in and comment your thoughts
分享Share


























































































































