合肥短期室内设计培训 cad施工图纸培训
合肥/室内设计师/2年前/29浏览
版权
合肥短期室内设计培训 cad施工图纸培训
三口实训基地 室内设计全能班学习过程
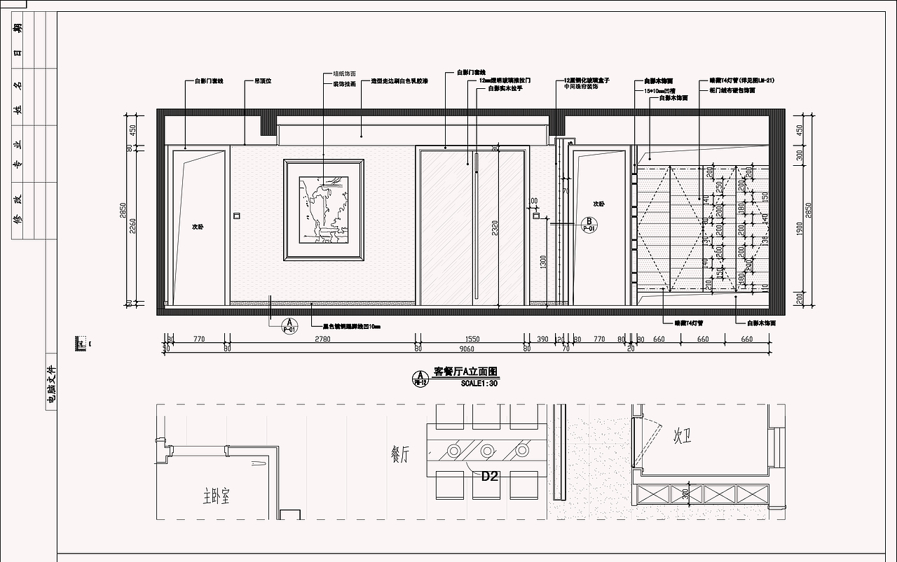
第一阶段:《室内设计培训——AUTOCAD绘图制作培训》
学习目标:
全面系统学习CAD的绘制命令,科学规范地建立图层、设置文字样式和标注样式。通过多个实例制作,掌握CAD施工图的绘制流程,可熟练绘制平、立、剖面,以及局部大样图纸,懂得打印输出。最终达到当前室外建筑施工图绘图行业的中高级水准。
学习内容:
1、CAD各种绘图和编辑命令
2、图层操作,科学的分层及分色方案
3、学习设计中心及工具选项板,定制绘图模板,提高工作效率
4、平、立、剖面,以及局部大样图纸实例操作
5、打印输出
第二阶段:《室内设计培训——3DsMax效果图制作综合培训》
学习目标:
学习效果图三大软件3ds Max、VRay、Photoshop
1、 3Ds Max无图纸看图片建模与看CAD施工图纸建模相结合,符合实际工作要求
2、 3Ds Max制作各种常见室内外材质;
3、 3Ds Max室外日景、夜景、黄昏灯光
4、 Photoshop加工材质、调整明暗和色彩,室内外后期处理
5、 VRay室内外日景、夜景渲染,VRay材质原理及制作方法。
6、 POLY多边形建模方法,科学的布线规律。室内外异形结构建模
第三阶段:《室内设计培训——室内设计师实战培训》
学习目标:
全面系统学习使用3ds Max、VRay、Photoshop三大软件制作室内效果图技术。通过多个实例制作,掌握室内效果图的工作流程。能够根据空间的功能特点制作不同的气氛效果。最终达到当前室内效果图制作行业的一至两年工作经验的水准。
学习内容:
1、室内施工图纸建模;看手稿、看相片建模多种建模方式。
2、创建常见室内模型,如中欧式风格、展览店铺、酒店大堂,餐饮娱乐空间等。
3、室内常见材质的认识、获取及加工。
4、根据空间的功能性质,渲染各种气氛效果。
5、用后期处理为效果图加工润色,添加配景,制作光效,甚至换材质和家具。
以上教学内容会进一步更新,方便同学们更好的融入将来的工作。
公司地址:合肥市蜀山区三里庵鑫鹏大厦22层,地铁2号线,三里庵站,6号出口
0
Report
声明
收藏
Share
相关推荐
in to comment
Add emoji
喜欢TA的作品吗?喜欢就快来夸夸TA吧!
You may like
相关收藏夹
Log in
推荐Log in and synchronize recommended records
收藏Log in and add to My Favorites
评论Log in and comment your thoughts
分享Share





















































































