兰州正规装修公司作品:兰雅星河湾-118平米-新中式风格装修
兰州市/教育工作者/4年前/142浏览
版权
兰州正规装修公司作品:兰雅星河湾-118平米-新中式风格装修
兰州正规装修公司作品:兰雅星河湾-118平米-新中式风格装修;东易日盛超放心家装热线:15293186651
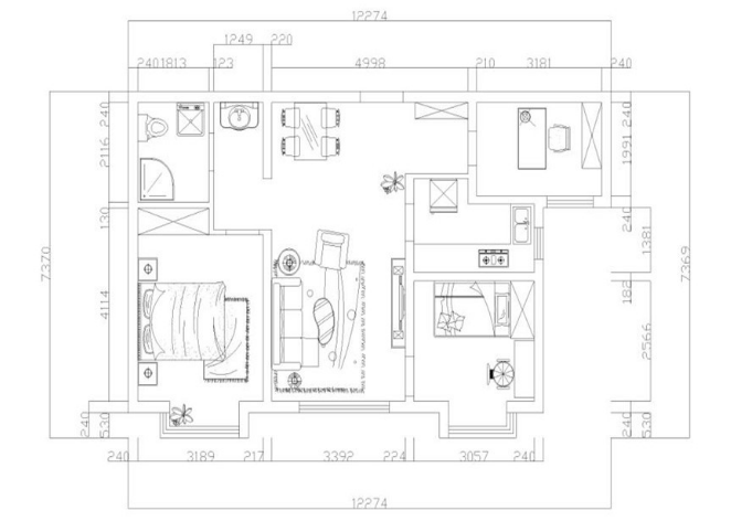
装修楼盘:兰雅星河湾
装修面积:118平米
装修风格:新中式风格装修
装修户型:三室两厅两卫
家装公司:兰州东易日盛

新中式空间整体简洁明净,着墨不多却在不露声色中流淌出涓涓禅意,简约低调的质感美,充盈在每一个角落。


灰色棉麻布艺沙发、编织麻料地毯与深色木制家具的点缀搭配出细腻质感,山水意象的挂画于墙面寥寥数笔的线条勾勒中散发着诗意。

主卧充裕的采光、褶纹的窗帘、洁白的清纱以及床位处的山间水墨画,与床头落地窗前肆意绽放的花饰交相呼应,使整个空间如同一幅缓缓打开的山水画卷,俊秀清丽。



带着古朴韵味的插花茶具小品修饰着次卧空间,晨曦日落光影交替变换,动态光影的行进中,空间有了更加立体而生动的表情。


兰州正规装修公司作品:兰雅星河湾-118平米-新中式风格装修;东易日盛超放心家装热线:15293186651
2
1
Share
相关推荐
in to comment
Add emoji
喜欢TA的作品吗?喜欢就快来夸夸TA吧!
You may like
相关收藏夹
Log in
2Log in and synchronize recommended records
1Log in and add to My Favorites
评论Log in and comment your thoughts
分享Share
















































































