欧式简约风格装修设计,简约一样装饰有风味的欧式
兰州市/教育工作者/3年前/83浏览
版权
欧式简约风格装修设计,简约一样装饰有风味的欧式
兰州正规装修设计公司东易日盛装饰15293186651;欧式简约风格装修设计,简约一样装饰有风味的欧式:天庆嘉园88平米欧式简约...
兰州正规装修设计公司东易日盛装饰15293186651;欧式简约风格装修设计,简约一样装饰有风味的欧式:天庆嘉园88平米欧式简约风格装修设计效果图案例。
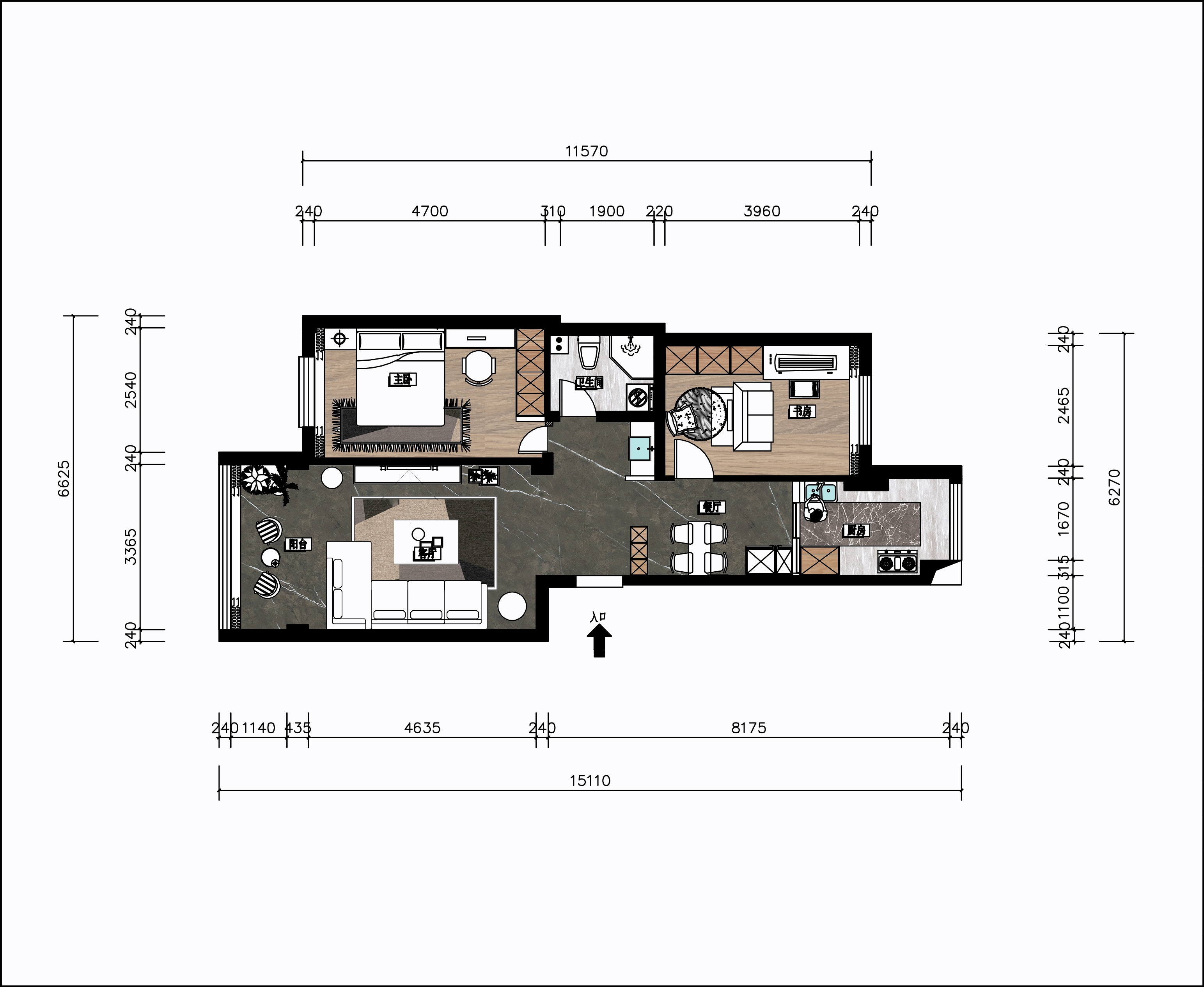
装修小区名称:天庆嘉园
装修小区面积:88平米
楼盘所属区域:兰州市城关区天庆嘉园
装修设计师:马娟
装修小区户型:平层住宅、两居室
装修小区风格:欧式简约风格
天庆嘉园装修户型为平层住宅、两居室;本案因为楼层不高,自然采光会受到影响,为了室内自然采光得到改善,去掉了阳台非承重墙,客厅与阳台通铺,格局增大而且还增加了室内的自然采光;家装设计师在与业主详细沟通之后,把这个空间定位于欧式简约风格金属设计装饰,具有简约、自然、人性化的特点。



欧式风格设计貌似在不经意的搭配之下,一切又如浑然天成般光彩夺目。任何一个空间,总会有一个视觉中心,而欧式简约装饰的这个中心的主导者就是色彩。在整个天庆嘉园装饰住宅空间中,给人放松的感觉。在浅色背景之上,各种颜色和质感的家具和装饰品,则让空间的视觉感受更加丰富。



原文出自:兰州正规装修设计公司-兰州东易日盛装饰集团官网。
0
收藏
Share
相关推荐
in to comment
Add emoji
喜欢TA的作品吗?喜欢就快来夸夸TA吧!
You may like
相关收藏夹
Log in
推荐Log in and synchronize recommended records
收藏Log in and add to My Favorites
评论Log in and comment your thoughts
分享Share













































































