兰州装修设计 金汇广场 两居室装修 95平米 新中式风格装修效果图案例
兰州市/教育工作者/4年前/170浏览
版权
兰州装修设计 金汇广场 两居室装修 95平米 新中式风格装修效果图案例
兰州正规装修设计公司出品 东易日盛:业主为自己儿子准备的婚房,要求装饰风格适合两代人的审美,所以我们推荐新中式风格...
装修公司:兰州装修设计 东易日盛装饰
装修小区:金汇广场
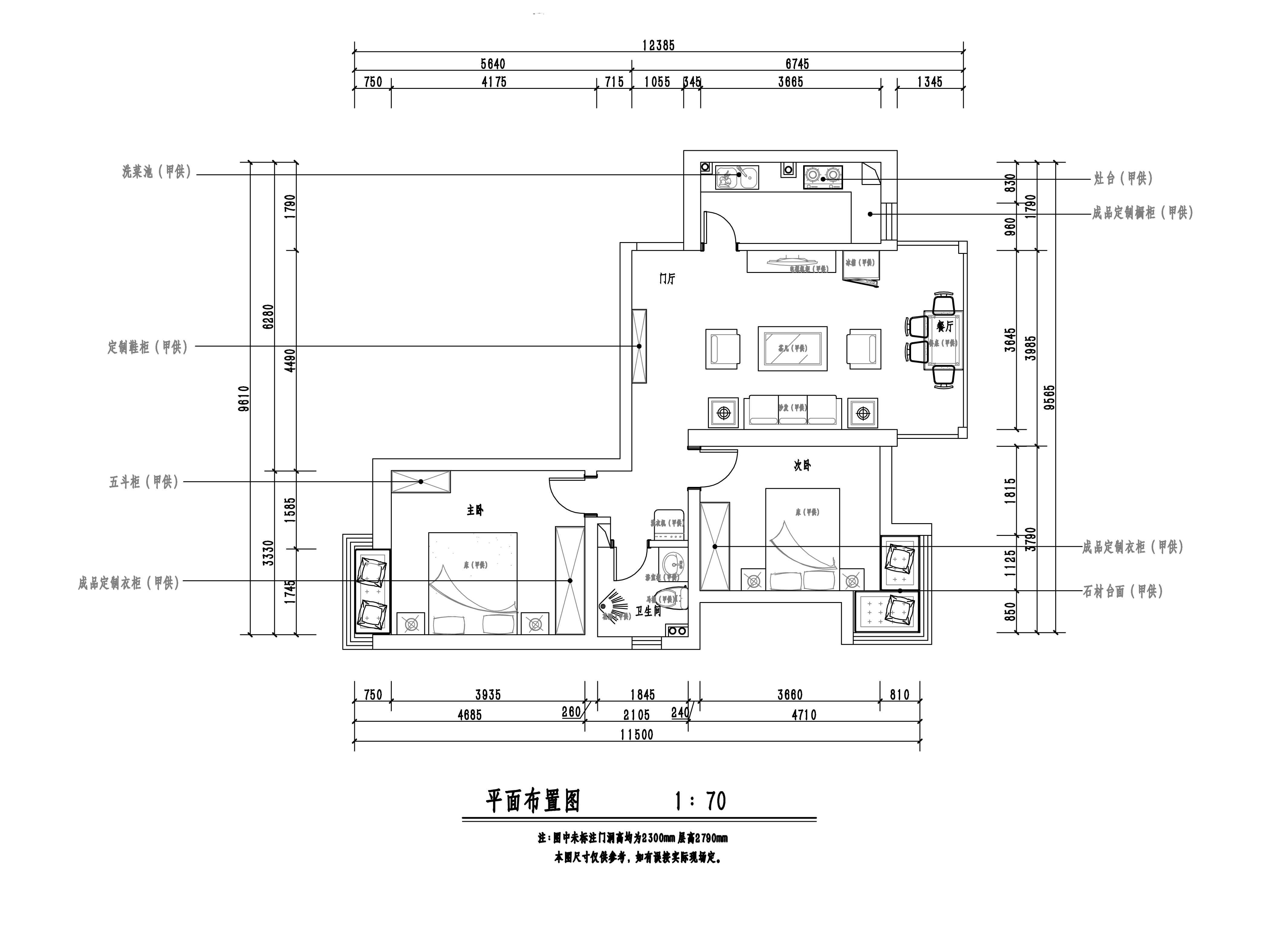
装修面积(平米):95平米

装修设计户型:两室一厅
装修设计风格:新中式


客厅多采用黑色亮光线条进行装饰,增加现代感,沙发为木布结合,保持中式元素的同时,体验更加舒适。墙面为素色淡黄色壁纸,样式简单大方,但使得整个空间更加温馨。

走廊:进门处走廊较长,我们利用顶部造型与壁画进行空间划分,从视觉上划分层次。
餐厅因为空间与使用率的原因,我们将餐厅放置在了阳台处,更好的利用了阳台的区域。


卧室多采用黄色,景泰蓝等中式元素的代表颜色,整体温馨,大气。
居室在色彩方面秉承了传统古典风格的典雅和华贵,但与之不同的是加入了很多现代元素,呈现着时尚的特征。在配饰的选择方面更为简洁,少了许多奢华的装饰,更加流畅地表达出传统文化中的精髓。为了给居室增添几分暖意,饰以精巧的灯具和雅致的挂画,使整个居室在浓浓古韵中渗透了几许现代气息。
原文出自:兰州室内装修设计_兰州装修公司-兰州东易日盛装饰集团官网
3
2
Share
相关推荐
in to comment
Add emoji
喜欢TA的作品吗?喜欢就快来夸夸TA吧!
You may like
相关收藏夹
Log in
3Log in and synchronize recommended records
2Log in and add to My Favorites
评论Log in and comment your thoughts
分享Share

















































































