《城市智享场景》——在未来,让工作和生活方式有一个新聚场
《城市智享场景》——在未来,让工作和生活方式有一个新聚场。这是一个融合的智享生态圈的概念。
01 冠军荣耀
9月8日,由中国建筑装饰协会主办、欧普照明冠名的第二季“寻星奖”未来空间设计全国总决赛缓缓落幕。我司刘浩宇凭借作品《城市智享场景》经历重重筛选,杀出重围,夺得职业组冠军。

02 预见未来
虽然比赛的风云较量会落幕,但“未来设计”却是永无止步的。本次大赛以“预·见未来设计”为主题,这对于设计师的思路拓展是无穷尽的,就像未来较于当下,虽然人们活在当下,但思想要“预·见未来”。
“活在当下”的现实,引发了我们对“今年疫情所带来的影响”的思考,突发的情况,改变了我们的工作和生活方式,让我们习惯工作和生活在同一个空间转换,这是现实引发的问题。带着这个“问题”以及作为设计师对未来生活趋势的独特见解,我们重新思考:未来是否会有重新定义工作和生活的场景呢?
随着城市快速发展,我们对未来年轻人的需求进行分析预测并总结了以下特点:“激情工作 享受生活”,他们更愿意尝试挑战,专注而独立的思考,从事主动性、创造性的工作;为了平衡工作和生活,也更倾向追求高质量的生活方式及社交场景。
03 设计畅想
由此,我们创造了《城市智享场景》——在未来,让工作和生活方式有一个新聚场。这是一个将“需求、时间和空间”进行交互性、动态性、流动性融合的智享生态圈的概念。其嫁接于城市的基础建设和服务,并对现有工作和生活空间的作出补充。
通过这个概念,引发了我们对于童年时玩过的积木的联想——“以简单的直线和曲线的搭接产生千变万化的组合”,因此我们将直线与曲线、人与自然以及理性与感性等关系融合到未来空间畅想“以直线网格的方式切割组合空间、用流动的曲线去保留和掌控时间、以场界的形式创造美好的时光”来创造一个未来城市的智享场景,基于此,我们便设计出三个维度的产品。
即通过“移动墙体、移动空间、软性墙体”来实现同一空间不同时间的场景复用、模块化场景转换以及高、中、低三种频率的场景使用。下面就让我们来看看具体的效果呈现。
04 效果展示
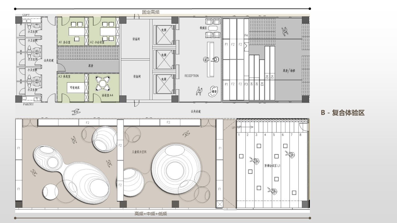
在2000平米的空间进行创意设计,空间融合分布着“A微型体验区、B复合体验区、C城市会客厅、D专注工作区、E日常运营区以及F功能存储区”。A、B、C区域为可以折叠复用的空间,而D、E、F区域为固定的功能空间,通过移动墙体、移动空间以及软性墙体等,突破物理空间限制,对空间进行伸缩、组合及延展,而相对固定的功能存储区可以实现对移动设备和家具的立体垂直收纳,这样的设计,使两者可以进行有效的结合互补,并实现动线在所有区域的覆盖与贯穿。
在众多区域中,我们选取最具代表性的B复合体验区及C城市会客厅配合功能空间做设计讲解。
复合体验区,顾名思义这是一个复合体验场景,内含多种场景化展现与应用,例如会议室、冥想空间、聚会场所、多功能剧场、VR体验区、儿童娱乐天地等等,在未来,人们所构想,所接触的种种场景都会这里融合展现。其手段就是以地面的磁吸装置作为智能导向系统,通过对移动墙体的组合变化、整体空间的线性切割以及软性墙体和软性家具的结合来对模块化面积产生倍数的递增和递减而形成各种大小的房间。此外,在未来,只需在手机上轻轻一点,就可以实现“无人化便捷运营”,通过智能机器臂根据直线切割空间和软性墙体重塑空间等方式进行搭建和收纳的操作。
未来,会议室使用直线进行切割,天光从十字造型洒下,塑造温暖舒适的办公环境,家具桌椅等均采用磁气悬浮和无线充电,可以根据人的体重和身高调整适宜的高度和柔软度,而对面的玻璃在视频会议时可以实现远程影像的交流,整体空间设计与灯光的结合充分展示着未来会议室的科技、智慧与人文精神。到了晚上,通过些许的改变就能打破会议室的严肃氛围,变转为休闲场景。随着智能灯光的变化,给需要的人提供独自的冥想或多人聚会的空间,以空间复用及组合的角度赋予场景无限的可能性。
未来,还可以随着使用需求的变化,以模拟自然的灯光、软性墙体、360度环绕全息影像以及地面的软性充气材料组成一个舒适的圆形会场。周末,这里会变成艺术演出的场景,场景的变化可以根据表演者的需要进行调节,实现演出个性需求定制。当
未来,
未来,这里还可以是儿童娱乐的场景,通过对阶梯的收纳,转变为大型空间。选取丘陵和球体两种形体结合充气复合软性材料,通过充气量增减,对丘陵及球体的体量和大小做出改变,来调节空间的层次感。内置软性龙骨,进行支撑和荷载,配置智能灯光体系,随着场景的改变,表面的温度和颜色也会产生相应的变化。此外,通过主题场景的变化,孩子们除了可以进行单纯的攀爬穿梭外,还可以选择海洋探险、宇宙巡游等不同场景进行音乐熏陶、空间体验、绘画创作等多方面的丰富体验。
城市会客厅,配合复合体验区进行同时间,不同空间的模块化场景复用转换。 移动空间、房间、墙体、家具等进行空间的叠加转换与连接组合。 未来,根据使用者的需求可以随意定制场景,配合直线与曲线切割,形成更加丰富的空间序列,增添空间的多样性、流动性与互动性。
当作为会客接待区使用时,通过移动墙体表面的合金材料可以打开闭合和变化形态,结合丰富的灯光效果,形成展示和收纳等多种场景的不同功能展现。同时,软性墙体可以根据使用者的需求,改变通透属性,在透明和磨砂效果中任意切换,让空间具备开放、交流、协作、私密和独自思考等多种功能。
此外,我们还赋予空间流动艺术馆的概念,让展示墙体和智能艺术仓缓缓的移动, 不仅是静态的切割空间,更是让人动态的感知空间并完全沉浸在一个流动的艺术圣殿之中。
05 设计感悟
作为设计师,我们习惯从生活中思考并探索,未来人与城市关系的一种可能性。“更好的感受生活、更好的创意工作以及更好的预见未来”。因此,在《城市智享场景》的设计中,我们并未简单地设定一个空间工作、生活、玩乐等功能物理性场所来诠释人‘行为模式的丰富‘,而是尝试去构建一处更纯粹、更本质,能够激发内在感知与想象的自方天地,亦或是支撑一个遍浩瀚、无垠,纷繁琳琅的精神世界。事实上,我们对未来的探索才刚刚开始,需要通过十口田团队的不懈努力才能一起“预 见未来”。



























































































