DSD · 品龙设计丨嘉兴紫莲花养生中心
广州/设计爱好者/5年前/125浏览
版权
DSD · 品龙设计丨嘉兴紫莲花养生中心
养生之道追求自然,既是身体的疗养,也是心灵的疗养。

其花庄重,香馥长远;不枝不蔓,无挂无碍;出污泥而不染,至清至纯;象征着纯洁与高雅、清净和超然,这就是莲花。古人对莲花的评价表现出莲花崇高的位置。
【品牌介绍】

紫莲花养生中心,位于浙江嘉庆,是一个安静时尚、国际、享受生活的别致场所,养生中心按五星级标准打造,是养生行业的标杆。
【项目介绍】

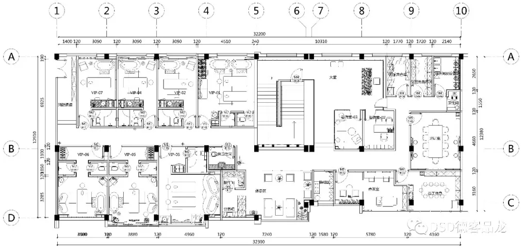
项目名称:紫莲花养生中心
项目地点:浙江嘉庆
项目面积:410m²
工程造价:约200万
总设计师:龙志雄
设计总监:关远传
竣工时间:2017年10月

【设计理念】
养生之道追求自然,既是身体的疗养,也是心灵的疗养。
以天地之间的自然之物作为设计元素,营造一处惬意、宁静的空间。目光所及,是材质搭配呈视的和谐与自然之美,心灵感受到的,是灯光气氛之下,以形化境的写意空间。
大堂以远意境美山为背景,用竹蜻蜓做吊饰。让人置身其中仿佛置身大自然中没,营造自然、朦胧的意境美。
休息室以活跃的蝴蝶为主题元素,取绿色与紫色点缀空间,抱枕与挂画运用传统水墨画晕染的手法,与茶几上的紫色花艺相互呼应。给人舒适、悠闲的感觉。


vip房以自然木色为主调,取莲花的紫色及莲叶的绿色运用晕染的手法做抱枕点缀紫色花艺,相互呼应,营造舒适、轻松的氛围。


自然的空间是平和的,是安静的不喧闹、不做作,以東方禅宗的哲学与美学观融入素简、清逸、静雅的观念为设计理念之初把东方的哲学、韵味、意境转化为当代设计手法。






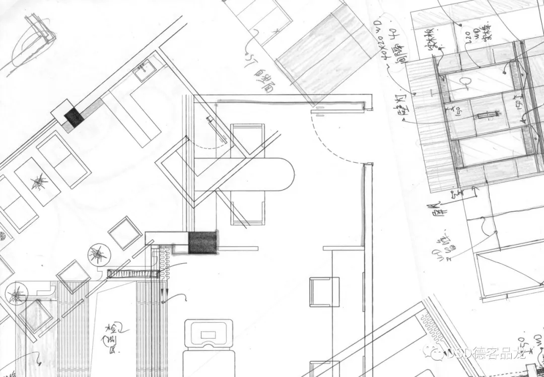
【设计过程】







【效果图】





其花庄重,香馥长远;
不枝不蔓,无挂无碍;
出污泥而不染,至清至纯。

【设计团队】



1
3
Share
相关推荐
in to comment
Add emoji
喜欢TA的作品吗?喜欢就快来夸夸TA吧!
You may like
相关收藏夹
Log in
1Log in and synchronize recommended records
3Log in and add to My Favorites
评论Log in and comment your thoughts
分享Share














































































