安徽农金展厅立面布局深化设计
合肥/平面设计师/10年前/40561浏览
版权
安徽农金展厅立面布局深化设计
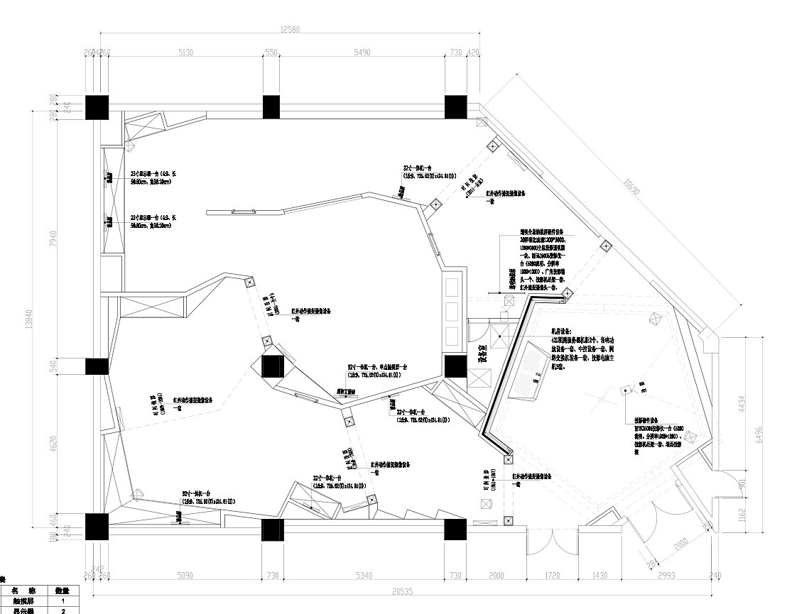
这个项目前后经历了两个多月的时间,不过经过个个部门大家的通力合作,最终项目圆满完成!项目难度在于,怎样在200平米不到的空间里面,展现安徽农金10年的发展!走展厅的创意构想到平面规划到立面深入美化设计,再到空间灯光音箱投影等设计,大家都很努力。怎么样在最大限度满足客户想法的情况下,保留设计的美感和谐很重要!
在这个过程中,本人主要负责立面深入美化设计,结合客户的展览要求,创意构想,怎样更好的展示很重要,除了考虑美以外,成本控制和工期也是不得不考虑在内的问题!还要经过客户的无理折磨啊⋯⋯都是泪 不多说了!
150
创作信息
Report
声明
289
Share
相关推荐
in to comment
Add emoji
喜欢TA的作品吗?喜欢就快来夸夸TA吧!
You may like
相关收藏夹
Log in
99+Log in and synchronize recommended records
99+Log in and add to My Favorites
评论Log in and comment your thoughts
分享Share



































































