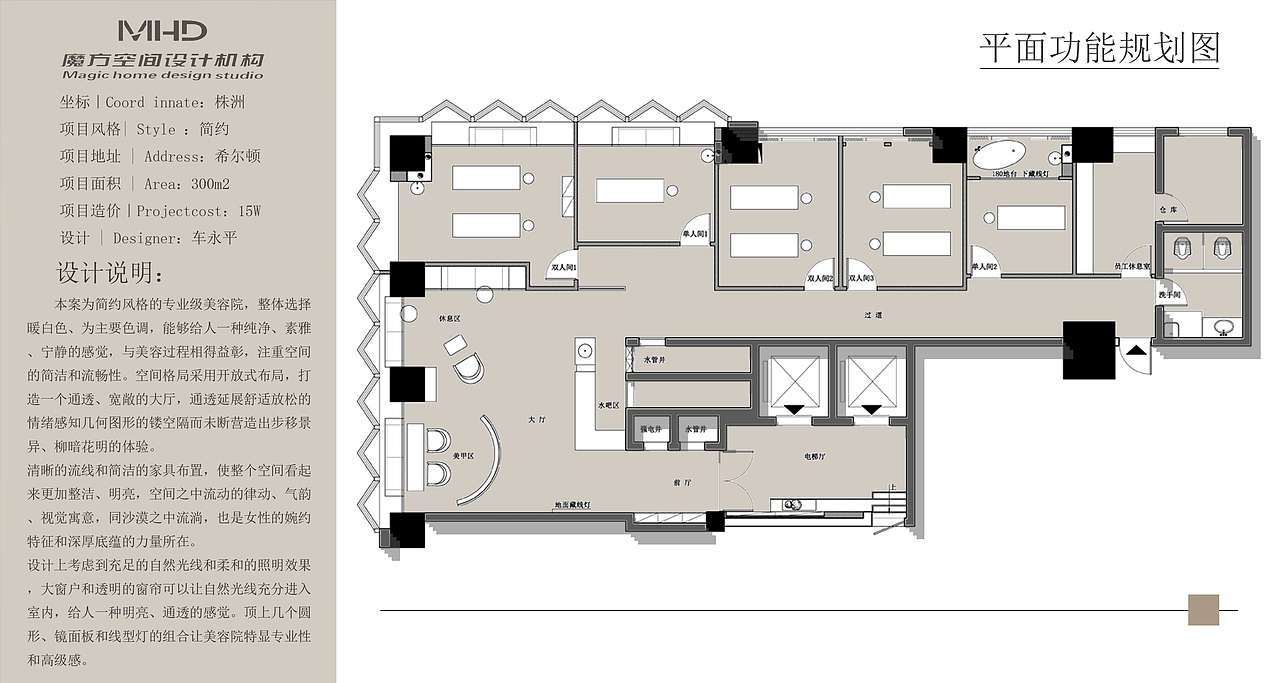
雪肤丽美容院,简约风格让你倍感纯净
株洲/室内设计师/2年前/77浏览
版权
雪肤丽美容院,简约风格让你倍感纯净
0
Report
声明
收藏
Share
相关推荐
in to comment
Add emoji
喜欢TA的作品吗?喜欢就快来夸夸TA吧!
You may like
相关收藏夹
Log in
推荐Log in and synchronize recommended records
收藏Log in and add to My Favorites
评论Log in and comment your thoughts
分享Share























































































