清风活水 x 潘艺夫团队丨IFPD案例
台北/设计爱好者/3年前/4605浏览
版权
清风活水 x 潘艺夫团队丨IFPD案例
品牌背景
命名由来
BRAND BACKGROUND&THE ORIGIN OF THE NAME
-
两腋清风起,我欲上蓬莱。
“两腋清风”的说法大规模见于有宋以来的茶文学作品中,是用来形容喝茶后的一种身体感受,即在品饮好茶之后,清风生两腋,人有轻逸欲飞之感。
水为茶之母,茶借水而发。
陆羽《茶经》:“其水,用山水上,江水中,井水下。”所载的取水标准,活水为佳。
偷得浮生半日闲,清风活水一盏茶。
泡上一壶自己心仪的好茶,在茶香袅袅中,感受身体语言,纯净心灵,倾听心语。这是“清风活水”主理人的理茶态度,也是名字的由来。

创意阐释
实景呈现
CREATIVE INTERPRETATION
-
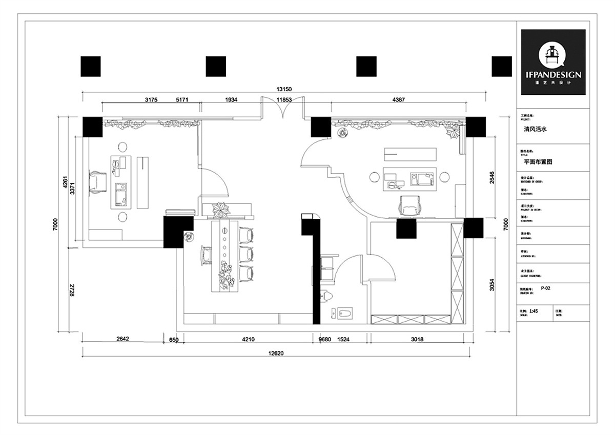
平面布局初始设计包含四个空间,改动后增加了一个空间,将入门后直接看到的空间改为半包的形式,再辅以造景,让空间更加通透,有眼前一亮之感。同时在原先大厅左侧增设了一个私密包间,更具实用性。而右侧包间的墙面改为弧形是为了提高空间利用率,拓宽道路的同时也明确动线。
Cool breeze initial design includes four space layout of living water, alter, add a space after will see directly after entry form of space, into a half a pack, along with landscape, let a space more fully, has the feeling of shine at the moment. At the same time in the hall on the left side of the original add to a private room, more practical. And the metope of room on the right side instead of arc is in order to improve space utilization, widen the roads and clear line.

茶品牌在思路上运用这个名字代表茶香茶水茶滋味,我们在空间的布局上添加了直面与曲面的流动,当然也有玄关的和包间上小窗的穿透,像风和水的贯通,连带茶香,传递品牌的细节。
The name represents the aroma and taste of tea. We have added the flow of straight face and curved surface to the layout of the space, as well as the penetration of the porch and the small window in the private room, such as the connection of wind and water, together with the fragrance of tea, to convey the details of the brand.
The name represents the aroma and taste of tea. We have added the flow of straight face and curved surface to the layout of the space, as well as the penetration of the porch and the small window in the private room, such as the connection of wind and water, together with the fragrance of tea, to convey the details of the brand.

入门后直接看到的空间改为半包的形式,再辅以造景,让空间更加通透。包间的墙面改为弧形是为了提高空间利用率,拓宽道路的同时也明确动线。
In order to lengthen the vision and make the space more transparent, we change the space which can be seen directly after getting started into the form of half package, supplemented by landscaping. The purpose of changing the wall of private rooms to arc is to improve the space utilization rate and clarify the moving line while widening the road.
In order to lengthen the vision and make the space more transparent, we change the space which can be seen directly after getting started into the form of half package, supplemented by landscaping. The purpose of changing the wall of private rooms to arc is to improve the space utilization rate and clarify the moving line while widening the road.
40
Report
声明
73
Share
相关推荐
in to comment
Add emoji
喜欢TA的作品吗?喜欢就快来夸夸TA吧!
You may like
相关收藏夹
Log in
40Log in and synchronize recommended records
73Log in and add to My Favorites
评论Log in and comment your thoughts
分享Share














































































































