沈阳兴邦装修
沈阳/设计爱好者/5年前/31浏览
版权
沈阳兴邦装修
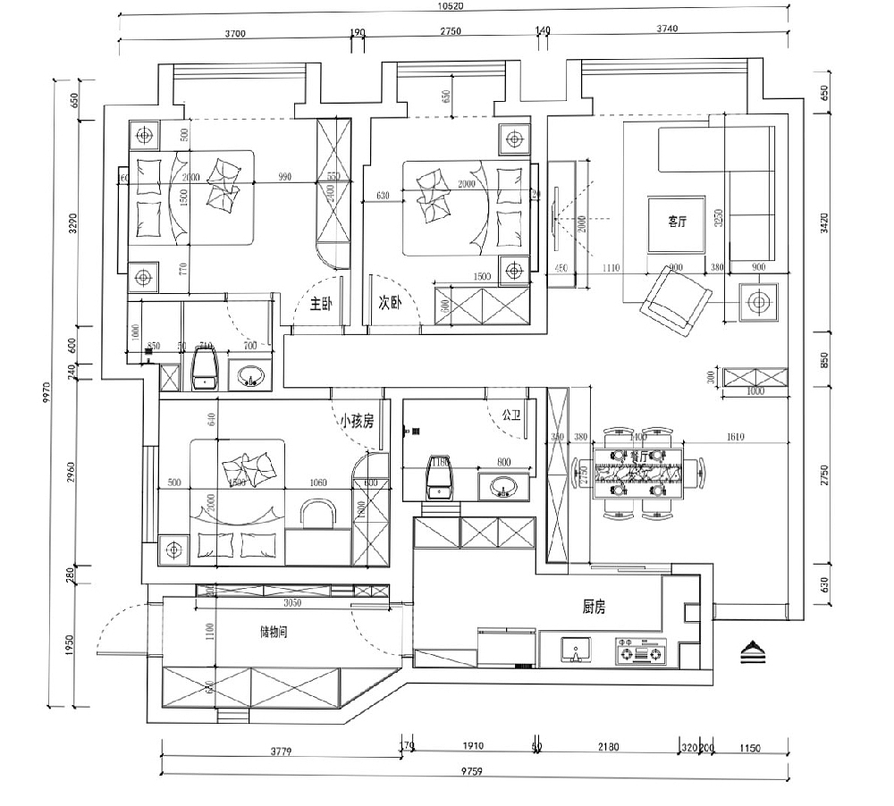
这套房子业主是装来出租的,装的好看一点不想要花那么多的钱所以一开始我就建议了他北欧风,因为北欧是可以造假很低又很有特色的,全屋没有吊顶都是走的石膏线,电视背景墙也是用石膏线做的框,整体装出来后挺简约漂亮的跟自住的标准一样
沈阳兴邦装修
0
Report
声明
1
Share
相关推荐
in to comment
Add emoji
喜欢TA的作品吗?喜欢就快来夸夸TA吧!
You may like
相关收藏夹
Log in
推荐Log in and synchronize recommended records
1Log in and add to My Favorites
评论Log in and comment your thoughts
分享Share
























































































