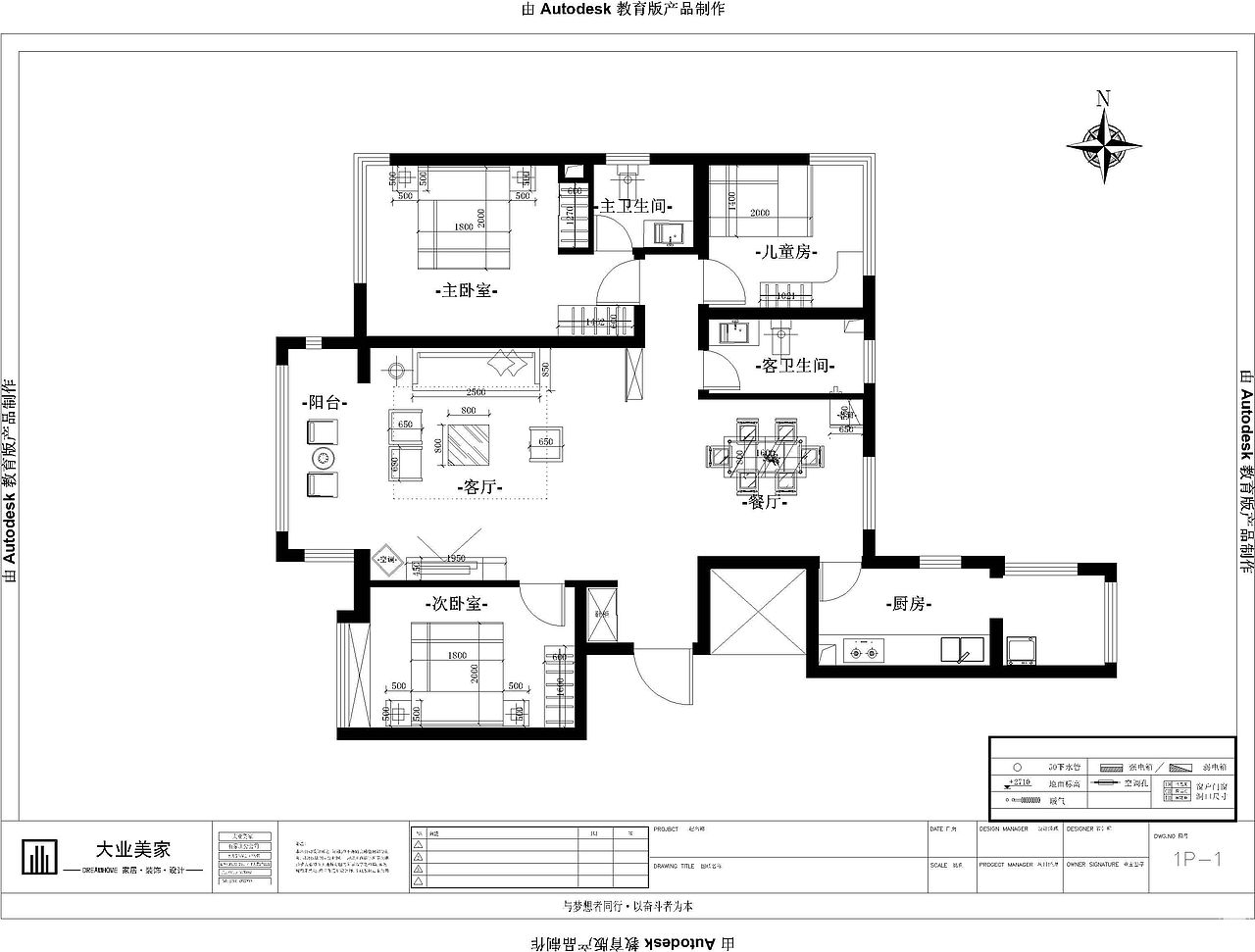
石家庄装修万达广场138平新中式案例
石家庄/室内设计师/7年前/67浏览
版权
石家庄装修万达广场138平新中式案例
装修风格:新中式
案例户型:三室
房屋面积:138平
设计师 : 张伟刚
设计理念:
本案中式风格与现代风格相互糅合,呈现出富有意境而不落俗套的雅致空间,在强调主人文化品味及自身修养的同时,更不失生活原本的舒适性。
0
Report
声明
收藏
Share
相关推荐
in to comment
Add emoji
喜欢TA的作品吗?喜欢就快来夸夸TA吧!
You may like
相关收藏夹
Log in
推荐Log in and synchronize recommended records
收藏Log in and add to My Favorites
评论Log in and comment your thoughts
分享Share























































































