高新区家装设计|高新区家装装修公司《怡湖-美家》
成都/室内设计师/7年前/81浏览
版权
高新区家装设计|高新区家装装修公司《怡湖-美家》
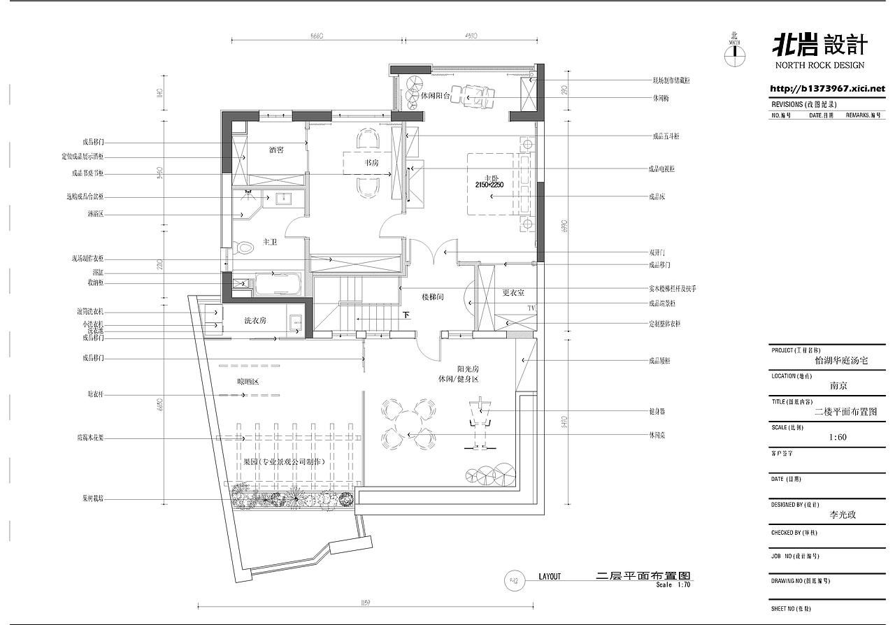
项目名称:怡湖-美家
面积: 280平顶跃+60平露台
工程地点:怡湖华庭
服务模式: 半包
摄影单位:金啸文空间摄影
成都家居装修设计|高新区家装设计|高新区家装装修
四川凱文佰年裝飾工程有限公司是香港凱文國際集團(中國大型的港資裝飾設計集團)在中國西南地区的國家級中心城市成都開設的第壹家分公司。是一家專業從事空間研究與室內設計及施工的高端企業集團。
0
Report
声明
1
Share
相关推荐
in to comment
Add emoji
喜欢TA的作品吗?喜欢就快来夸夸TA吧!
You may like
相关收藏夹
Log in
推荐Log in and synchronize recommended records
1Log in and add to My Favorites
评论Log in and comment your thoughts
分享Share




























































































