陈智超设计丨自由开合的厅与室,让家的互动多一些
广州/室内设计师/1年前/16320浏览
版权
陈智超设计丨自由开合的厅与室,让家的互动多一些
设计需要情感连接,它能够容纳一个跨越时间的故事。从家庭成员的数量,到空间功能需求,都在每一个阶段发生变化,而当中的相互影响,相互作用,就像是在游戏里,过关升级,每一关卡都牵连着Next Level。
本案主题“游戏人间”——
一是映照了热衷环游世界的95后夫妻俩,把人生调成“游戏”模式,当尽兴“玩家”的豁达心境;二是表达我们的设计不只为改善当下,更重视"为未来考虑”的初衷,为年轻夫妻设计出收放自如的厅与室,让家有了随心变化的更多可能。
Part1
原始户型Bug
储存空间不足
·入户玄关受限门洞布局,难以满足家庭储藏需求
·窄长型的餐厅稍显逼仄,空间的利用率大大降低
通风采光不足
·生活阳台窄小,采光的位置仅来自于阴面的采光井
·厨房空间封闭,采光仅来自于生活阳台的二次采光
·客厅与景观阳台之间受限于推拉门,二次采光不足
·过道狭长利用率不高,加上采光差,易造成压抑感
Part2
整改思路Creation
(▲原始建筑图)
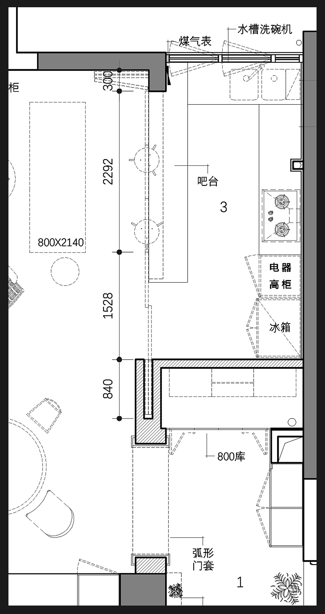
(▲平面布置图)
① “借”厨房小部分空间,玄关扩容一个800库储物间
② “拆”原厨房东面的非承重隔墙,打造半开放式餐厨
③ “改”造实体砖墙变成联动推拉门,实现半开敞书房
(▲效果图)
入户花园
空间,从无到一点点填补,大大小小的物件一件件购置又一件件替换,它们记录着一帧帧生活碎片。当“时光记忆”越来越多,入户花园像是这个家的“时光收集器”,将一些不常用的物件暂存起来。
入户花园的窗户被装扮成“画框”,延伸出换鞋凳功能;全身镜的反射效果让空间层次感与通透感倍增,窗下光影倾泻,生机盎然。
● 将原厨房北面的非承重隔墙拆除,通过向厨房“借空间”,置入800库,加强玄关的储物功能。
入户玄关空间被扩大后,原本常规的门洞设计成拱形门,归家的仪式多了一丝浪漫。
餐厅/厨房/客厅
从拱形门进入便是餐厅区,方正的空间添置了屋主钟爱的圆桌,搭配半弧形的餐边柜,这里融合了方圆有度的美学。
木质材质,温和底色,丰盈体块,流淌出复古温馨的格调。
飘窗一角放置着立式空调,被木百叶包裹,和谐不失美感。
●小阳台全纳入厨房,空间外扩,下厨更游刃有余;打通厨房与客厅的墙体后设计一个吧台,整个空间被打造成半开放式厨房。
(▲厨房before)
利用岛台区隔客厅与厨房两个区域,也赋予了中西厨不同需求下的使用场景。
折叠门的引入实现厨房可开可合,既宽敞明亮又能避免油烟困扰。
● 打通了客厅与阳台之间的推拉门,光线自然进入室内。
我们选择最能拥抱光线的白色作为整个空间基调。
由莱姆石打造的电视背景墙,于白色墙体和木纹砖间柔和过度。跳脱原本沉闷的交叉梁墙面,
背景墙包裹成“]”形状,打破厅与室界限,拥有一个自由畅行的回字廊。
场景转换自如,阳光肆意穿梭,阔然空间让人变得松弛舒展。
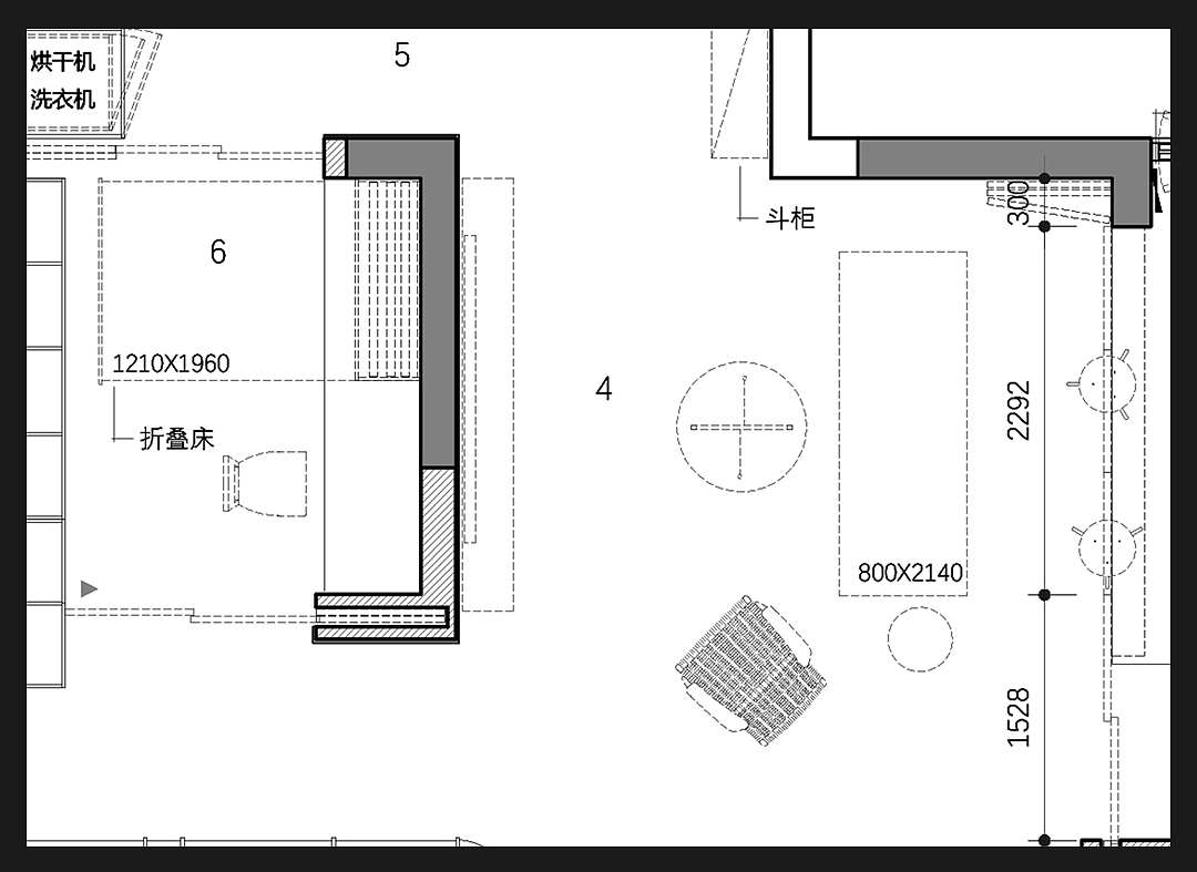
景观阳台同样以平梁包裹了一整面落地窗,打造成小书吧,在这里阅读、冥想、创作,享受光的沐浴。小书吧边上衔接一个猫厕所,并安装换气扇;洗烘套装暗藏在大门板背后,吊顶预留电动晾衣架。
书房/过道/次卧/主卧
● 原本独立的卧室被打造成开放式的书房,房门设置成三轨推拉门,书桌底部设计了折叠床,这里既是主人的工作室,也可以是临时客房。
不通顶的柜子是与主卧共用的AB面柜体。柜子顶部安装的空调与餐厅立式空调相呼应,配合起来带动整体公共空间的冷暖。
书房两面房门可全开放式的格局,消弭了原本狭窄过道的压抑氛围,最大程度让光的律动在此交融。
贯穿从餐边柜至主卧的木制柜体,不仅可以收纳屋主的书籍,还能放置在旅行捎回来的手信物件。
顶部梁位利用斜面弱化手法,再嵌入灯带,呈现见光不见灯的氛围。
干湿分区的公卫,满足不同家庭成员不同需求的使用。
干区洗漱台的镜柜有别于常规,
柜子正反面没做背板,两边有需要都可以拿取
。顶部做了一个弧顶的天花来弱化两边的低梁。
● 为次卧定制多功能梳妆桌,使用时可以把桌面放在侧面挡住支撑腿,在排骨架放上床品,移动推拉门至柜子另一边,底部柜门开到180°,实现书桌功能。
设计初期,我们就思考如何让这个家的“成长线”最大化延长,根据家庭成员的变化,家庭需求的变化,让三房呈现不一样的使用场景。
与此说是打造一间多功能房,不如说是“没有固定功能”的次卧。
它可以是衣帽间+梳妆台,或者是私人瑜伽室+冥想区,更可以是未来儿童房+学习区......
空间划分和功能布局由屋主按不同需求自由调整,让家拥有更长久的陪伴价值,无疑也是一种可持续的美好生活态度。
主卧的装饰并不繁复,呼应整屋温柔奶白与木色的简约风格。在床头覆盖一层木板延伸至窗台作为床头背景,给予温润的白墙恰到好处的点缀。
书桌的挡板,让伏案工作的与休息的两人互不打扰,并化解卫生间正对着床的尴尬。
透过光线、温度与氛围,延续这份惬意的生活方式。
基础信息
游 戏 人 间
项目位置 /佛山·伴珑苑
设计面积 /122 ㎡
设计公司 / 不合时宜设计
主案设计师 / 陈智超
设计团队 / 柯辉,陈泳诗,吴小倩
项目摄影 / ALPDRI-业轩
房屋类型:毛坯房装修
主要材质:木纹砖,莱姆石,水泥砖,乳胶漆
【获奖经历】
2024
设计星(2024-2025)全国36强候选人
2024-2025年度城市设计星区域50强
40 UNDER 40 (城市)当代设计杰出青年(2024-2025)城市榜
2024中国室内设计大奖赛“金十佳”(广州区)
原创力中国设计大赛(2024-2025年度入围奖)
新锐设计奖(2024-2025年度城际榜)
《2024“豪斯奖”中国当代住宅设计大奖》• 全国TOP100
2023
“2023科勒精选·住宅设计风格榜”年度敢创设计人物提名奖
“让设计回归自然·2023年度高端私宅设计影响力榜单TOP50强”
“寻找心之所居 - 2023中国室内设计年度评选”华南区年度绿色设计优秀奖
“寻找心之所居 - 2023中国室内设计年度评选”年度十佳私宅空间设计奖TOP10“
站酷”2023年空间类优秀作品
2023中国室内设计大奖赛“金十佳”(广州区)
第十一届Hi-Design室内设计大赛-老房翻新奖
“老宅新生”设计奖广州城市十大改造设计师
40 UNDER 40 (城市)当代设计杰出青年(2023-2024)城市榜
第十一届筑巢奖公众类“优秀奖”
年度先锋榜·DESIGNCHINA 2023年度(广州)十大先锋
2022-2023 TOP DESIGN 100设计头条年鉴榜-全国榜TOP100
2023玩色主义空间设计大赛-玩色主义创意奖
第十五届“CBDA照明应用设计大赛”三等奖
CIID·第26届“中国室内设计大奖赛”优秀奖
2022
中国设计星(2022-2023)全国36强候选人
红棉设计奖·2022优秀艺术空间设计奖
一兜糖“最有温暖私宅设计TOP500”
2022年度唯美中国设计奖·优秀空间
华艺杯“空间造型组TOP140”
2020
“星艺杯”公装项目设计实景类优秀奖
—END—
186
举报
声明
227
分享
相关推荐
评论你的想法~
表情
喜欢TA的作品吗?喜欢就快来夸夸TA吧!
你可能喜欢
相关收藏夹
登录注册
99+登录即可同步推荐记录哦
99+登录即可加入我的收藏
评论登录即可评论想法
分享分享














































































































































