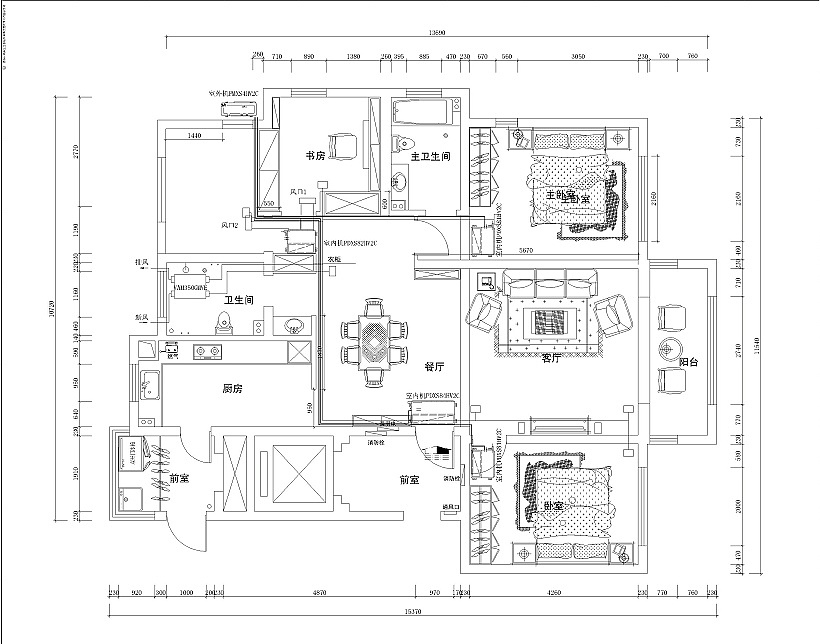
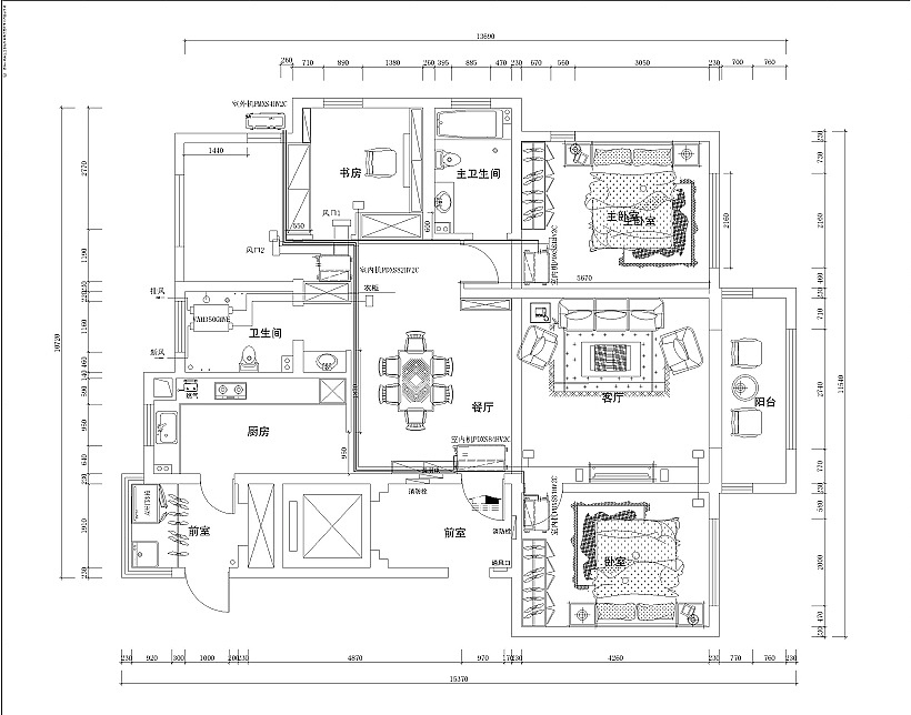
【中山华府】-147㎡三室两厅-极简主义
石家庄/设计爱好者/9年前/181浏览
版权
【中山华府】-147㎡三室两厅-极简主义
极简的现代空间,反映不简单的生活情怀,简洁中追求艺术是都市生活中不可或缺的休闲方式,现代自由的家居态度,
前卫主流的生活主张,或张扬或怀旧的影片上演于此。
清新与沉淀、优雅与现代、内敛与时尚,都在这一刻汇集,却毫无繁躁之气,没有多余的装饰设计,
有的都是最能体现生活的眼界与品质的细节设计。
淡而轻的金色光影如萨克斯的金色旋律缓缓地洋溢在空间里,触动内心最敏感的心弦,使得心绪荡漾;
生活中的世俗与浮躁揉碎在那蓝色的柔波之中,让人们的心结恍然,使人醍醐灌顶如梦方醒。
0
Report
声明
1
Share
相关推荐
in to comment
Add emoji
喜欢TA的作品吗?喜欢就快来夸夸TA吧!
You may like
相关收藏夹
Log in
推荐Log in and synchronize recommended records
1Log in and add to My Favorites
评论Log in and comment your thoughts
分享Share




























































































