青山印园.合院新生
建筑.结构.景观.室内设计
目名称 | 青山四合院.印园
项目地址 | 青秀山5A极风景区
改造面积 | 1480m²
竣工时间 | 2018年
设计总监 | G&M 、 L.Y
设计团队 | 里外设计
四合院是中国的一种传统合院式建筑,大约诞生于西周时期,至今已有3000多年的历史。其格局为一个院子四面建有房屋,从东、南、西、北四个方向将庭院合围在中间,故名四合院。四合院的外观一般是封闭式的,不显山不露水,走进去却自成天地,一砖一瓦都散发出古朴浓厚的生活气息。
四合院,作为传统建筑,被赋予情感记忆与历史价值,当往日的生活已褪色为渐远的记忆,我们如何使其重塑,功能再生,赋予它作为城市更新展厅的新生。
青秀山图片来源于网络
青秀山图片来源于网络
1、规整格局之下的扭动。
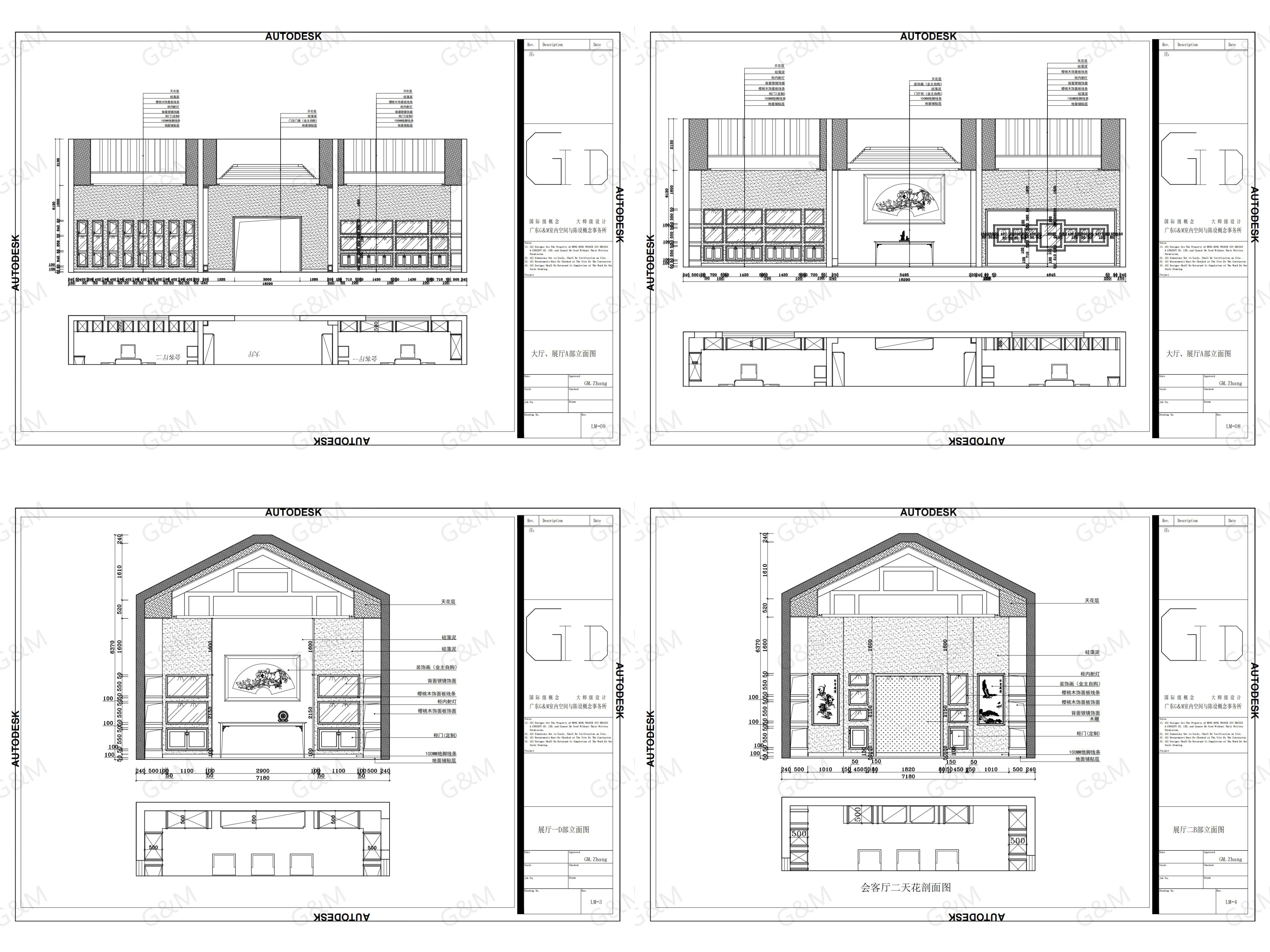
改变原本四合院的庄重、刻板的印象,营造开放、活跃的院落生活氛围。基于已有院落格局,利用起伏的地面连接室内外高差并延伸至房屋内部扭曲成为墙和顶,让内外空间产生新的动态关联。隐于曲墙之内的是厨房、餐厅、卫生间、库房等必要的服务性空间;显于曲墙之外的会客、餐饮空间与庭院连接成为一个整体。室内外地面均采用灰砖铺就,院中原有的一颗老杨桃树也被保留在扭动的景观之中。
2、使用模式之间的扭转。
小院儿的使用主要作为城市公共活动文化空间。四间房屋可被随时用来进行休闲、会谈、聚会等公共活动;整合式来满足空间场景的这种弹性切换。木质地台桌面,既可作为茶室空间,也可以作为会议来使用。北侧也设有小商店,同样可以满足多种需求。
院子是“四合院”这种建筑类型生活乐趣的核心所在。而“扭院儿”就是在维持已有房屋结构不变的条件下,通过局部关系的微调改变院落空间的气质并满足多样的使用,让传统小院儿能够与时俱进的融入到当代城市生活之中。
施工现场图片
改造目标分为三部分:一是将其作为青秀山改造规划的展厅,且四合院本身作为改造示范点,实践创新文化产业社区;二是兼具艺展、茶话、学术、接待、招商等功能,培育文创产业输出地;三是融入公共活动空间,联络社区邻里关系,赋能社区交往活力。
G&M里外艺术设计室内效果图
"一迳抱幽山,居然城市间",这可能是对位于城市之中的四合院,最好的诠释。
作为传统古建中不可或缺的建筑风,四合院以起"自成一世界"的空间感,带来了从古至今的传统审美之感。庭院周边的每一条河流、每一片树叶,每一块石头,每砾沙土都散发着自然与人和谐的气息,它们都恰当的出现在应该出现的地方,抚慰着我们的心灵。而此般油画般的景色必会让人带来久违的震撼。
青山印园实景图片来源于网络
青山印园实景图片来源于网络
作为传统古建中不可或缺的建筑风,四合院以起"自成一世界"的空间感,带来了从古至今的传统审美之感。庭院周边的每一条河流、每一片树叶,每一块石头,每砾沙土都散发着自然与人和谐的气息,它们都恰当的出现在应该出现的地方,抚慰着我们的心灵。而此般油画般的景色必会让人带来久违的震撼。
青山印园实景图片来源于网络
院子,圆桌文化还数中式合院最美,它把中国人的含蓄、内敛、唯美,以及太多美好向往融入了其中。在院子里可以感受到“春有百花秋有月,夏有凉风冬有雪”的美妙。可以放下姿态,闲时静听鸟喧,春来漫步花间小径。
青山印园.吾茶荟 实景图片来源于网络
青山印园.吾茶荟 实景图片来源于网络
六堡茶大师——杜超年老先生
相约青山印园.吾茶高端品鉴中心
六堡茶原产于广西苍梧县,距今已有一千五百多年的历史,兴于唐宋,盛于明清,以茶色“红、浓”,滋味“陈、醇”而广受古今中外的茶客追捧,现今的六堡茶早已成为广西一张金灿灿的文化名片。
舒缓而宁静,带着古朴的生活气息,或精彩,或平淡




















































































