茶亭听雨,这才是中式茶饮该有的样子
石家庄/设计爱好者/1年前/46浏览
版权
茶亭听雨,这才是中式茶饮该有的样子
项目信息 :你好我是(城市山水主题体验店)
面积 :100平米
地点:保定肃宁
软件:CAD/3D
“山之朴拙”,“海之沉寂”、“茶之简素”空间中大面积使用天然元素,石与木的肌理作为空间的皮肤,或温润、或粗犷、或精致、或自然。朴质自然而近乎于本质的自然元素。手能够接触的部分,软硬,冷暖,圆润,光滑或粗糙,不同尺度、厚度和温度,一切都会根据时间和质地的不同,给消费者带来触觉上的愉悦。空间的质地和色彩都源自于材质,它本身体现着自然的意志,俞是回归自然,俞是能感受到自然的温度。
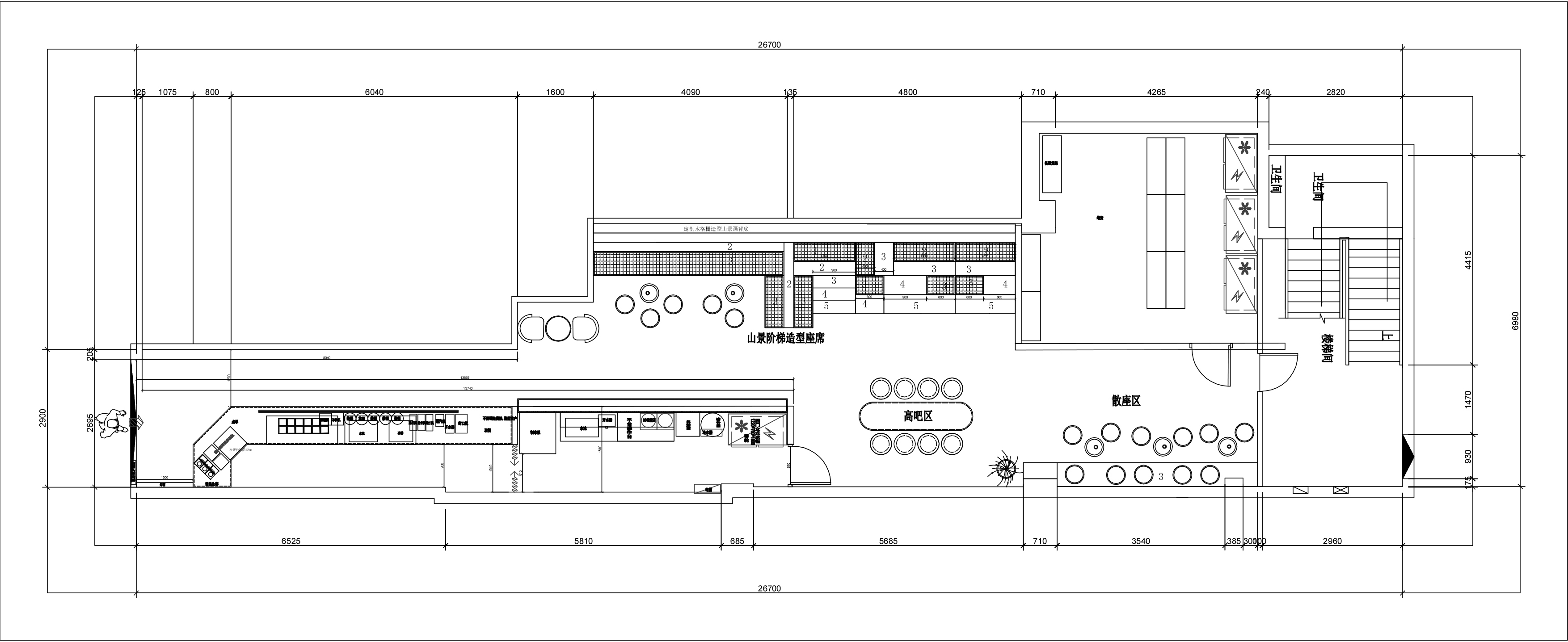
平面布局图
效果图展示
主通道顶部设计师采用弧形设计结合墙面中式传统水墨画来装饰,从而弱化原始结构过于窄小细长的通道
墙面卡座采用错落式座位,空间中大面积使用天然元素,以石与木的肌理作为空间的皮肤。将“茶”文化的抽象体现,空间与自然融为一体
墙角中半遮半掩的一抹绿枝,让人暂时脱离喧嚣,感受“城市山水”的神韵所带来内心的片刻宁静
注重社交形式感的座椅摆放形式,拉近人与人之间的社交距离,打造更好的客户体验区。
0
Report
声明
收藏
Share
相关推荐
in to comment
Add emoji
喜欢TA的作品吗?喜欢就快来夸夸TA吧!
You may like
相关收藏夹
Log in
推荐Log in and synchronize recommended records
收藏Log in and add to My Favorites
评论Log in and comment your thoughts
分享Share


















































































