卓永作品 | |開放之家
廣東深圳中熙·香緹灣私人住宅
專案名稱 | 中熙·香緹灣
Project Name | Residential Space
項目地點 | 廣東省深圳市
Project Location | ShenZhen
項目面積 | 150㎡
Project Area | 150㎡
主要材料 | 水曲柳木飾面、樺木木地板、銀鏡、米色啞光漆、藝術塗料、米色瓷磚、不鏽鋼、長虹玻璃等
主筆設計 | 賴敏怡
HOMES FOR COMMUNITY
建築是有生命的,它雖然是凝固的,
可在它上面蘊含着人文思想。
--- 貝聿銘
美籍華人建築師
Ieoh Ming Pei
Chinese American architect
本案位於廣東深圳寶安區西鄉碧海中心區,地處珠江三角洲中心地帶;便捷的交通網絡臨近深中通道與深圳國際機場,遙望中山、香港,坐享絕美珠三角海景資源。

01
設計靈感來源
Design inspiration

02
空間設計分析
Interior design analysis
擁有一個開放而至簡的家,重點不在於捨棄,而在於精煉;
把家作為觀念的具體呈現,去除家中冗餘,把更多空間和時間留給對主人來說更重要的事物。
To have an open and simple home, the focus is not on abandonment, but on refinement;
Take home as the concrete presentation of the concept, remove the redundancy in the home, and leave more space and time for things that are more important to the owner.


Family Party
家猶如我們的鏡子,朋友們踏進家門,也就看到了我們的特質與癖好;比起其他場所,家能促成更為坦誠的交流~
Home is like our mirror. When friends step into the house, they see our characteristics and hobbies; Compared with other places, home can promote more honest communication~



「 讓光線來作設計 」
Let the light do the design
--- 貝聿銘
Ieoh Ming Pei




居家空间能展现出主人内心最深处的信念;
想想我们拥有的物品是如何体现我们个性的吧~
Home space can show the deepest belief of the owner;
Think about how the things we have reflect our personality~

用曲線去平衡剛性的直線,
用合適的「 設計 」讓您家更出彩!
Balance a rigid straight line with a curve,
Make your home
more colorful with appropriate "design"!




03
結構分析
Building Structure

△1F原始結構圖

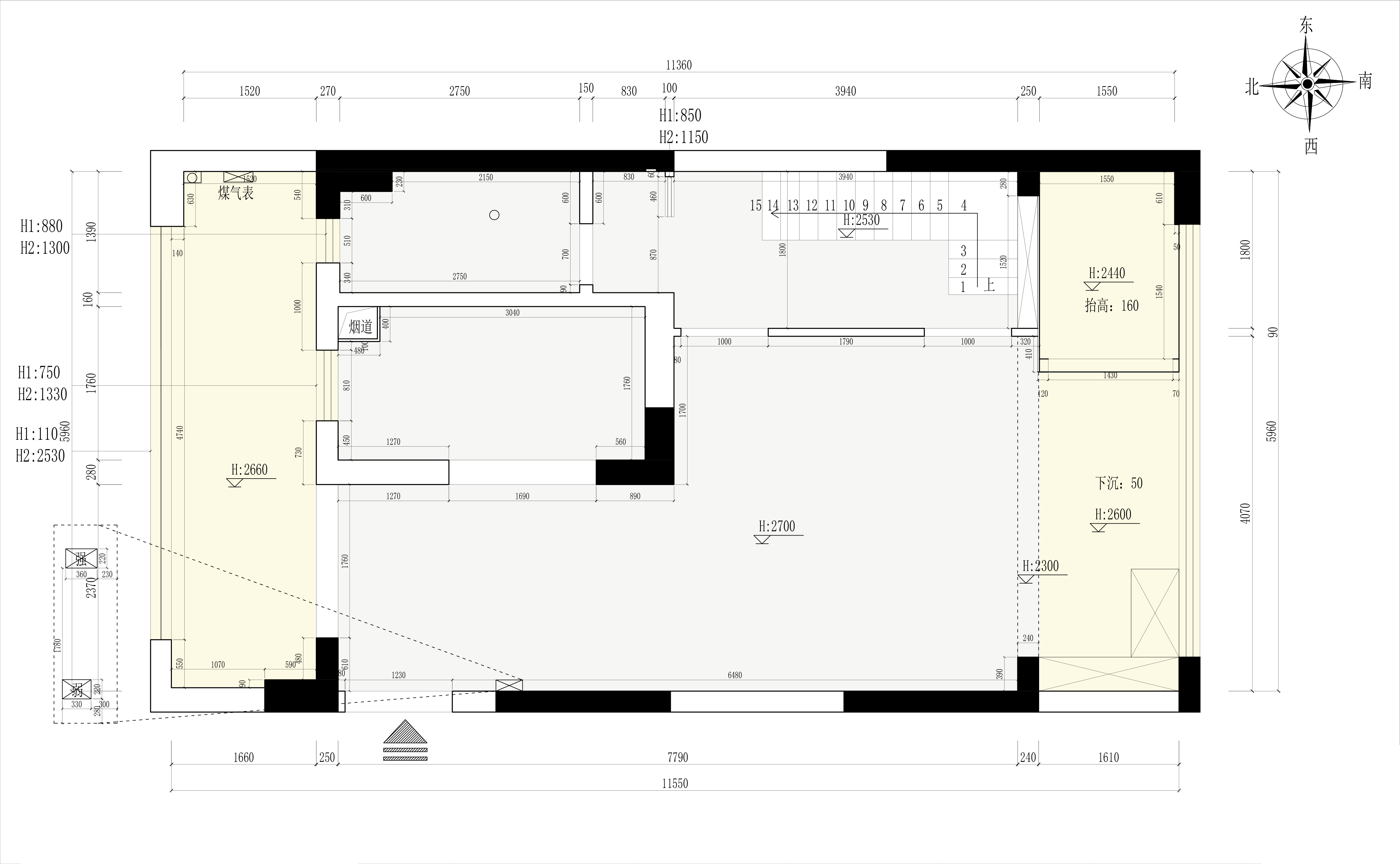
△1F空間規劃圖

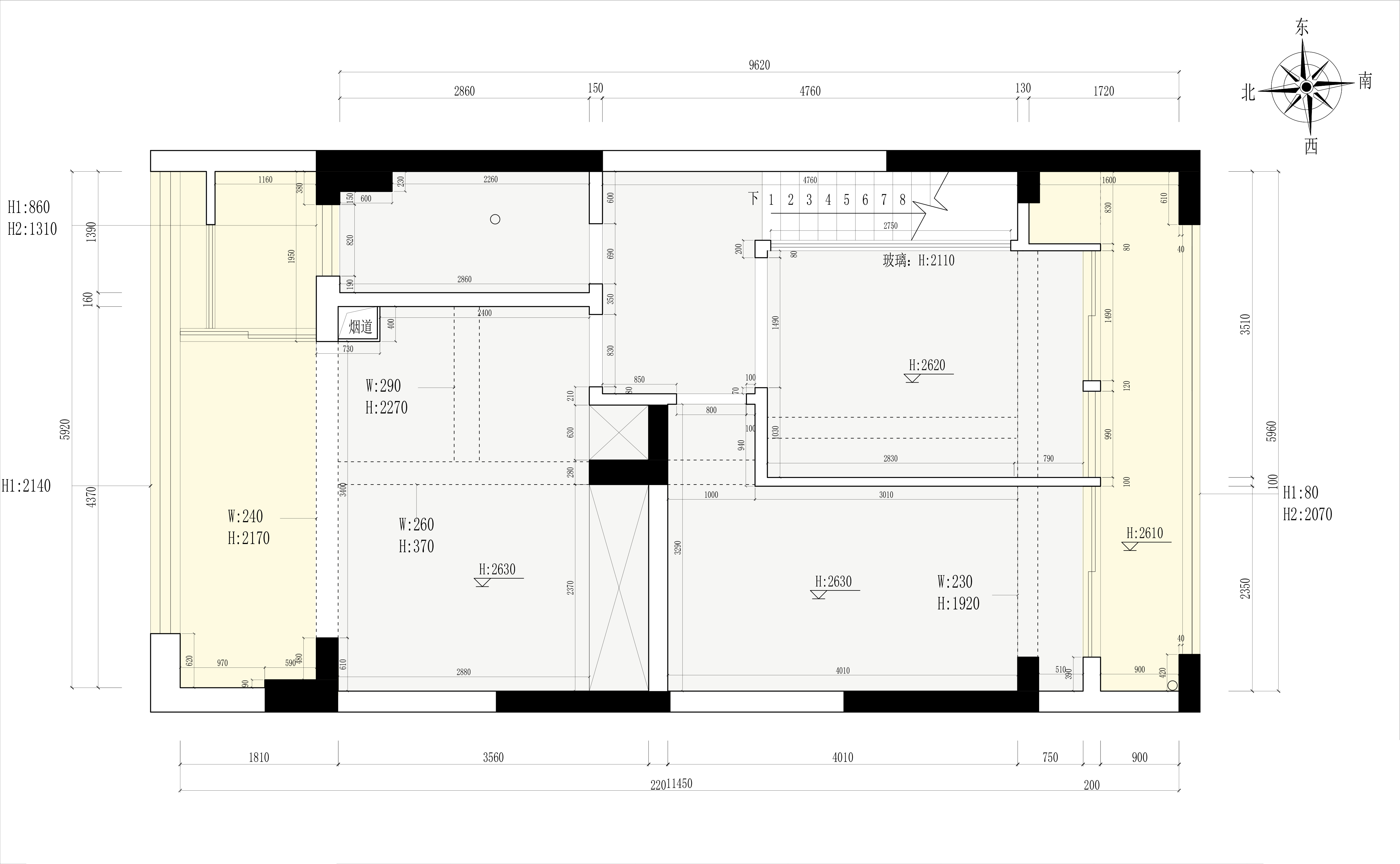
△2F空間規劃圖

△2F空間規劃圖
— THANKS —
原創作品 未经授权 严禁转载
歡迎转发至朋友圈

CW卓永设计官方联系渠道:
深圳市卓永室內設計事務所
Shenzhen CoekWing Interior Design
地址:深圳南山區華僑城創意文化園
H3棟309號
No.309,H3,District of OCT-LOFT,ShenZhen City,Guangdong Province,China
商務MarketingDept.:181 2405 7146
電話Tel:(0755)2405 7146
微博Weibo:https:////weibo.com/coekwingdesign
微信公眾號Wechat: CWDesign2020 / CW卓永設計
小紅書 :CWD2020H3309
抖音號:CoekWing


















































































