钢琴公馆-奥体店
杭州/设计爱好者/4年前/156浏览
版权
钢琴公馆-奥体店
项目名称:钢琴公馆奥体店
项目地点:杭州,浙江
项目面积:765㎡
空间设计师:朱健
门头/
前厅/

过厅/

剧场休憩区/

二层

剧场/

二层年班教室/

三层年班教室/

三层楼梯上口/
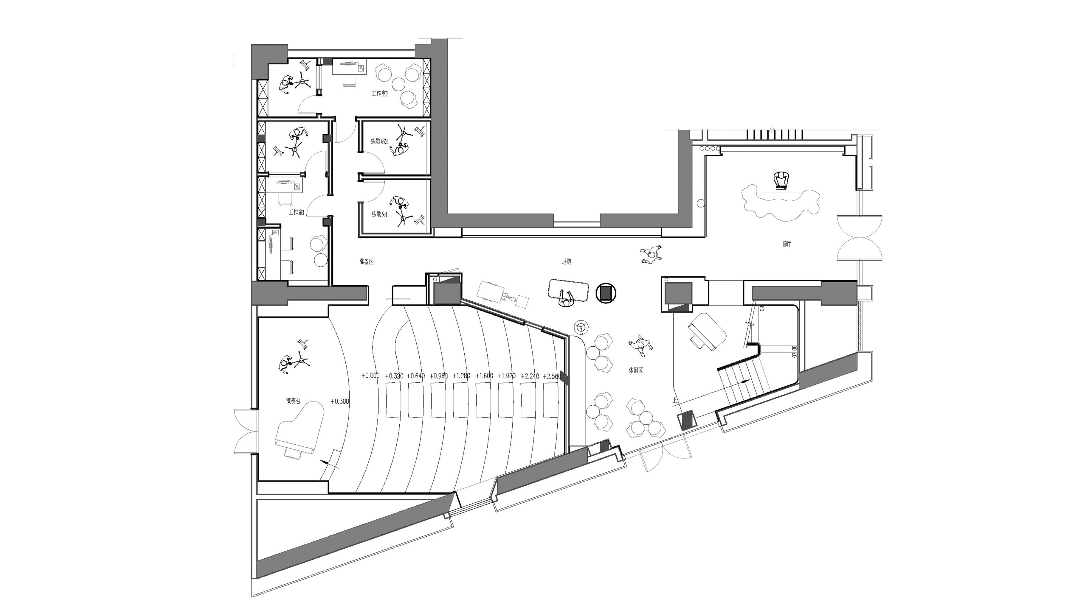
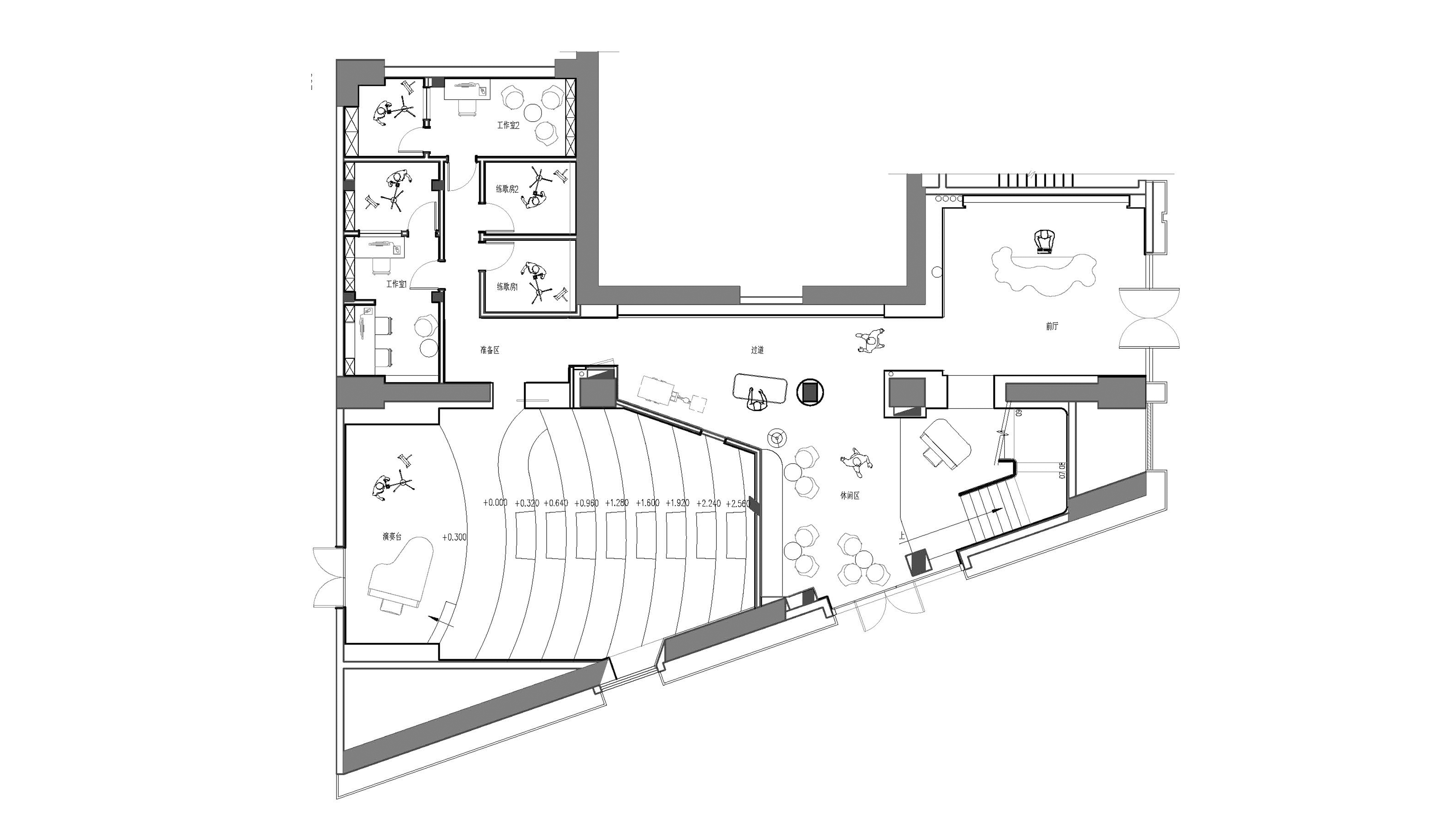
项目平面图
一层平面图
二层平面图
三层平面图
4
Report
声明
收藏
Share
相关推荐
in to comment
Add emoji
喜欢TA的作品吗?喜欢就快来夸夸TA吧!
You may like
相关收藏夹
Log in
4Log in and synchronize recommended records
收藏Log in and add to My Favorites
评论Log in and comment your thoughts
分享Share




















































































