深圳装修:博林天瑞80㎡现代简约,复式比平层更大气!
深圳/室内设计师/3年前/43浏览
版权
深圳装修:博林天瑞80㎡现代简约,复式比平层更大气!
现代简约
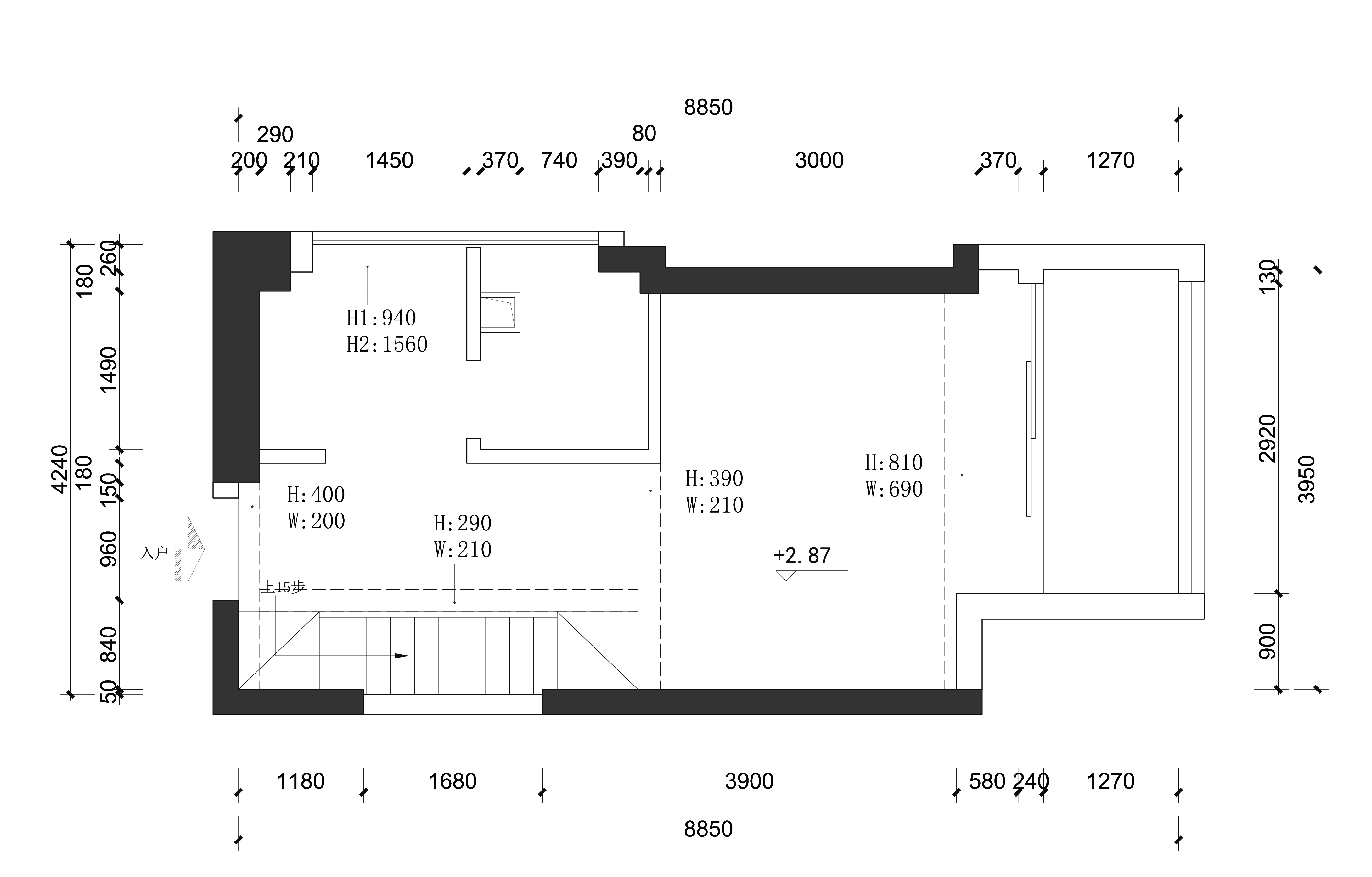
户型解析
本案业主是三代人居住,要求合理安排和布局,喜欢现代简约风格搭配轻奢元素,增加收纳的同时还不要空间显得拥挤,设计师通过色彩与材质的巧妙搭配,让整个空间典雅、轻奢又不显浮夸,经典时髦的同时,又让房间中的每1㎡,都体现出充满品质感的细节。
前后对比


本案的業主是一個干練和有個性的人,在繁忙的工作中仍可有條不紊地追求品質生活,過多複雜的元素對於業主來說其實是多餘的存在。所以整個空間運用柔和燈光來烘托溫馨環境,以奶色為主色調配上原木色、奶綠色和粉色點綴,共同構成一個舒適且個性的家,讓業主在塵世的喧囂中找到一份不可多得的靜謐。
客厅

设计师在客厅墙面的基础上,选择石膏线和木饰面以及欧松板硬包作为装饰,更倾向于营造出大气简约的氛围,没有选择无主灯设计,因为这个小区的层高还是比较高的,而且业主家里还想做中央空调和新风系统~
厨房

厨房采用L型的厨房设计,以灰白色为主调,白色的柜体搭配不锈钢台面,充满金属感,打造一个干净整洁又高级的厨房。
主卧

卧室是休息的空间,色调上比较温和,灰色大气d额背景墙搭配卡其色的大床,让人倍感温暖,窗户作为飘窗来使用,飘窗旁边还增加了收纳柜,增加卧室的收纳空间。
次卧

次卧靠窗设计,大大的落地窗采光非常充足~床尾是书桌设计,满足孩子的学习需求~
卫生间

卫生间没有多余的装饰品,采用斑点大理石,让整个空间呈现出高级感。墙壁里的柜橱节省空间的同时,也增加杂物的收纳空间。
0
Report
声明
收藏
Share
相关推荐
in to comment
Add emoji
喜欢TA的作品吗?喜欢就快来夸夸TA吧!
You may like
相关收藏夹
Log in
推荐Log in and synchronize recommended records
收藏Log in and add to My Favorites
评论Log in and comment your thoughts
分享Share












































![ZAOV|各[苹]本事](https://img.zcool.cn/community/68d247ffa534901h5u6ly05445.png?x-oss-process=image/resize,m_fill,w_520,h_390,limit_1/auto-orient,1/sharpen,100/quality,q_80)

































