深圳装修:中粮祥云128㎡一份宁静的北欧风情。
深圳/室内设计师/4年前/34浏览
版权
深圳装修:中粮祥云128㎡一份宁静的北欧风情。
北欧风
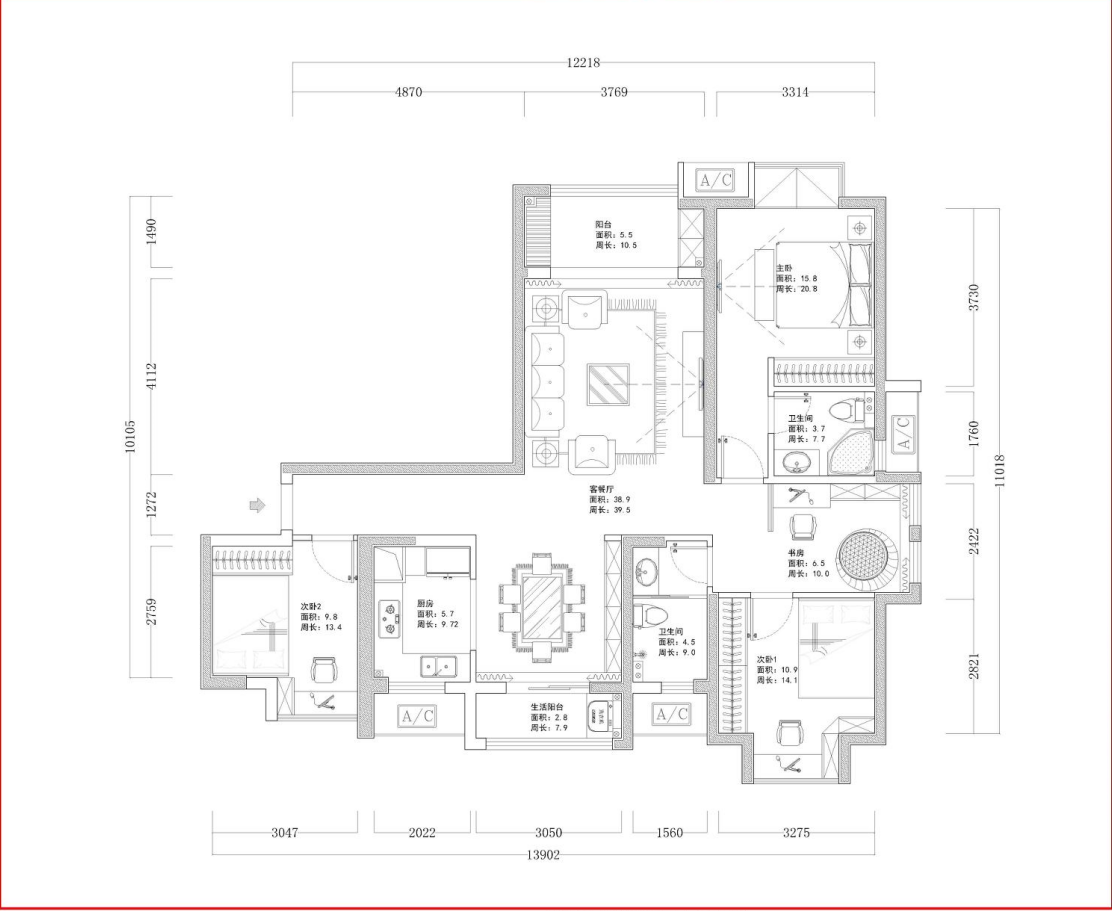
户型解析
钟爱北欧风,简洁,直接,功能化且贴近自然。一份宁静的北欧风情,绝非是蛊惑人心的设计,内部结构方正,采光充足,布局紧凑。
前后对比


本案以现代北欧为设计初衷,设计师用现代自然的手法,浅木的色调,形式简洁而又独特雅致的家私,拥有自然清晰的纹理,软装搭配也清新自然。
客厅

北欧风格空间大多数是以白色为主基调,简单,清爽,干净,同时也使得空间看上去特别通透,可以很好的达到空间扩充的效果。
餐厅

餐厅给人第一印象是轻松、简约的舒适用餐环境,紧靠落地窗、直通厨房拥有良好的采光。
主卧

卧室延续外部空间的设计元素,作为休息区域,塑造的气氛更为静谧优雅。原木、棉麻、绿植也在经过纱帘过滤后的阳光下显得更加柔和。
卫生间

卫生间设计趋向的原则干净、简洁。使得在家休息沐浴时是更快乐的舒心享受过程。 结尾:一个家承载的不是富丽堂皇的装饰,而是一份让人放松的温馨,都市人忙碌一天回到家中,是时候停下脚步,慢慢地享受生活了,享受亲情、爱情、友情的美好。
0
Report
声明
收藏
Share
相关推荐
in to comment
Add emoji
喜欢TA的作品吗?喜欢就快来夸夸TA吧!
You may like
相关收藏夹
Log in
推荐Log in and synchronize recommended records
收藏Log in and add to My Favorites
评论Log in and comment your thoughts
分享Share
















































































