深圳岚庭设计:金成名苑93㎡,简约又大方!
深圳/室内设计师/4年前/38浏览
版权
深圳岚庭设计:金成名苑93㎡,简约又大方!
现代简约
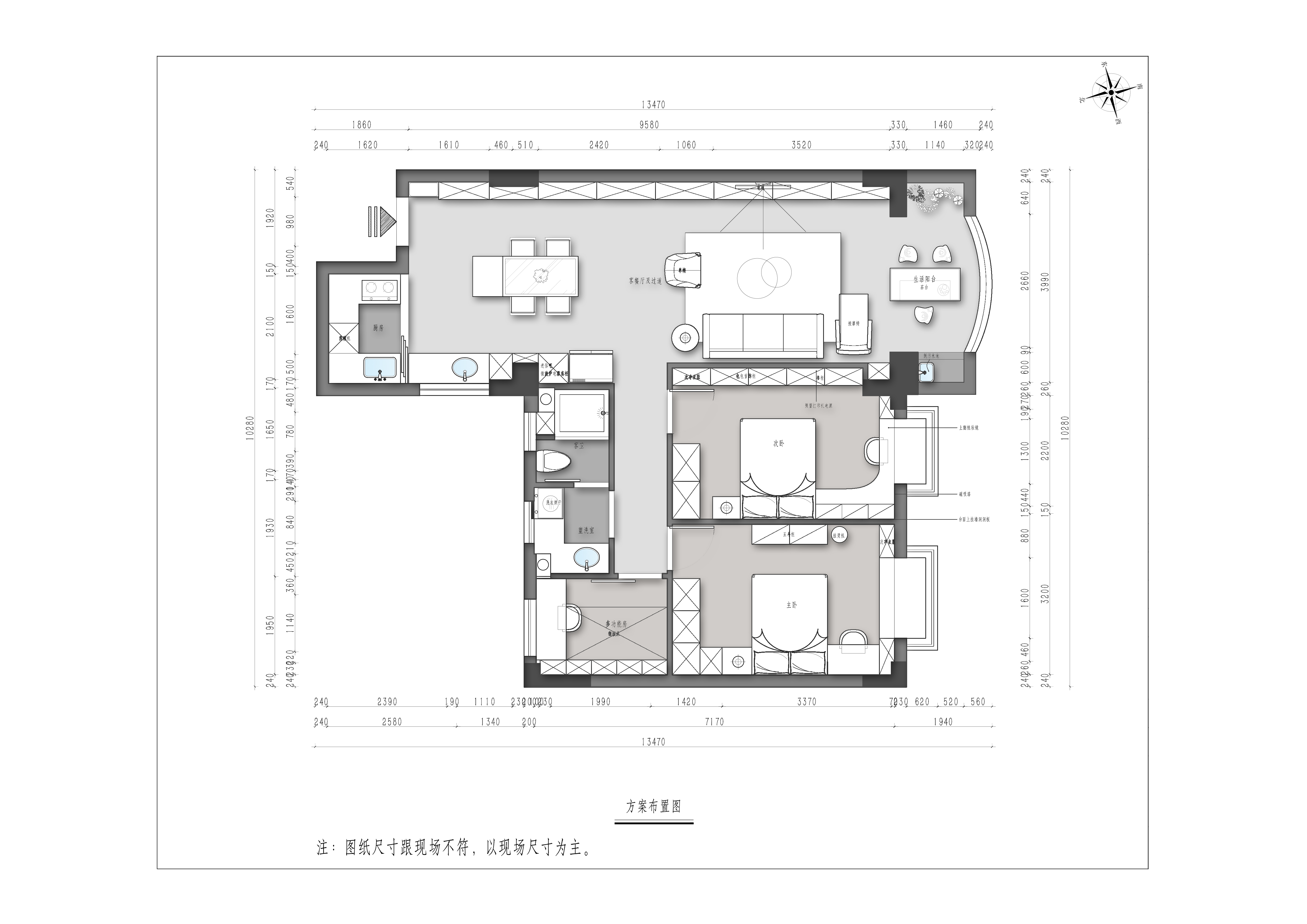
户型解析
这是一套93平的房子,户型面积较大,整体空间以现代简约风格的空间,大量加入石材、木饰面、硬包的设计,以黑白灰的配色,加入木质感的搭配,布置现代舒适的灰色家具软装,让居住空间充满时尚优雅的大方感。
前后对比


本案定义为现代轻奢的风格,整体空间通过格局改造,重新规划厨房以及餐厅布局。客户家里常驻夫妻两人、女儿。偶尔接待朋友。客户要求主卧做一个次净衣物区,用于放置当天穿的外套以及穿了还不用洗的衣服,将客卫往原榻榻米房扩大,将洗手间重新规划为三分离,原来主卧套间衣帽间重新隔开,作为客房来使用。女儿在英国学习服设,对自己房间的设计很有想法,要求做一面大柜子放置自己的包包、陈列品与打印机,需要有一个大的操作台与梳妆台。设计师于是结合飘窗做转角书桌,既满足了大操作台的需求,也满足了拥有一个梳妆台的想法。本方案最大的亮点是卫生间的三分离以及客厅那一大面墙的柜子。在保证每个空间使用尺度的最大化利用的情况下,满足客户的需求并将它们相互融合,融合出来的结果,正是客户最想要的方案。
客厅
客厅,整个空间比较宽敞明亮,顶面是吊灯设计,客厅刷大白墙,灯光不刺眼。浅灰色的布艺沙发搭配灰色的木质茶几,非常有质感。电视背景墙是木板装饰,电视机直接挂在墙上,更安全还节省空间。
餐厅
客厅的墙板延伸到餐厅区域的墙面,餐厅天花上装一个木饰面材质,让房梁遮挡起来,装上一排的吊灯,又起到了很好的装饰效果。
主卧
去掉装饰性太强的悬顶吊灯,铺就雪一般的纯净。
次卧
次卧床头墙以灰色硬包,布置白色布艺床单+灰色床单,于空间较小,右侧搭配了弧形的写字桌。晚上手机充电可以放在那里,非常方便!
0
Report
声明
收藏
Share
相关推荐
in to comment
Add emoji
喜欢TA的作品吗?喜欢就快来夸夸TA吧!
You may like
相关收藏夹
Log in
推荐Log in and synchronize recommended records
收藏Log in and add to My Favorites
评论Log in and comment your thoughts
分享Share














































































