深圳装修:建邦听海130㎡法式装修,惬意与浪漫的气息呼之欲出
深圳/室内设计师/4年前/68浏览
版权
深圳装修:建邦听海130㎡法式装修,惬意与浪漫的气息呼之欲出
深圳岚庭设计师原创
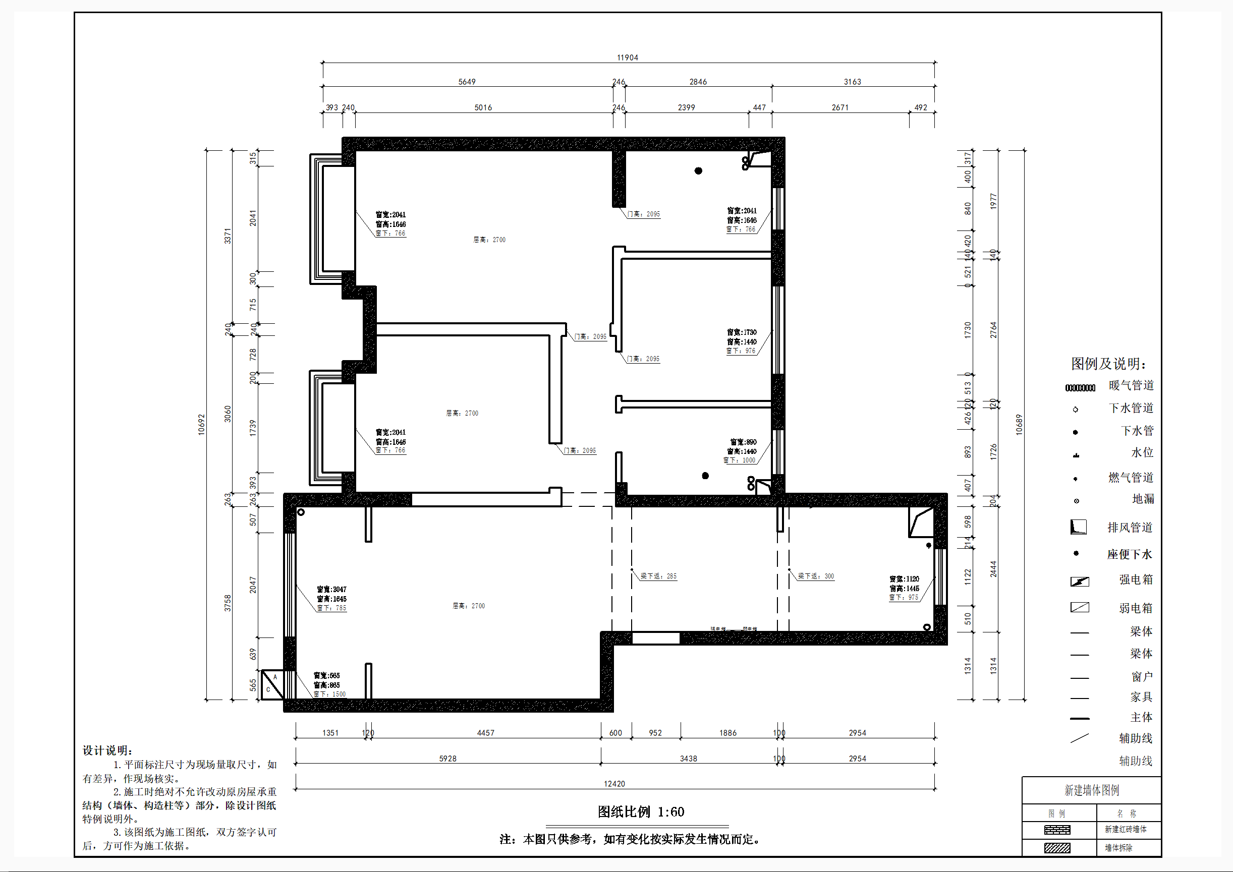
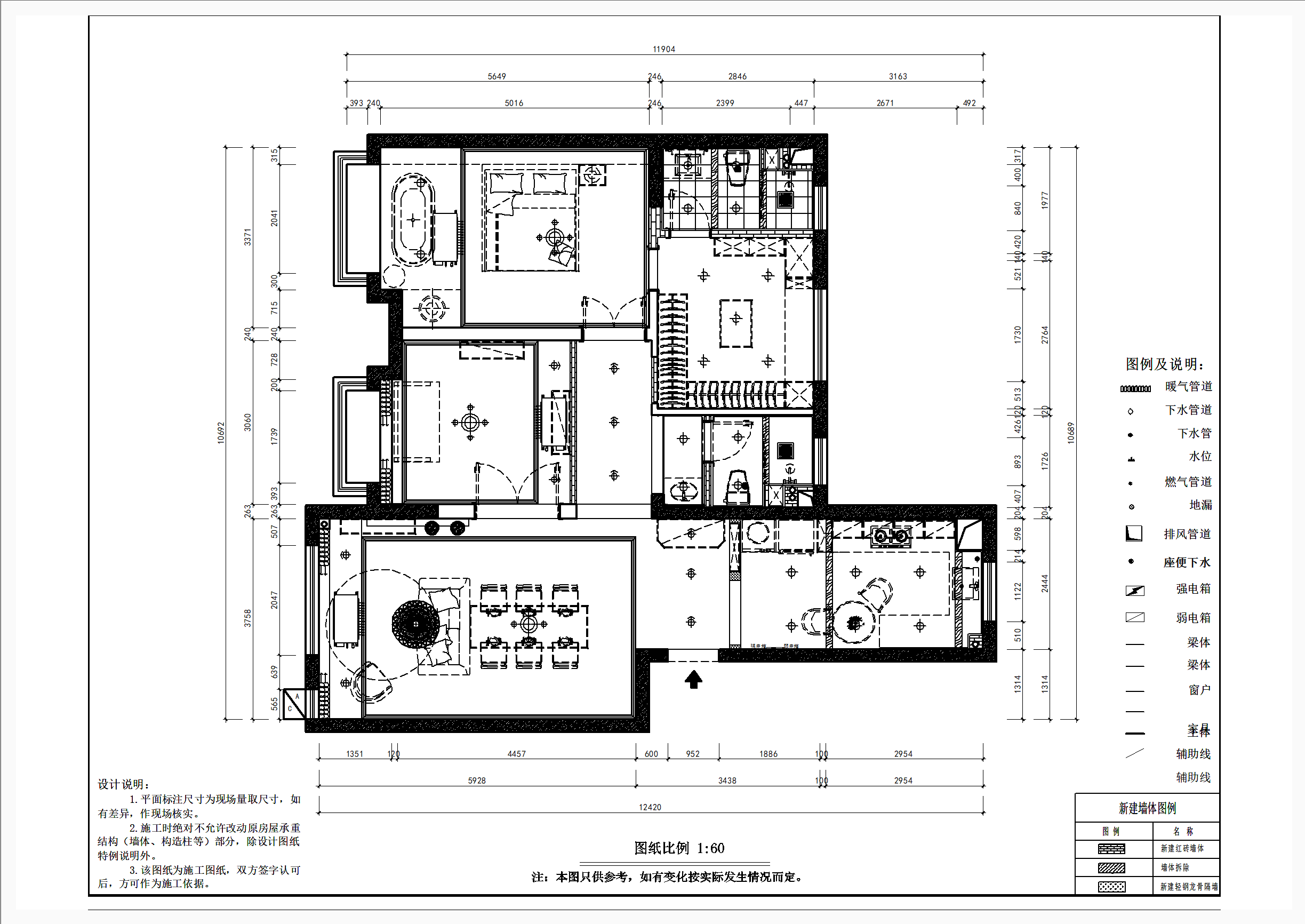
户型解析
结合业主的喜好与需求,定位法式中国风,其设计思路是在经典的法式家具里面,将法式的精髓提炼到极致,与中国文化相结合,创造出拥有中国文化底蕴的时尚空间。
前后对比


本案客户是一位独立女性,将三室的房子改为一室的 法式混搭风格 1.将厨房扩大,做开敞式厨房,与餐厅区域融为一体,同时与玄关融为一体,让整个空间更贯通。 2.将南次卧拆除作为开敞式书房,与客厅相呼应,拱形门的造型以及法式石膏线相呼应,优化了一入户看见的视野,室本案的亮点 3.从书房步入进入主卧,增加了进入卧室的仪式感,主卧门的另一侧做了造型门来呼应。 4.因女主对仪式感的要求比较多一些,所以将浴缸放在了阳台上,窗外是海景,所以视野性比较好
客厅
客厅的装修说起来也是“面子”工程,宽敞明亮的客厅让人一看见就身心舒畅。空间的合理利用让客厅变得不仅仅是个摆设,还赋予画龙点睛的功能。
餐厅
大到整个餐厅,小到所有餐具,每一处都是精致且典雅。对于餐厅里的设计,设计空间以奶白、复古,浅蓝系为基调,奢华妩媚,以暖色为主的家具和摆设成为点睛之焦点,清透清爽的新鲜空气在室内流动,配上温馨宁静的灯光,使空间既温馨又迷离,让我们以最和谐的心境迎接生活的精彩!
厨房
厨房装修最重要的一点就是空间的规划,试想,在一个没有合理布局的厨房做饭,会让人忙得晕头转向,工作起来也缺乏条理,久而久之,厨房就变成了灾难现场。
主卧
设计师考虑到在不改变空间布局的前提下,让主卧空间拥有更多的通透性,利用局部墙体+长虹玻璃屏风的形式作为卧室空间的功能区隔断。
1
Report
声明
收藏
Share
相关推荐
in to comment
Add emoji
喜欢TA的作品吗?喜欢就快来夸夸TA吧!
You may like
相关收藏夹
Log in
1Log in and synchronize recommended records
收藏Log in and add to My Favorites
评论Log in and comment your thoughts
分享Share














































































