匠心传承,塑造木作经典 | 原景作品
深圳/室内设计师/4年前/119浏览
版权
匠心传承,塑造木作经典 | 原景作品
“形式服从功能。”
--路易斯·沙利文
·
"Form follows the function."
-- Louis Sullivan

“形式服从功能。”
--路易斯·沙利文
·
"Form follows the function."
-- Louis Sullivan

空间与艺术的本身都需不断地探索,透过本身去看本质。
而对木作最好的诠释或许便是承载着匠心工艺的传承。
▼丨起·Since
基于功能
始于形式

一帘入境,透过镂空望去,内部结构若隐若现。石·木·火多元化碰撞为门面设计彰显不凡气质。

踏入玄关,四面墙体环绕好似闯进一处迷宫,秘不可测。侧光打入将路线重启,一场空间与艺术的碰撞即刻启程。

缓缓步过,将一缕缕光顺势轻洒,所映之处将木作纹理纤毫毕现。
▼丨承·Bearing
与木作相当
茶室融于其中
承载着至极至美之意


曲径通幽之时,木饰格栅为空间渲染着神秘之感,茶室弥漫而出的气息成为路引。进入茶室,精炼的线条感亦为空间增添着几分灵动。


餐厅区域以新时代的标志映入眼帘,透光石与岩板相辅相成,光面烤漆板与玻璃材质的通透彰显饱满生机。
▼丨转·Turn
辗转中
空间变幻
明暗折射逐步交替



继而向前,客厅展示区将设计融于功能,无论工艺或是形式都使得空间充满层次与呼吸。

水泥空心砖垒砌而成的墙体洋溢着秩序与力量,无形之中,空间美学别具一格的气质在此悠然浮现。
▼丨合·Join
匠心永恒
是终点
亦是起点

置身廊道空间深古铜色不锈钢与浮雕玻璃的加持,将暖光嵌入,空间结构张弛有度。

兜兜转转间,当双门面设计玻璃的清冷遇上木作的暖意,强烈的反差感又将迸发出怎样的奇幻之旅呢?

原始结构图

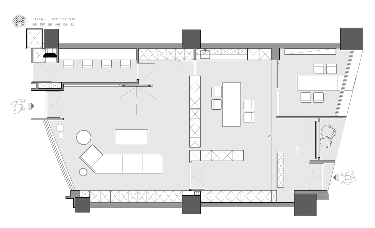
平面布置图
3
Report
声明
收藏
Share
相关推荐
in to comment
Add emoji
喜欢TA的作品吗?喜欢就快来夸夸TA吧!
You may like
相关收藏夹
Log in
3Log in and synchronize recommended records
收藏Log in and add to My Favorites
评论Log in and comment your thoughts
分享Share

















































































