Upark公园 烧鸟屋
一家有温度的日料店
项目地址:成都Upark公园
设 计:Acura
酒窝烧鸟店位于购物公园中心,位置闹中取静,呼应“慢生活”主题。在创作中,将日式料理的文化语言融进空间细处。以日本文化中典雅、细腻、和谐、幽静的为核心,提取当代文化的招财猫形象、红色牌坊、水幕帘,结合艺术、LED灯、声音与视觉互动设计塑造日本特色场景,打造兼具艺术感与自然体验的空间。
烧鸟店,是一种具有日本地道风情的烧烤店,美味的鸡肉串做成精致的小盘、配以美酒,是为食客带来轻松和快乐的美食品类。
日式料理是不仅能用“味觉”去品尝、更是一道“眼睛”的盛宴,解读日料蕴含的文化密码,在设计中讲求“色香味”俱全,从食客整体性感受出发、让环境氛围渗入个体,个体体验到鲜活与完整性,引领他们体会慢生活与真美味。

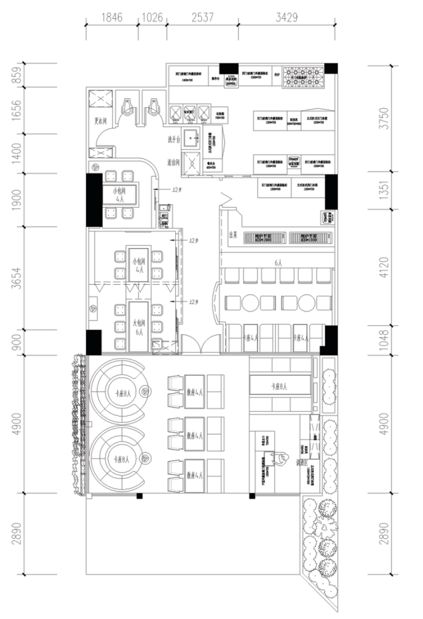
平面规划图:
精准合理的空间结构划分,将整体划分出前厅、就餐区、吧台、包房等功能区,引导食客逐步往里探索,弧形的卡座区、水吧台、架空的包房,不同区域各有不同亮点,丰富空间的层次和流线,步行期间,移步换景,一处一内容。

公园周围以自然风光为主,烧鸟店成为独立的存在,也让烧鸟店依景而建。如何将风景引入店内,成为设计师的思考的主题,首先将入门就餐区进行180°大面积天窗覆盖,不规则的天窗设计在形式上给人新鲜感。
通过大面积玻璃打破室内外距离,让食客身处其中如置身自然,味蕾得到满足的同时,带来独特的视觉感受。
空间主调以温润木色为主,温润的木纹墙体,体现日式建筑的典型风格创造出一种随性精致的造型魅力,串联着光线与彩霞流动,静静陈述者空间的独特品味与静享氛围。
此外,设计师对于商业设计的思考,将烧烤区打造成开放式区域,不仅食客放眼就能看到美食制作过程、视觉得到再一次的满足。飘香的烤串味勾引食客的胃,点餐时不自觉便会点多两份。
“沉浸式体验是当代文化与科技融合而成的一种新业态,也是餐厅设计领域中具有前瞻性的趋势。”一直以来,我们不断自我挑战与革新,对新事物理解与尝试,多维度打造奇趣感官体验的商业空间。

在不同的空间里,灯光都是用心打造。食客伴随光线从前场向里,随着脚步进入一个新的空间,每一张餐桌的灯光进过精细调节后照射出明亮又不刺眼的柔和光线。偏暗大环境的幽深与落座后场域的明亮,两个包含又独立的空间,带给消费者神秘感与轻松感。
灯光照射在食物上,呈现一场视觉盛宴,味蕾享受时视觉也得到了抚慰。

烧烤区运用原石、彩色玻璃为空间造景,形成视觉记忆点,配以灯光,其中灵动的波光与粗糙岩石碰撞,营造出朴中有致、雅中生境的日本禅意美学。


设计师试图用“融合、随性”去创造出舒适度与轻松感,让食客在就餐中放下所有的顾虑,不知觉得沉浸在美食中。从整体的沉浸式中营造独特感官,将日料的特色融入进空间语言里,给食客带来的美好的感受,进而打造出独树一帜的商业空间。



























































