视觉与味觉的相融,碰撞,富有质感的现代生活体验
贵阳/室内设计师/4年前/71浏览
版权
视觉与味觉的相融,碰撞,富有质感的现代生活体验
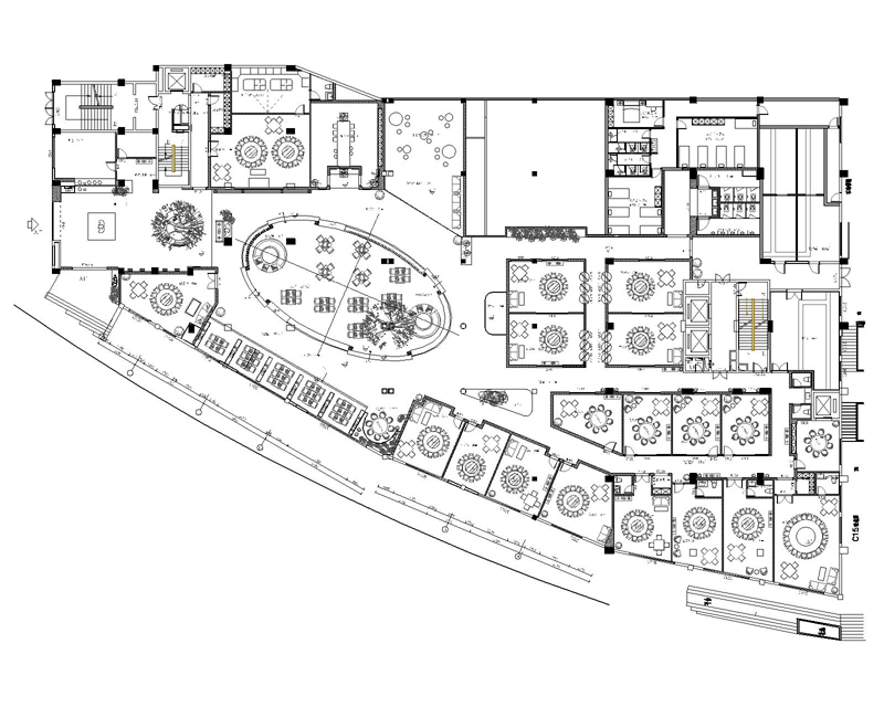
项目地址丨乌当区大坡路
项目面积丨2004.6㎡
设计风格丨多元风
设计机构 | 道合/田泓良工作室
设计师丨石国春
最古老经典的造型被远古人类寄托了智慧、财富和理想,我们往往不愿去亲身经历,所以不知道自己听到的世界并非真正的世界。

错落有致的贴砖搭配木色篱笆,紫色小花优雅迷人。圆形掏空处理让墙体富有层次感,不至于太过空白。木质元素在隐藏灯带的映衬下,让人倍感温馨,宾至如归,情真味浓。

灰白砖块的垒砌,朴素之感油然而生。绿色在其中点缀,引景入室,生机勃发。雕刻木质隔断,中和了其间的冷硬,略显柔和。

圆形岛台,让空间左右方便流通,视野开阔,满足操作存放需求,使空间得到充分利用。搭配圆形酒架,上下呼应。鱼骨拼接的地砖,层次饱满。

野性十足的牛像摆件,渲染主题。M弧度的灯具组合,照明之余也起到了装饰作用。玻璃元素让空间满满的高级感。

有质感的现代生活体验,就在此刻展开。

木质元素为主打,极具特色的农家小院移入室内,大树、篱笆、石磨、土砖、绿植、流水......小桥流水人家既视感。




掏空设计的墙体,与印有徽派建筑的屏风相呼应,线条之间的相融与碰撞此起彼伏。倒扣的书页造型,让顶部不在单调。

0
Report
声明
收藏
Share
相关推荐
in to comment
Add emoji
喜欢TA的作品吗?喜欢就快来夸夸TA吧!
You may like
相关收藏夹
Log in
推荐Log in and synchronize recommended records
收藏Log in and add to My Favorites
评论Log in and comment your thoughts
分享Share














































































