贵阳精装房改造之室内空间布局改造,满足业主个性化需求
贵阳/室内设计师/4年前/146浏览
版权
贵阳精装房改造之室内空间布局改造,满足业主个性化需求
精装房作为目前比较流行的一种建筑装饰方式,在空间结构上追求统一化装修,在空间布局上难免满足不了不同人群的需求。
室内设计是指为满足一定的建造目的而进行的准备工作,对现有的建筑物内部密间进行深加工的增值住备工作。精装房作为目前比较流行的一种建筑装饰方式,在空间结构上追求统一化装修,在空间布局上难免满足不了不同人群的需求,因此,对于有要求的业主来说,空间的布局改造是有必要的,接下来跟随小编的脚步,看看空间布局上有哪些要点?

融创九樾府精装房
满足业主需求
合理的布局设计,是整个设计方案的核心,设计师在规划方案时,应倾听业主意见,将业主的想法与实际户型相结合,赋予科学的设计方法,三者相型合而成。如问满足业主的她一需求,是首先要考虑的问题。

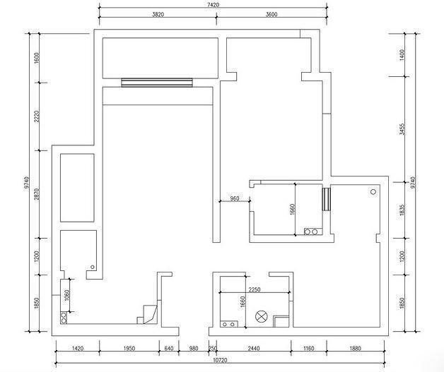
户型改造前

户型改造后
户型改造前后对比
考虑按全性
即所有装饰物,家具,电器等的摆放及安装都不能威胁到人身安全,存在潜在的安全隐患,尤其是有老人和小孩子的家庭,如问做到电线化学用品的收纳是很重要的。
做到比例适度,房间舒适,敞亮
“居室”是居住生活的地方,各部分设计都要以此为出发点,方便人们各类活动,减轻疲劳。
有效利用室内空间减少浪费
居室不论大小,都要有明确的活动路线和足够的活动空间:
做到布局新颖美观
给人们以心理,情感,视觉上的满足,环境美的创造,不仅要按设计师的审美观进行艺术设计、最主要的是要反应居室主的需求及审美观,要在温湿变、翔月,噪音等方面全方位的考。
在空间布局上人们要把卧室作为家在中心的原则
合理安排起居的位置,各功能空间应有良好的空间尺度和视觉效果,功能明确。
颜色的调配,要适合人体的生理机能,
室内颜色要有主次,不宜过多,多则乱,只有色彩搭配和谐才的烘托出室内坏境的氛围,增加艺术气息。
家具的选择应注意活动需要
家具的选择与组合,取决于家庭群体活动的需要以及空间条件,选择适合环境风格的家具,对住宅的布局设计起着十分关键的作用。

精装房的空间布局改造,通过设计师与业主的沟通,确定其个性需求,方能改造出满足客户的方案,从而装饰出一个个使业主满意的家。
0
Report
声明
收藏
Share
相关推荐
in to comment
Add emoji
喜欢TA的作品吗?喜欢就快来夸夸TA吧!
You may like
相关收藏夹
Log in
推荐Log in and synchronize recommended records
收藏Log in and add to My Favorites
评论Log in and comment your thoughts
分享Share

















































































