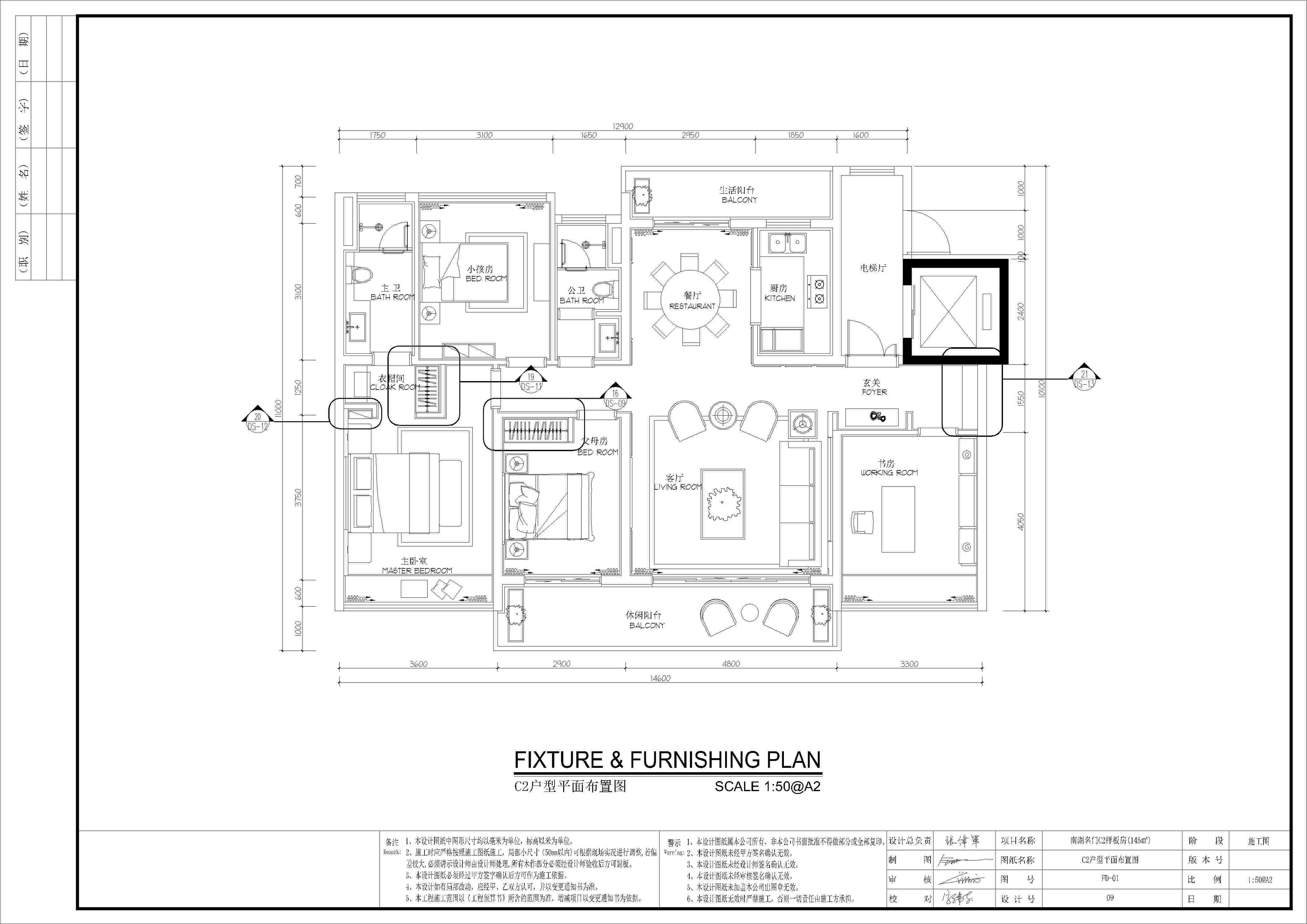
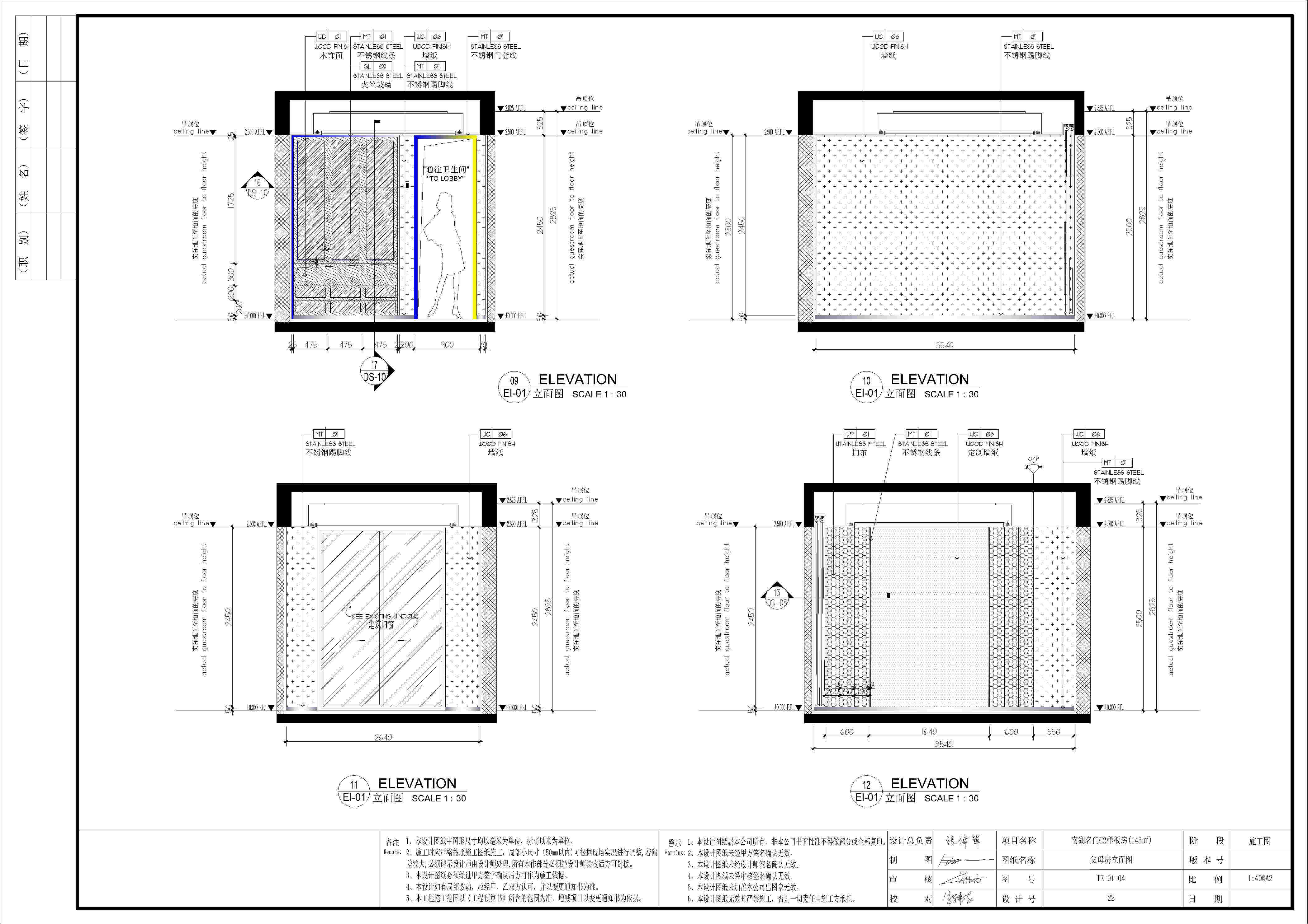
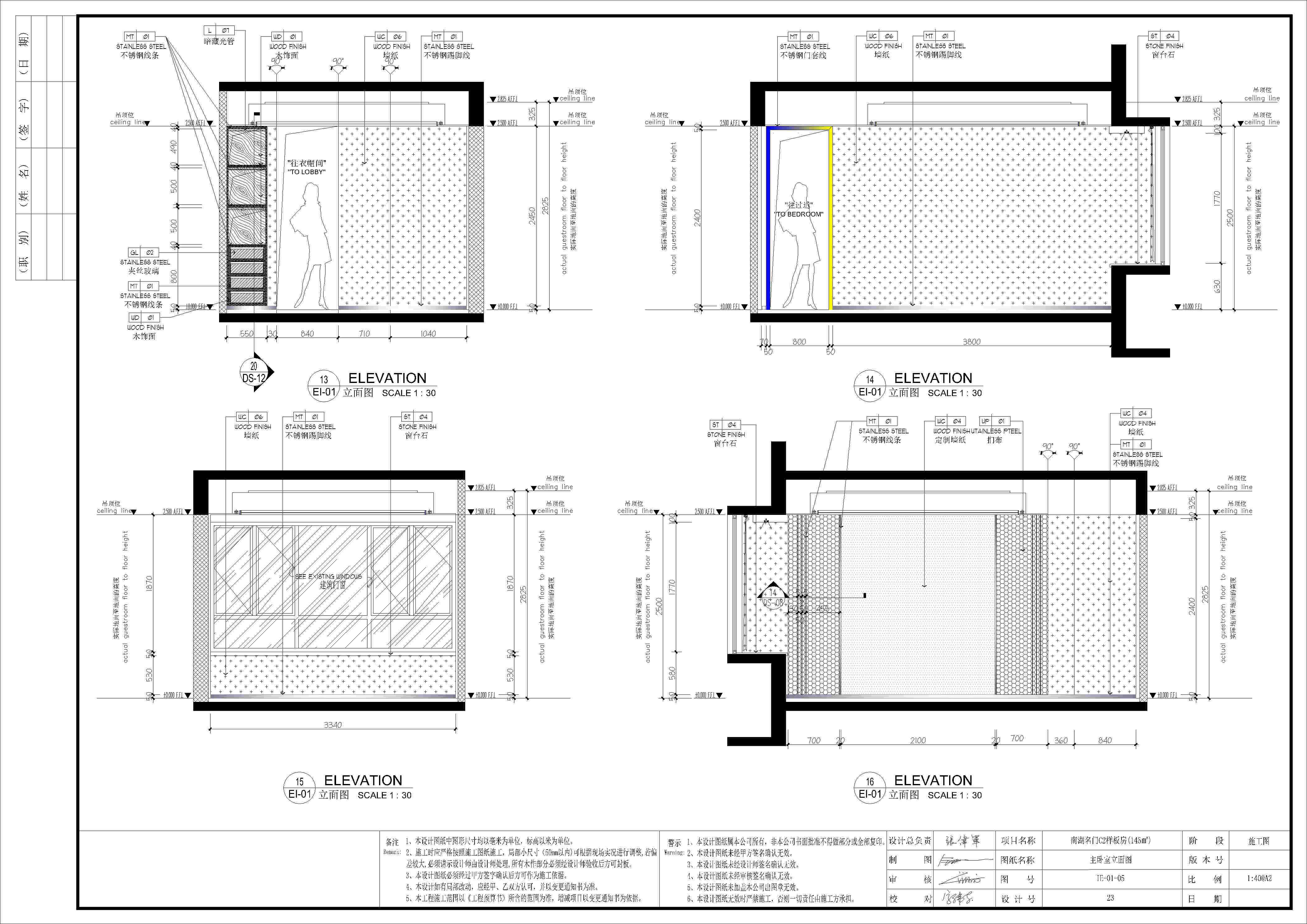
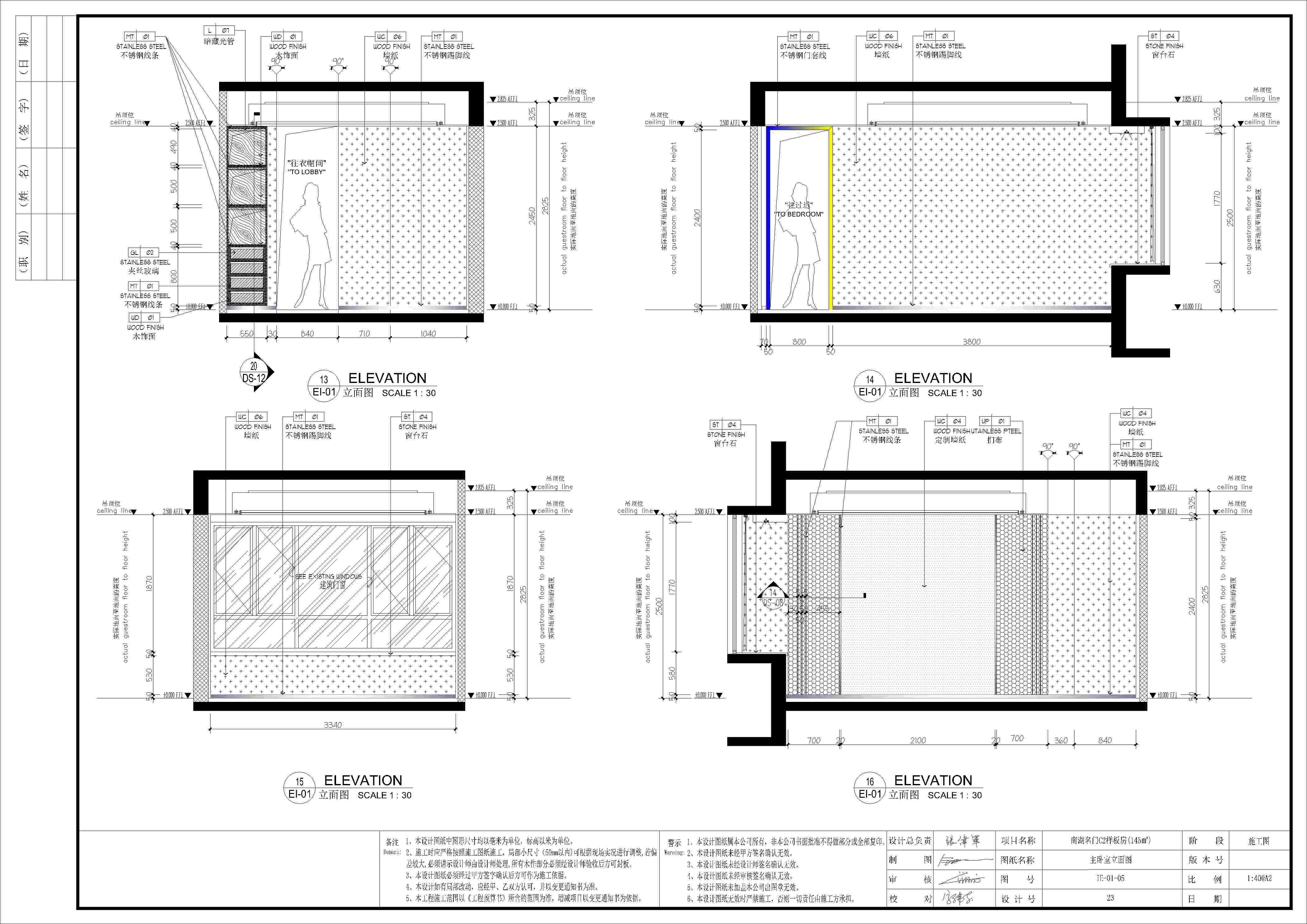
DSG中高端施工图深化设计作品集丨售楼部丨样板间丨
南京/设计爱好者/6年前/424浏览
版权
DSG中高端施工图深化设计作品集丨售楼部丨样板间丨
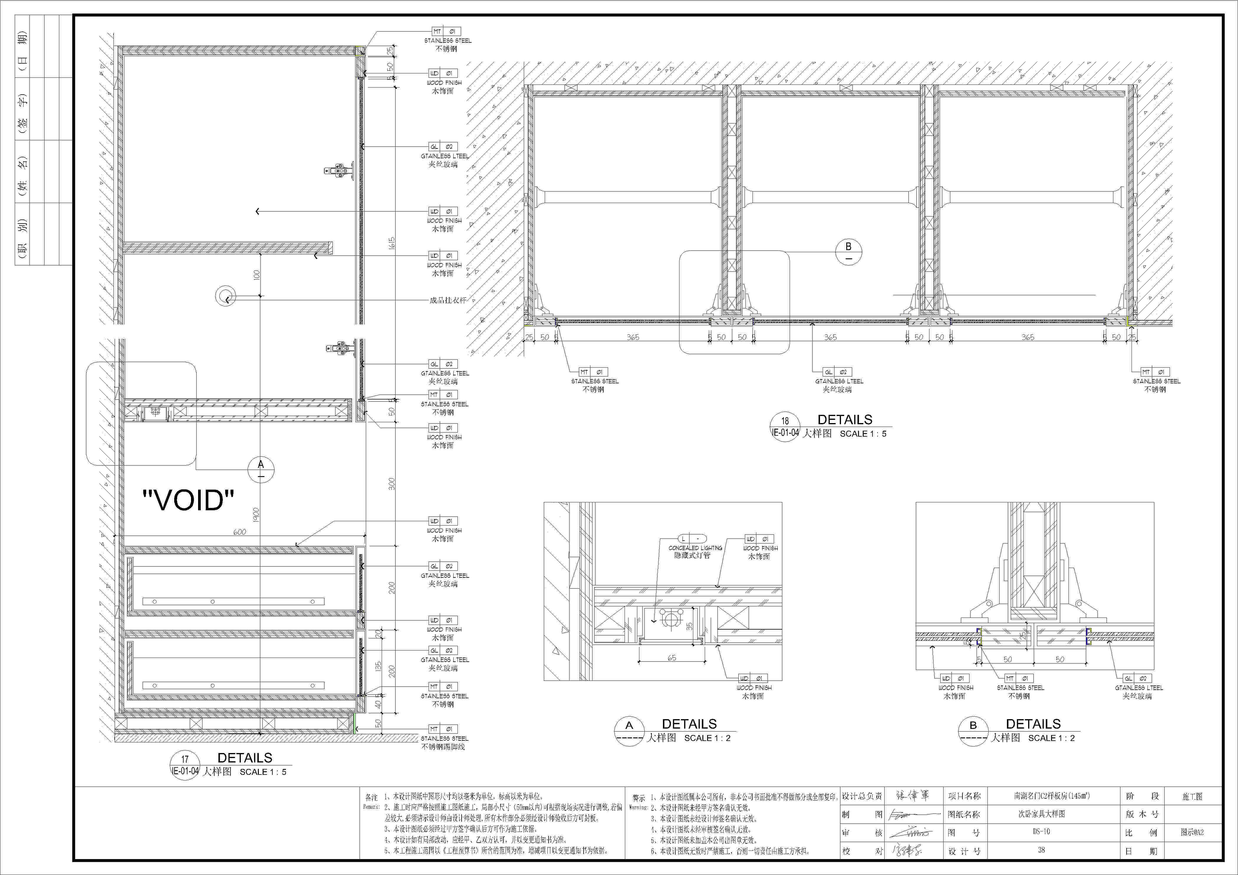
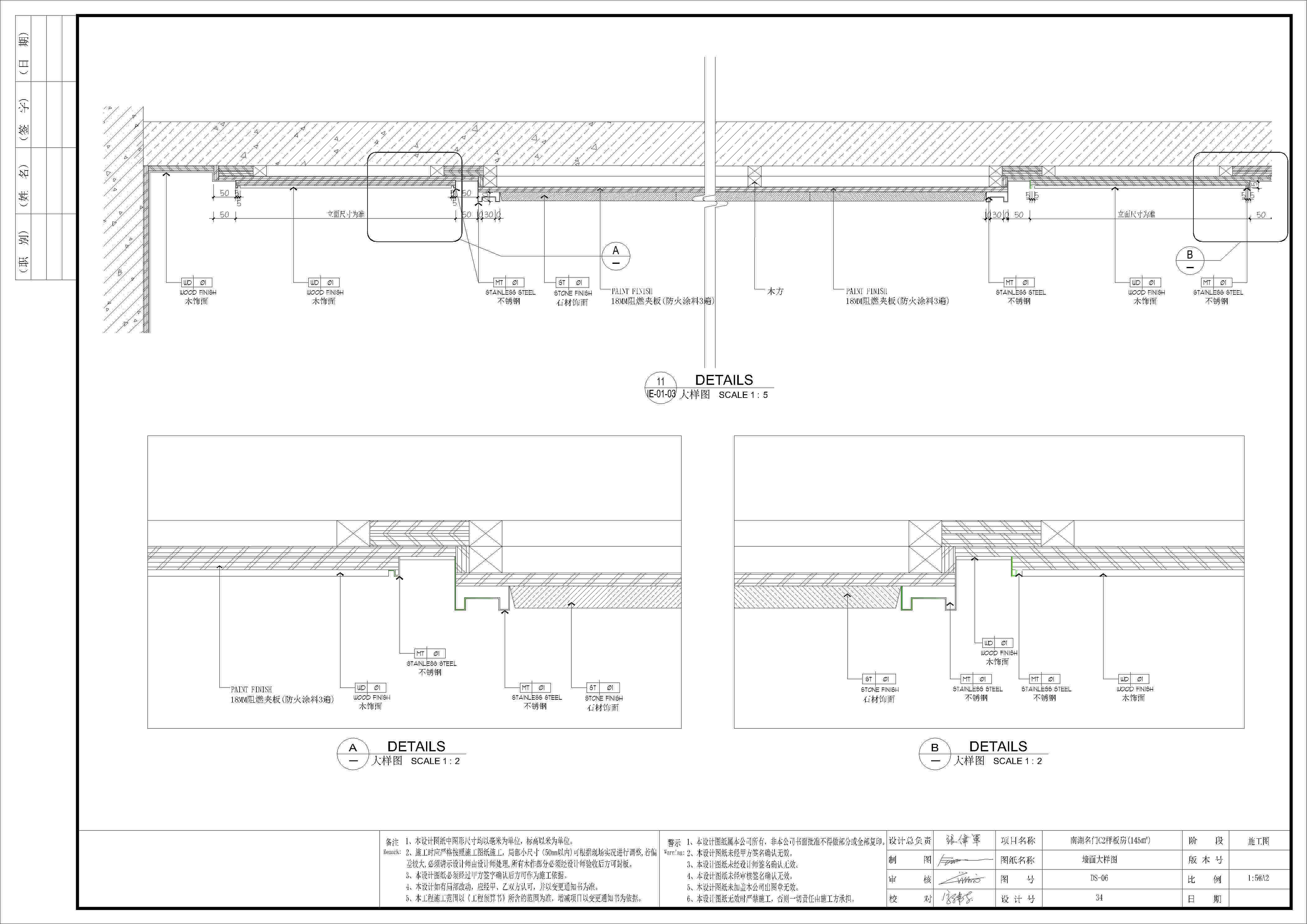
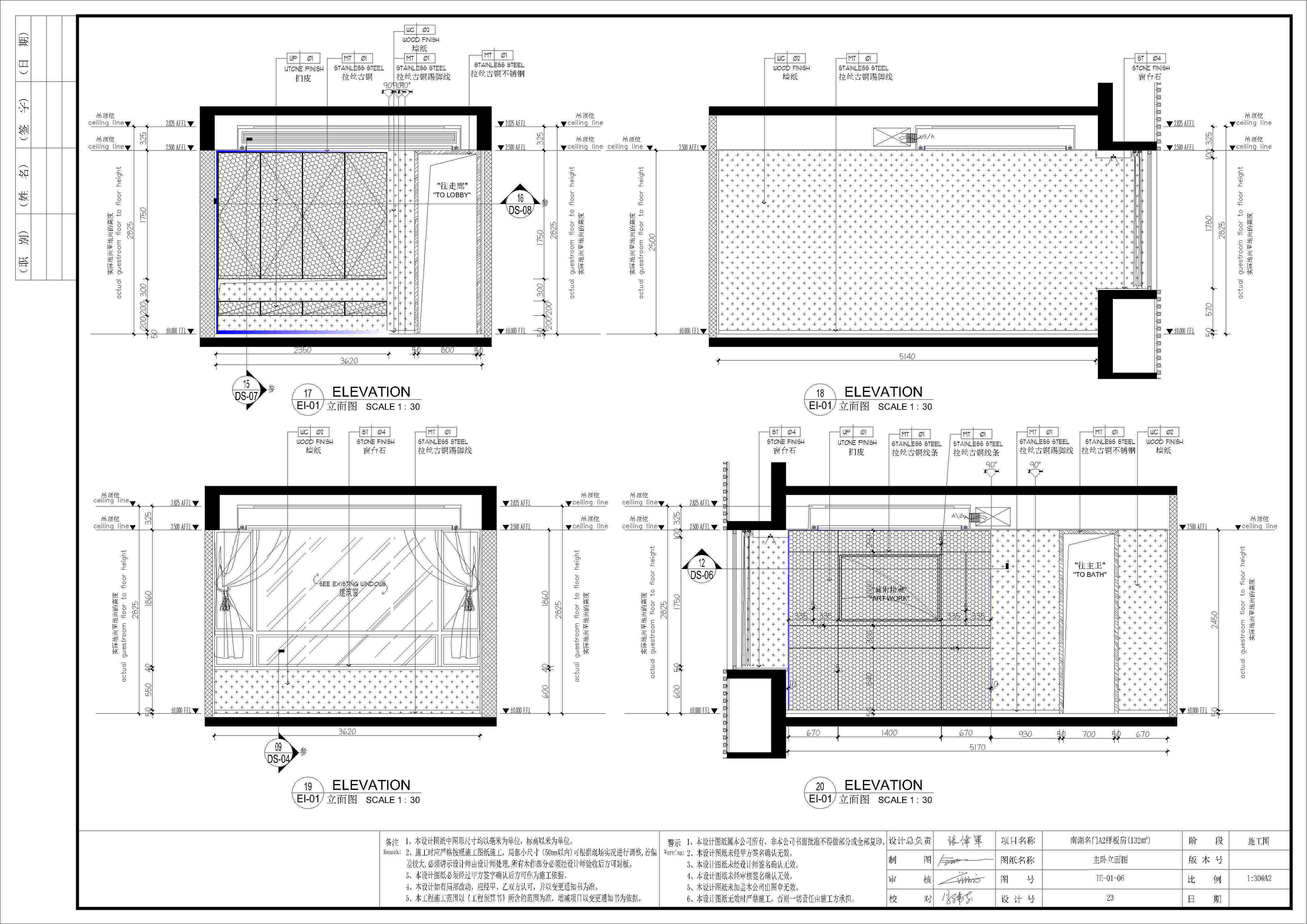
D-SG室内设计深化有限公司成立于2013年,创始者们曾就职于金螳螂及沿海知名设计团队;公司核心团队由一支经验丰富的年轻团队组成
D-SG室内设计深化有限公司成立于2013年,创始者们曾就职于金螳螂及沿海知名设计团队;公司核心团队由一支经验丰富的年轻团队组成,我们专注于深化设计、深耕开创深化行业,作为深化设计行业的领导品牌,企业一直致力于室内代理设计、方案深化设计、水电设计、施工图深化设计等领域。我们与众多国内外设计公司、地产、设计师、酒店管理集团、建筑顾问、设计院、装修公司的高度认可并携手联合发展,依托国内外著名设计公司(HBACCD)成熟的设计模式,打造一支代表着深化设计水平的精英团队,现已发展成为“国内规模最优、实力最强、标准最规范"的深化设计公司。















































1
1
Share
相关推荐
in to comment
Add emoji
喜欢TA的作品吗?喜欢就快来夸夸TA吧!
You may like
相关收藏夹
Log in
1Log in and synchronize recommended records
1Log in and add to My Favorites
评论Log in and comment your thoughts
分享Share



















































































