【星禾创意】淄博宋风太极拳馆-涵虚
淄博/室内设计师/5小时前/16浏览
版权
【星禾创意】淄博宋风太极拳馆-涵虚
涵虚取意于道家“涵虚混太清”之境,喻空间纳天地之气,融虚实相生之哲思。
本设计以“天地入怀,动静如一”为核心理念,将太极哲学中的阴阳流转、虚实相生转化为空间语言。通过光影交织、路径迂回、景致渗透,构筑一处身心归寂、意气相融的修习之境。空间不囿于形制,而重于气韵流动,使习拳者于行止俯仰间,体悟天人合一的东方智慧。
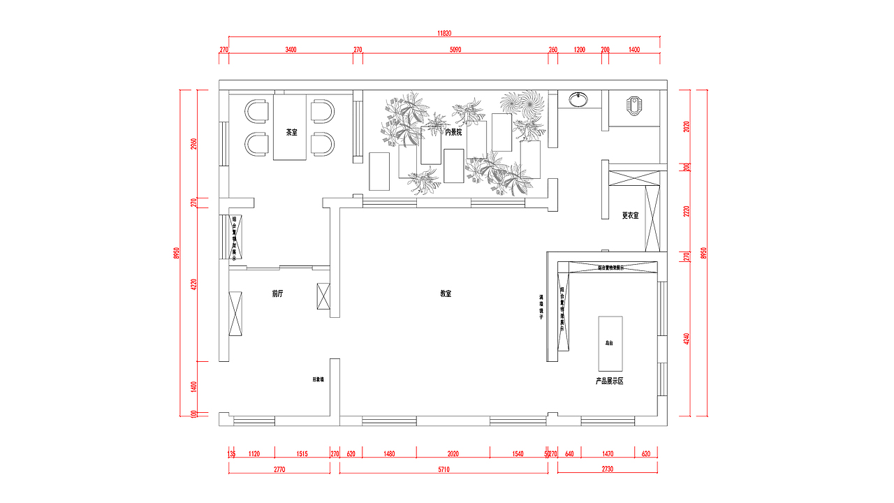
平面方案展示
Display of floor plan
局部方案展示
Local scheme demonstration
“庭院深深深几许,杨柳堆烟,帘幕无重数。”
此间以“引境”为契,通过框景、落景的叠合,形成空间的层次与隐逸。
“山光悦鸟性,潭影空人心。”
茶室与休憩区以“息心”为念,空间如一方静潭,倒影天光树影。不求器物之华,而求心境之澄,于此品茗论道,恰似与古人对话,神交天地。
“舟行碧波上,人在画中游。”
过渡空间以“流眄”为趣,借景手法将自然意象引入室内。步履所至,景随步移,仿若李清照“误入藕花深处”的偶然与惊喜,唤醒身心对自然韵律的感应。
“此中有真意,欲辨已忘言。”
习拳区以“守拙”为旨,墙面如宣纸素卷,窗外景致似无心之画。空而不寂,简而不贫,在此习静观之道,体悟“致虚极,守静笃”的修为本源。
整体方案展示
Overall scheme presentation
此设计非为塑造空间,而为编织一场“由形入神,由物及心”的修行体验。让太极拳馆不止于习拳之所,更成为当代人回归东方精神栖居的“心域”。
特别鸣谢
感谢马总对我们设计的支持和认可。
马总是通过抖音平台了解到了我们的一些作品,对我们这边的设计水品也非常的认可。
好的设计往往也离不开客户的信任。
项目名称丨太极拳馆
项目地点丨淄博张店
项目面积丨120㎡
设计总监丨张亚星
室内设计丨星禾创意空间设计
软装设计丨星禾创意空间设计
参与设计丨张亚星团队
0
Report
声明
收藏
Share
相关推荐
in to comment
Add emoji
喜欢TA的作品吗?喜欢就快来夸夸TA吧!
You may like
相关收藏夹
Log in
推荐Log in and synchronize recommended records
收藏Log in and add to My Favorites
评论Log in and comment your thoughts
分享Share



































































































