54m²老破小改造项目-桃花源
广州/室内设计师/338天前/79浏览
版权
54m²老破小改造项目-桃花源
🔴屋主的需求很简单,风格上极简舒适就好
硬功能上的需求就会多一些,
1.在这个有限的空间内,
我们需要预留出三分离甚至四分离的一个空间给到洗漱、淋浴间、马桶间、泡澡间
2.并且在原有的这个户型改造出三个独立舒适的房间,
主卧、儿童房、兼顾书房客房的多功能房。
3.开放式的厨房跟半岛台。
4.富有童趣的儿童房,希望是有一面乐高墙,上下床踩着云朵上太空
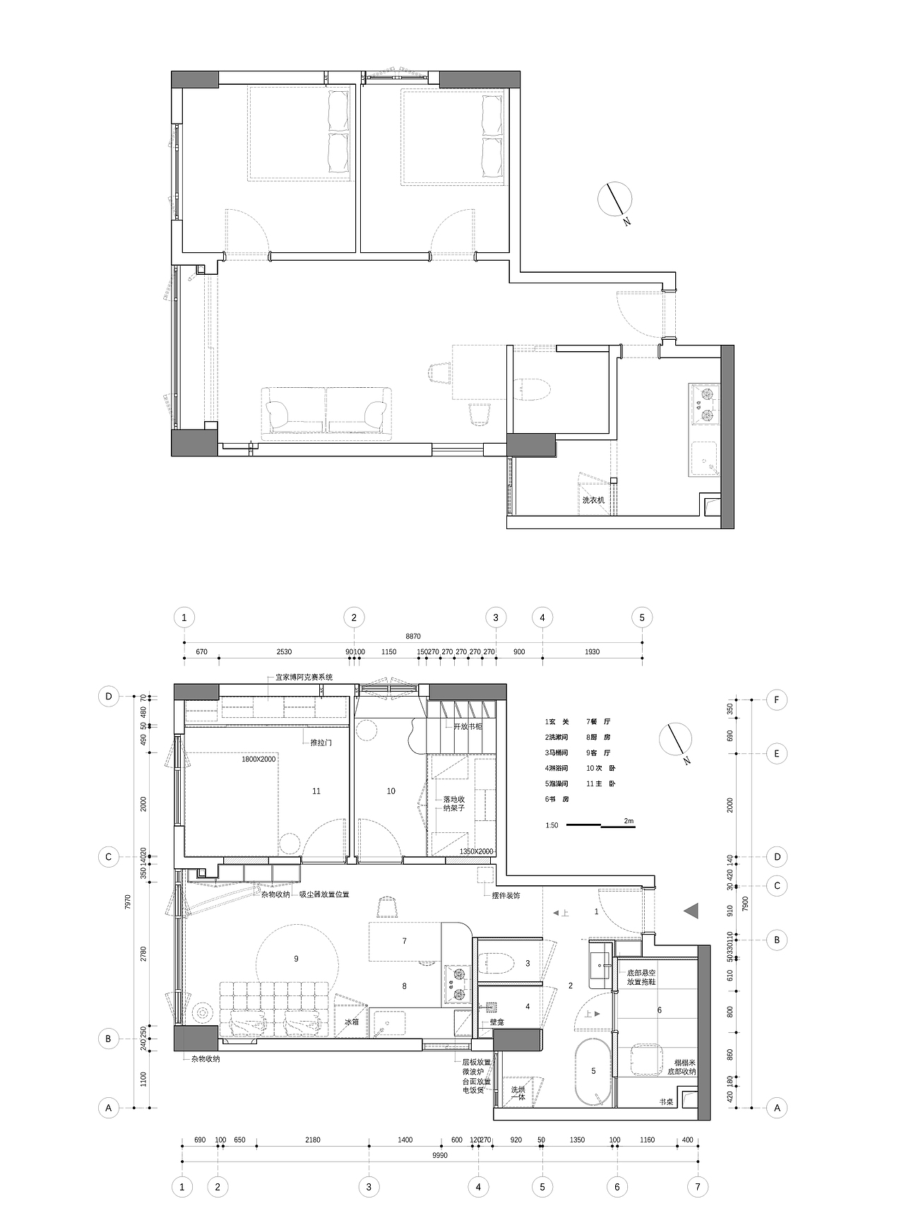
🔴原始结构:
1,“二次改造后”的户型,还存在几点问题:
2,过道狭长,采光不足,入户空间阴暗
3,保留三房,对入户的“小暗房”的采光方式重新规划
4,卫浴安排在原阳台位置,导致私密性差,空间狭小
5,原厨房空间因迁就“小暗房”导致收纳不足,烹饪体验差
🔴改造后平面分析
1,预留出“四分离”空间
2,划分出洗漱、淋浴间、马桶间、泡澡间四个功能区
3,改造出“三个独立”房间
4,幸福三家之口,需要一间主卧、富有童趣的儿童房以及一个兼顾书房客房的多功能房
5,围合相聚的客餐厅
6,打通开放式厨房和半岛台,拥有充足光线的客餐厅
🔴空间改造
1,在进门处,原本的多功能房的门洞被重新填补,置换成鞋柜的收纳,
消除由过道延伸导致的面积浪费。顶部模拟天光的软膜天花,解决了长过道采光不足的通病。
我们利用镜面的材料贴在梁体的底部,通过镜面反射让空间得以视觉延伸。
同时,镜面的高度持平卫生间盒子高度,整体的空间节奏线在统一水平线上。
2,玄关左手边的推拉门,既是衣帽架,又是杂志架。
推拉门轻移,进入一隅尘世之外的清幽之境,可被打造成工作区、休憩区,
3,我们希望让“家庭互动”成为家的能量之源,于是取消原有封闭式厨房,客餐厨一体,
保证单面采光的公区在改造之后更通透明亮,即可感应朝夕,也有四季三餐。
4,小朋友的想象力和创造力不断被激发,儿童房便是他的灵感源泉。
踏上云台阶,一步步抵达属于他自己的悬浮树屋。
一整面墙的乐高书柜延伸至窗台形成一个小卡座,
被打造成小朋友的小书吧,细心规划,为创造留出更多空间。
项目主题:桃花源
建筑面积:69㎡ 套内面积:54㎡
项目类型:旧房改造
主案设计师:陈智超
设计单位:不合时宜设计
主要材料:木地板,莱姆石砖,筷子砖,乳胶漆,石英石
2
Report
声明
1
Share
相关推荐
in to comment
Add emoji
喜欢TA的作品吗?喜欢就快来夸夸TA吧!
You may like
相关收藏夹
Log in
2Log in and synchronize recommended records
1Log in and add to My Favorites
评论Log in and comment your thoughts
分享Share


























































































