陈智超设计|在佛山造一座会呼吸的治愈系乌托邦
广州/室内设计师/1年前/868浏览
版权
陈智超设计|在佛山造一座会呼吸的治愈系乌托邦
青庐——古代婚房的现代诠释
“青庐”
源自古代婚房之名,承载着传统婚俗的温情寓意。
窗外是城中村的烟火气,窗内是两人的诗意栖居
。当95后新婚夫妻放弃千篇一律的“精装房”,设计师用135㎡的老自建房,以
“青庐”
为名,在传统婚房与现代美学间找到平衡。他们通过我们此前作品
《融化的奶酪》
找到团队,希望延续奶油风的治愈基调,为新婚生活打造一座兼具仪式感与功能性的
理想居所
。
老宅的挑战与新生契机成“三房”。
初次踏入这栋位于佛山城中村的自建房时,设计师笑言:
“改造后定会成为村里最靓的仔!”
建筑共两层,总面积135㎡,原始格局却问题重重:
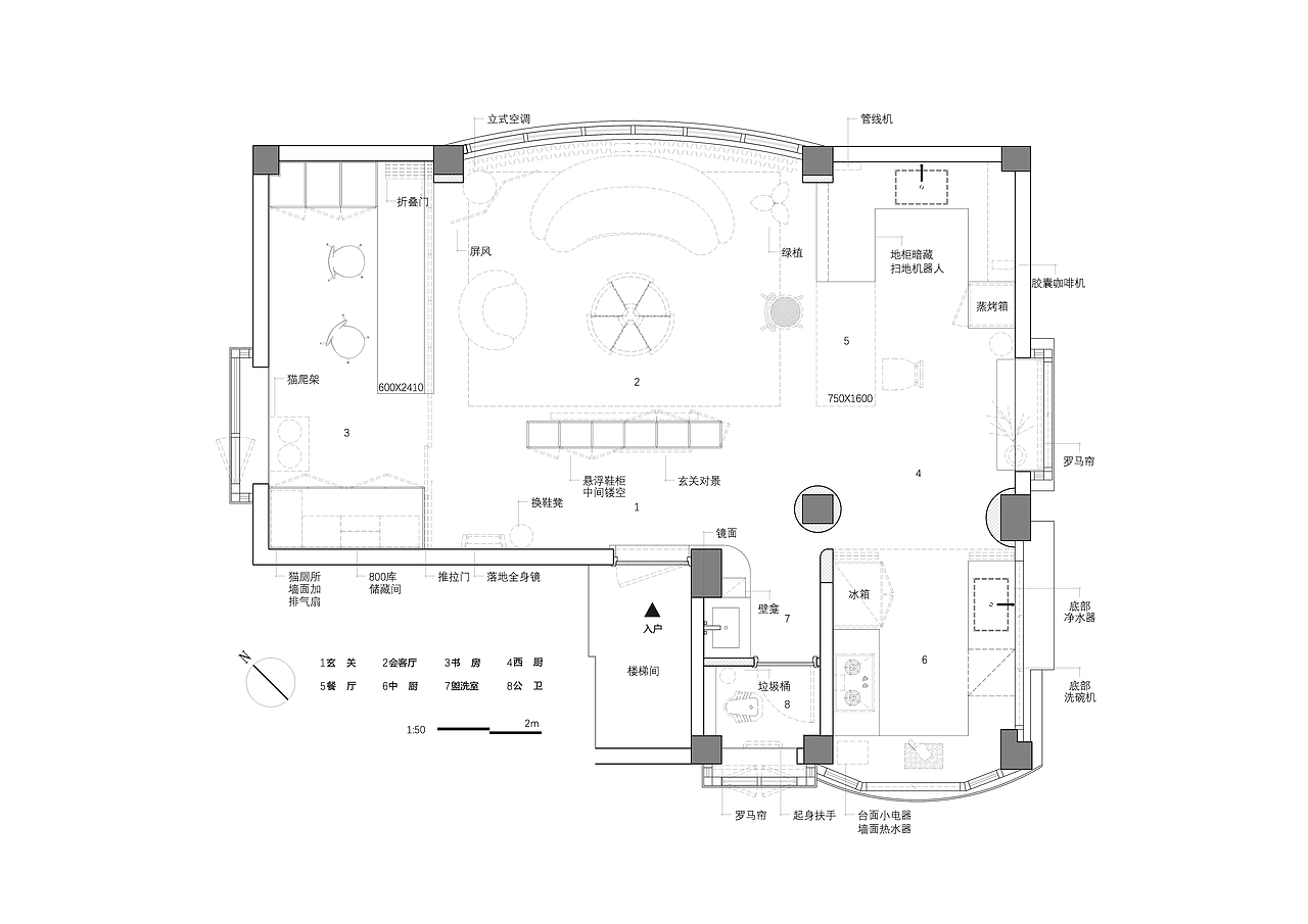
- 一楼痛点:
- 进门即见客厅,毫无私密性;
- 两间卧室占据最佳采光面,导致客厅白天也需开灯;
- 厨房与阳台拥挤不堪,动线混乱,收纳几近于无;
- 卫生间未做干湿分离,卧室尺寸失调,储物功能缺失。
垂直分区与光之魔法
功能布局:
- 动静垂直分区:一楼作为社交主场(会客、餐厨),二楼打造私密生活区(卧室、休闲)。
- 硬装重构:两层空间均进行大幅度格局调整,以“引光、纳景、塑形”为核心逻辑。
一楼改造重点:
1. 破除暗室:
拆除客厅两侧墙体,将自然光引入户型中心,终结“白天开灯”的窘境;
2. 厨房重生:
合并阳台扩充厨房面积,优化操作动线,收纳容量翻倍;
3. 空间转换:
东侧卧室改为西厨餐厅,西侧卧室化身书房兼电竞房;
4. 弧形叙事:
处理碍眼立柱为艺术圆柱,玄关至卫生间的弧形墙面柔化归家路径。
#效果图,往下看实景还原↓
一 楼 Ground floor
功能与美学的共生游戏
① 玄关:悬浮鞋柜的“两面人生”
改造前同角度对比
鞋柜内部以
S型分隔
:下层收纳鞋物,背面变身客厅电视墙,
顶部背面暗藏Switch游戏设备柜
,满足屋主娱乐需求
形窗帘+同款沙发,与圆柱、灯带构成
柔软归家仪式
② 餐厨:梁位变身的“光影魔术”
房梁位
暗藏阵列射灯
,既弱化压迫感,又补充操作台照明
餐厅
吊灯
可随节日
长桌横移弯折
,光源始终居中,聚会氛围拉满
深空灰冰箱、洗碗机隐于独立中厨,维持空间
奶油基调的统一性
③ 客厅改造:光与弧的共生剧场
拆两侧隔墙,将自然光引入户型核心区,终结
“暗室”
时代
悬浮鞋柜背面延伸为电视背景墙,形成视觉中轴线,电视墙顶部暗藏Switch游戏设备柜,手柄、卡带
收纳于无形
定制
弧
窗帘暗藏柔光灯带,沙发随曲线蜿蜒,与玄关圆柱、卫生间
弧形
墙面形成
空间对话
④ 书房:半墙之隔的秩序美学
半高墙精准遮挡电脑设备,客厅视角
零杂乱
,手办展示柜与书桌一体设计,二次元爱好者的
宝藏角落
收纳柜底部暗藏猫厕换气扇,可惜
“波波”
更爱
沙发
瘫——设计师调侃:“留个念想,等主子回心转意。”
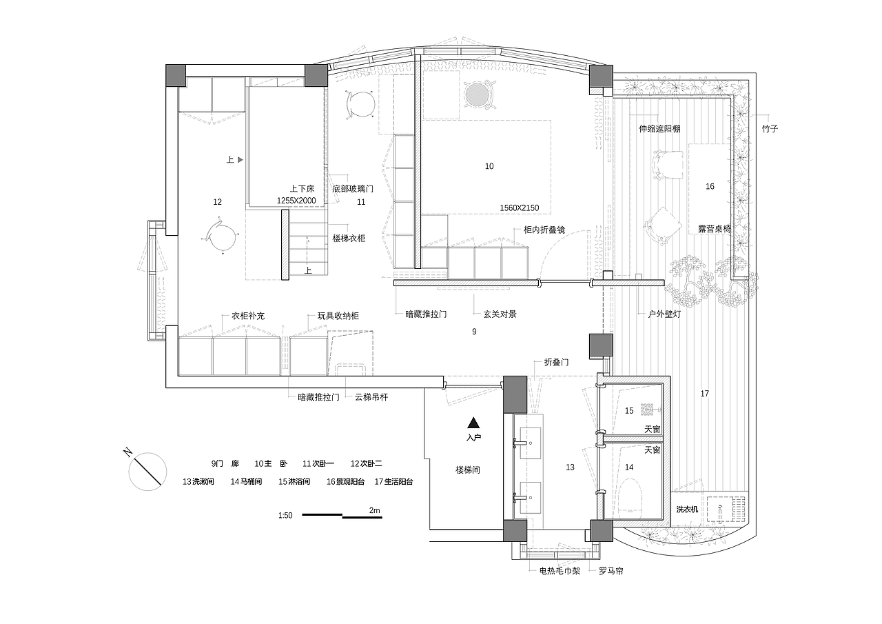
- 二楼痛点:
- 入口区域沦为废弃晾晒区,阳台利用率极低;
- 卫生间淋浴与蹲坑混用,存在安全隐患;
- 卧室动线迂回,空间规划与生活需求严重脱节。
垂直分区与光之魔法
功能布局:
- 动静垂直分区:一楼作为社交主场(会客、餐厨),二楼打造私密生活区(卧室、休闲)。
- 硬装重构:两层空间均进行大幅度格局调整,以“引光、纳景、塑形”为核心逻辑。
二楼改重点:
1. 光之容器:
打通阳台外墙,将最佳采光面赋予主卧,并增设休闲露台;
2. 未来预埋:
西侧卧室改造为上下错层空间,预留儿童游乐园可变性;
3. 干湿三分离:
借用部分阳台重塑卫生间,实现洗漱、淋浴、如厕独立;
4. 小盒子建筑:
采用非对称墙体与磨砂天窗,让光线从顶部漫入每个角落
效果图,往下看实景还原↓
二楼
Second floor
悬浮盒子与未来生长力
为了让空间采光延伸的更远,我们在楼上做了几个
小建筑
,让光从
顶部延伸
至空间尽头
⑤ 主卧:未完成的浪漫留白
墙面高度刻意
低于梁位
,黑色踢脚线勾勒
悬浮盒子
的建筑感;
拆除隔墙入露天阳台,形成主卧休闲阳台
阳台未完全封闭,未来可用龟背竹、琴叶榕打造一处
会呼吸的生态隔断
剩余的阳台空间分隔成了两部分,一部分是户外洗衣房,主晾衣功能,另外一部分被我们纳入到了卫生间空间,卫生间空间独立突出户外阳台,行成了
独立的方盒子
。
⑥ 卫生间:雨天沐浴如置身森林
拆除隔墙引入露天阳台,磨砂玻璃天窗让
雨天沐浴如置身森林
⑦未来彩蛋:十年成长计划
西侧卧室改造为上下错层
“树屋”
,预留推拉门轨道与互动窗口
秘密通道小门,
树屋+洄游动线设计
楼上楼下互动窗口、秘密通道,
让童年记忆在空间里自然生长
二胎时代分隔为独立房间,
既保留亲密感又尊重隐私
基础信息
项目位置 / 广州
套内面积 /135 ㎡
设计公司 /陈智超设计
主案设计师 / 陈智超
设计团队 / 吴小倩
项目摄影 / ALPDRI-业轩
房屋类型 /自建房改造
主要材质 / 莱姆石砖,木纹砖,石英石,乳胶漆
—END—
13
Report
声明
18
Share
相关推荐
in to comment
Add emoji
喜欢TA的作品吗?喜欢就快来夸夸TA吧!
You may like
相关收藏夹
Log in
13Log in and synchronize recommended records
18Log in and add to My Favorites
评论Log in and comment your thoughts
分享Share























































































































