陈岳作品 | 富豪新岸 法式优雅
成都/室内设计师/1年前/1354浏览
版权
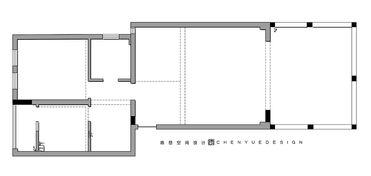
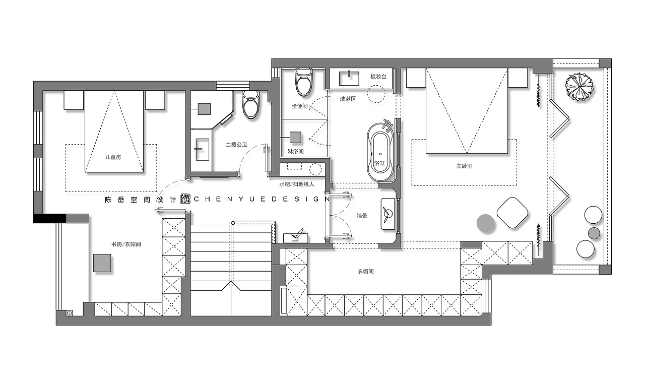
陈岳作品 | 富豪新岸 法式优雅
设计风格:法式混搭
项目地址:成都 首开龙湖云著
项目面积:270 ㎡
10
Report
声明
16
Share
相关推荐
in to comment
Add emoji
喜欢TA的作品吗?喜欢就快来夸夸TA吧!
You may like
相关收藏夹
Log in
10Log in and synchronize recommended records
16Log in and add to My Favorites
评论Log in and comment your thoughts
分享Share













































































































