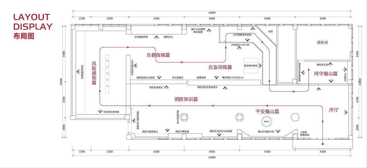
应急消防科普教育基地
广州/平面设计师/1年前/1815浏览
版权
应急消防科普教育基地
人民至上 生命至上
近年来,江苏省消防救援总队牢固树立“人民至上、生命至上”理念,将消防科普教育基地建设作为民生工程持续推进,以更专业的消防教育资源、更先进的智慧消防理念和更具有互动性的消防教育活动,助力消防安全教育高质量发展,让消防科普教育随处可见。
本次策划设计方案将秉承总队《关于规范和加强全省应急消防科普教育基地建设的意见》,坚持
“因地制宜、实用创新、适度超前、有利发展”
的指导思想,对标应急管理部消防救援局《应急消防科普教育基地建设标准》 中的市级标准开展工作。以 大众观览学习的角度 为策划设计出发点,以展现锡山区消防工作特色 为目标,打造一个具备
锡山区特色鲜明、便民惠民利民
的锡山区公众消防科普教育馆。
出品/Producer:形而上设计事务所
空间规划/Spatial Planning:Cyan / Line
创意策划/Creative Planning:虎皮猫 / jre
创意设计/Creative Design:Cyan / Line / jre
3D设计/3D Design: Line
12
创作信息
Report
声明
107
Share
相关推荐
in to comment
Add emoji
喜欢TA的作品吗?喜欢就快来夸夸TA吧!
You may like
相关收藏夹
Log in
12Log in and synchronize recommended records
99+Log in and add to My Favorites
评论Log in and comment your thoughts
分享Share
























































































