建水民宿改造|建水喜宿民宿设计改造
昆明/室内设计师/1年前/407浏览
版权
建水民宿改造|建水喜宿民宿设计改造
书茶字香 临安未雨
醒来明月 醉后清风
半盏夕阳 思君朝暮
一半喜宿 一半乡愁
项目信息
项目名称|喜宿
项目地址|云南 建水
项目业主|建水客喜住宿
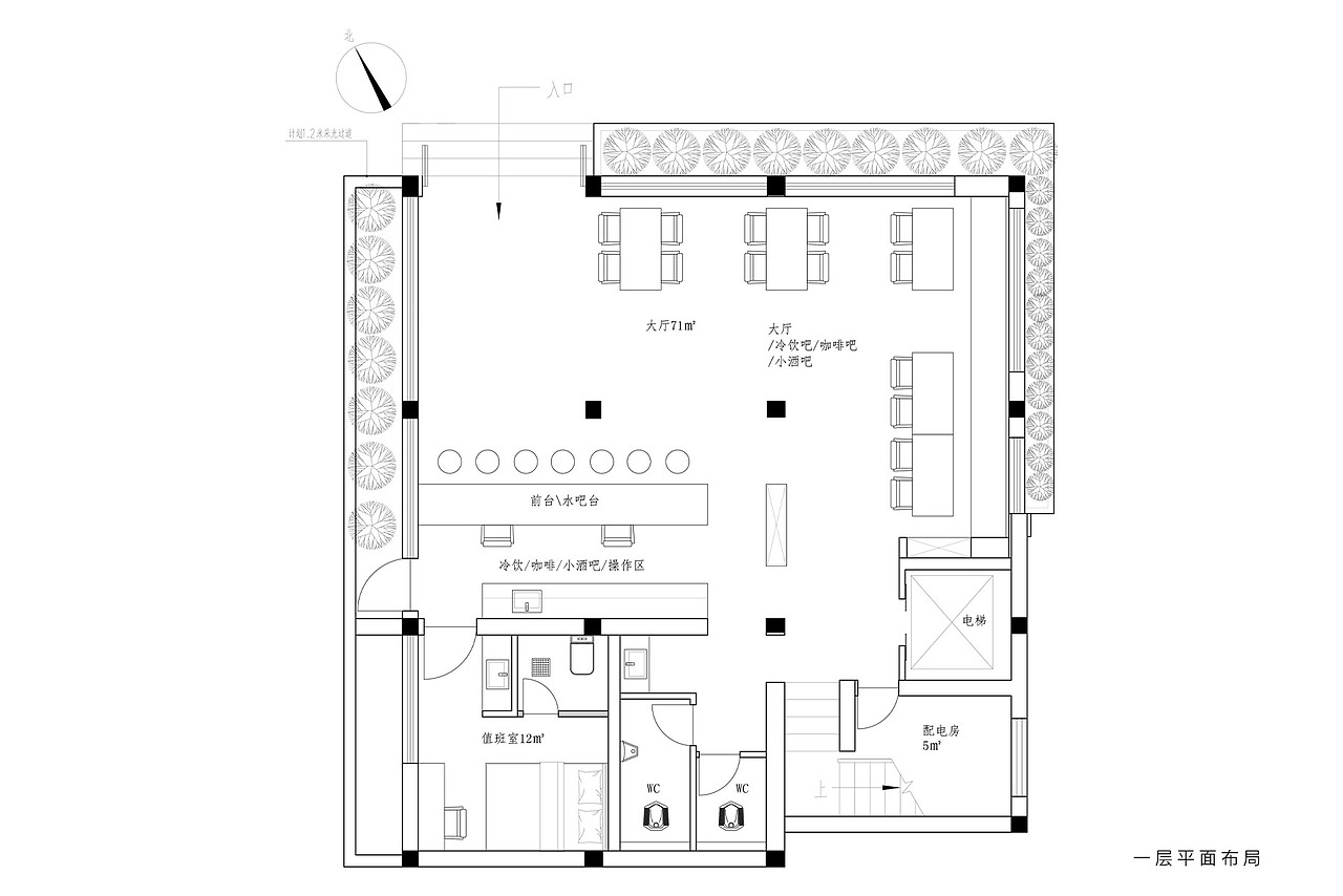
设计面积|591㎡
设计时间|2023.05
竣工时间|2024.01
全案设计|长空创作
设计主创|张宝华
参与设计|李泉江、张定远、李星瑶、王瑞、张庭恺、赵权
项目摄影|喜宿民宿
项目状态|已建成
当生活的琉白素瓦有岁月磨痕的时候
它或黯然失色,或格格不入,或疏疏残雪
把时间暂停在那里
当一切重生,银白金黄一身的时候
它或飞秋似雪,或焕然一新,或诗意栖居
把生活重新梳理了一翻
沉淀视觉
光穿过植物迎着晚风
吹过每一处细节
空气之中弥漫着巧妙的设计
一窗一景一生活
将生活写成一页页信纸
把故事装进信封
把信寄到下一处目的地
如一层层紫陶碎瓦的堆叠的厚重感、层次感
似远梦归侵晓
古城好烟月
设计将美学代入空间
与原空间形成了鲜明的对比
长石灰木材的质感强烈
给人一种高贵、沉稳的感觉
再配上珍珠灰的高冷
让空间变得灵活,有气息
书茶字香 临安未雨
醒来明月 醉后清风
半盏夕阳 思君朝暮
一半喜宿 一半乡愁
1
Report
声明
4
Share
相关推荐
in to comment
Add emoji
喜欢TA的作品吗?喜欢就快来夸夸TA吧!
You may like
相关收藏夹
Log in
1Log in and synchronize recommended records
4Log in and add to My Favorites
评论Log in and comment your thoughts
分享Share


























































































