广州90方精装房改造设计
广州/产品设计师/1年前/216浏览
版权
广州90方精装房改造设计
精装房改造对很多人来说一直是个比较头疼的问题,拆吧心疼,不拆吧看着又很别扭,今天分享的这个案子就是改着改着就变成全拆重做了。
原始户型是很多精装交付商品房的常见户型,常被叫做小三房或者大三房,实际上两个小卧室的空间是比较受限的,起初我们建议改为两卧的形式,业主根据实际需求保留了三卧的布局,因此在整体的布局上,我们并没有做太大的改动,只针对个别地方做了局部微调,试图“偷”点空间出来。
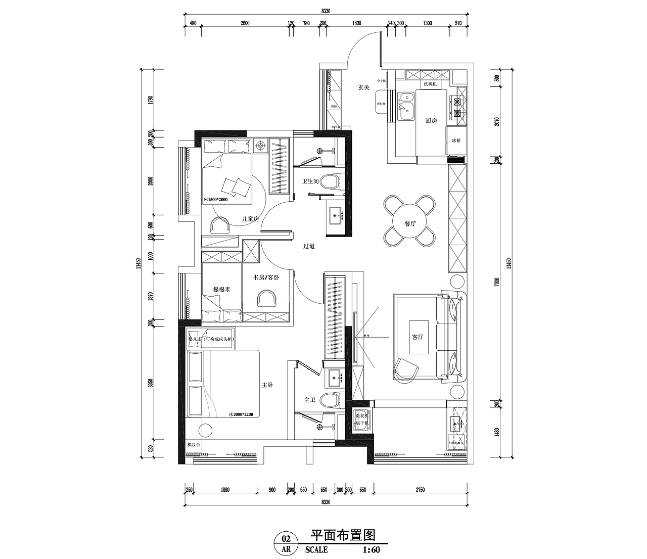
这是改造后的平面布局,主要调整的地方为小卧室的隔墙、客卫隔墙、阳台和入户的封窗等。
不过随着业主需求的变化,最终布局与起初的方案稍有不同,主要体现在厨房冰箱的摆放位置上,为了兼顾各种厨电的摆放,我们将冰箱改到了对向位置。
原始房屋样貌,某开发商的层高一直饱受诟病,两米七出头的挑高确实有点压抑,一般我们会通过部分吊顶的方式在视觉上增加层次感和延展性,削弱低层高带来的压迫感。
原本厨房的样式,其实交付标准还可以的。
原本卧室的门,这种木饰面的门虽说是百搭,但是对风格有特定喜好的话,这个门的饰面就显得很违和了。
主卧视角。
这是客厅部分的效果图
这是厨房的最初效果图,后来做了局部调整,不过整体改动不大。
以上是三间卧室的效果图。
方案敲定,施工进场,这是全屋清拆完后的样子。有时候总不禁感慨,精装真的很鸡肋。
水电完成的样子。
很多人会对水电铺设产生疑问,比如是点对点好还是横平竖直好呀,其实两种做法都可以,点对点更直接高效,节省成本;横平竖直好看且后续打墙钉钉的时候不容易误触,但是成本稍高,最终还是看施工方的施工习惯和业主要求。
经过四个月的辛苦施工,业主终于今日入住新家。
玄关部分照明条件不好,因此没有使用传统的筒灯,而是采用了比较新兴的青空灯,营造出了晴天的氛围效果。
家中宝宝还小,我们也特地交代施工把屋里一些直角弯做圆。
原本的阳台门拿掉,木纹砖通铺,边吊天花,无主灯设计。
餐厅视角,餐边柜可满足一些小家电的使用,没有采用餐厅吊灯的形式,餐桌位置可以不定期调整。
厨房这次采用的是不锈钢材质,更加易于清洁,质感也很不错。
洗手台区域
三个卧室的局部细节
阳台的局部细节。
以下为竖屏局部细节照片,
这次我没有将竖屏照片拼接,这样可以看清更多对细节的处理:
客厅电视柜
客厅沙发
厨房燃气灶
阳台家政柜
主卧飘窗
主卧衣帽间
次卧储物柜
儿童房衣橱
浴室
其他布置细节
这个案子整体进展还是比较顺利的,主要得益于业主的充分信任和施工方的大力配合,我常说我们的作品是业主与我们共同完成的,我们的设计原则也更多是站在业主角度思考功能和风格的设计,毕竟业主才是要长久住在新家里的人。所以我们拍的照片也好,设计的方案也好都比较生活化,所谓“网红元素”并不多,点到为止,把更多的预算用在提升居住感受上才更好。
意匠工作室 2024.01
1
Report
声明
3
Share
相关推荐
in to comment
Add emoji
喜欢TA的作品吗?喜欢就快来夸夸TA吧!
You may like
相关收藏夹
Log in
1Log in and synchronize recommended records
3Log in and add to My Favorites
评论Log in and comment your thoughts
分享Share




















































































































