小公寓系列——22m²
福州/室内设计师/2年前/1412浏览
版权
小公寓系列——22m²
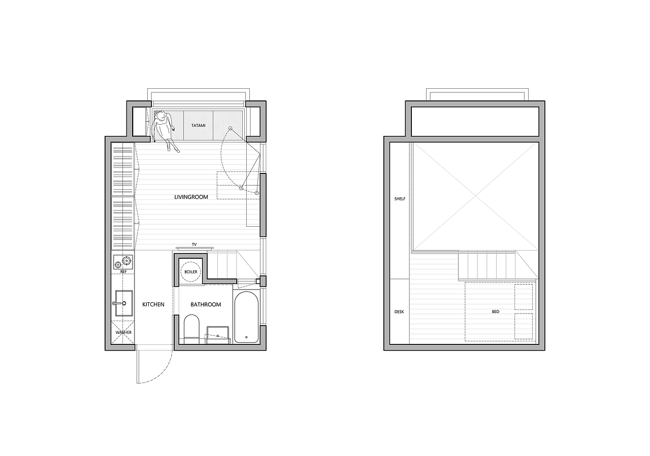
这是一个旧公寓的翻新项目,面积为22平方米,高3.3米。由于房价居高不下,年轻人能负担得起的居住空间在过去十年中变得越来越小。面对这样一个不宽敞但仍有机会实现所有基本生活功能的生活单元,必须更精确地分析和适当安排客户的需求。客户同意这样一种观点,即当涉及到人们将长期居住的地方而不是短期停留的房间时,空间与功能同样重要。(虽然公寓的占地面积可能比许多酒店房间小。我们都同意,应该留出空间,主要家具应该谨慎地布置,以确保长期的生活体验是舒适的。
以项目中的客户为例,她要经常出国出差,下班回家后,她需要的只是洗个热水澡,睡个好觉。除了设备齐全的浴室外,还需要一个紧凑的厨房,大部分存储空间用于存放衣服和书籍。她还希望下层空间的客厅可以同时拥有沙发和餐桌。因為小單位的居民很多,只能在沙發上吃一頓飯。此外,让左边的房间空出来做一些运动。了解需求,我们决定接受空间的限制并更有效地利用它。
首先,淋浴被换成浴缸,洗衣机被移到厨房。因为SOHO里不能用管道输送煤气,小电暖器也不能提供足够的热水洗澡,所以我们调整了马桶的布局,为储水式热水器腾出空间,还有一个带镜子的推拉门,不仅维护方便,而且在视觉上放大了空间。
厨柜、衣柜、架子等固定家具贴在墙上,充分利用高度,避开过道。由于使用频率较高,衣柜位于架子下方,但仍然可以从夹层区域方便地进入架子的一部分。由于夹层地板的高度不允许站立,因此其上的家具必须以坐姿或躺姿使用,例如床和书桌。
榻榻米区和窗户旁边的橱柜充分利用了壁龛,也提供了充足的存储空间。楼梯上的轻钢扶手增加了视觉穿透力,下面的墙壁上有一台电视和两个隐藏的鞋子柜。客厅的墙边有两张木桌,可以是一张长酒吧桌,可以节省房间,并且可以在另一个方向组合成餐桌。因此,空旷的空间可以灵活地满足不同的需求,并使小公寓不那么局促。
24
Report
声明
24
Share
相关推荐
in to comment
Add emoji
喜欢TA的作品吗?喜欢就快来夸夸TA吧!
You may like
相关收藏夹
Log in
24Log in and synchronize recommended records
24Log in and add to My Favorites
评论Log in and comment your thoughts
分享Share



































































































