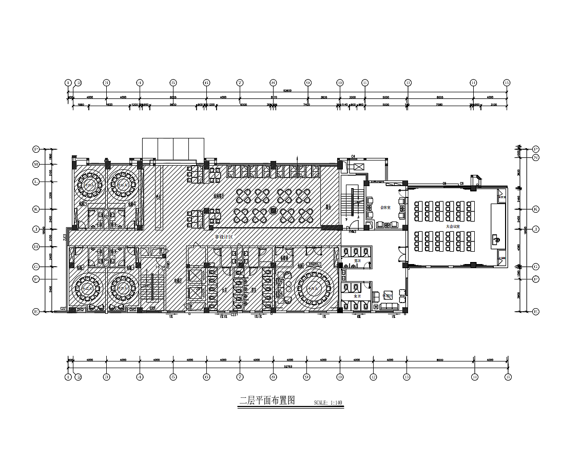
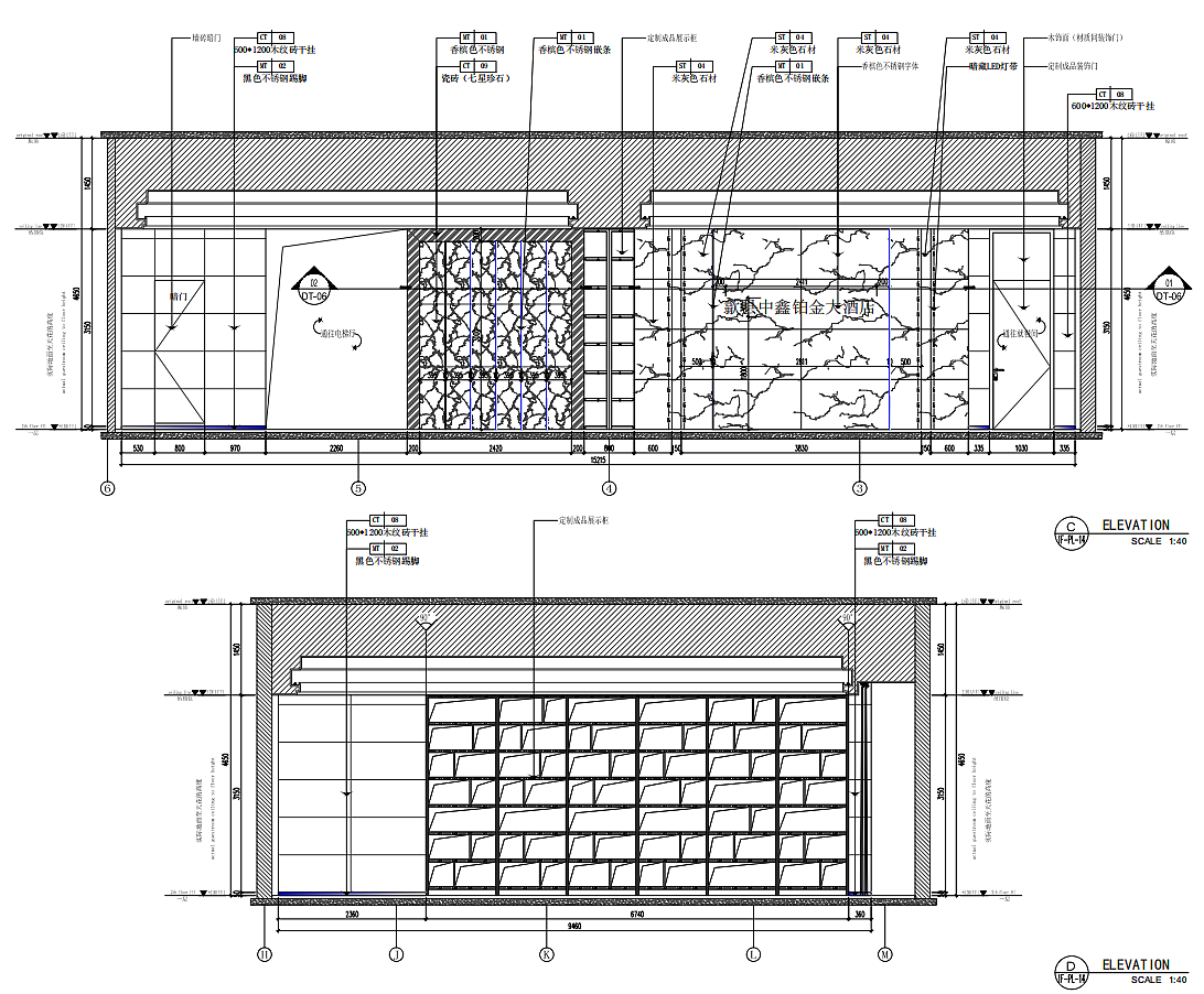
酒店效果图/施工图/预算
北京/设计爱好者/2年前/53浏览
版权
酒店效果图/施工图/预算
记得在这杂乱的生活里 每天带点笑意
#平面布局图🉑全案设计
#装饰施工图🉑标准深化
#消防水电图🉑过审盖章
出图快,包过审,包售后
0
Report
声明
收藏
Share
相关推荐
in to comment
Add emoji
喜欢TA的作品吗?喜欢就快来夸夸TA吧!
You may like
相关收藏夹
Log in
推荐Log in and synchronize recommended records
收藏Log in and add to My Favorites
评论Log in and comment your thoughts
分享Share
















































































































































































