122平l毛坯房改造l是你们喜欢的中古么😎
广州/室内设计师/2年前/1668浏览
版权
122平l毛坯房改造l是你们喜欢的中古么😎
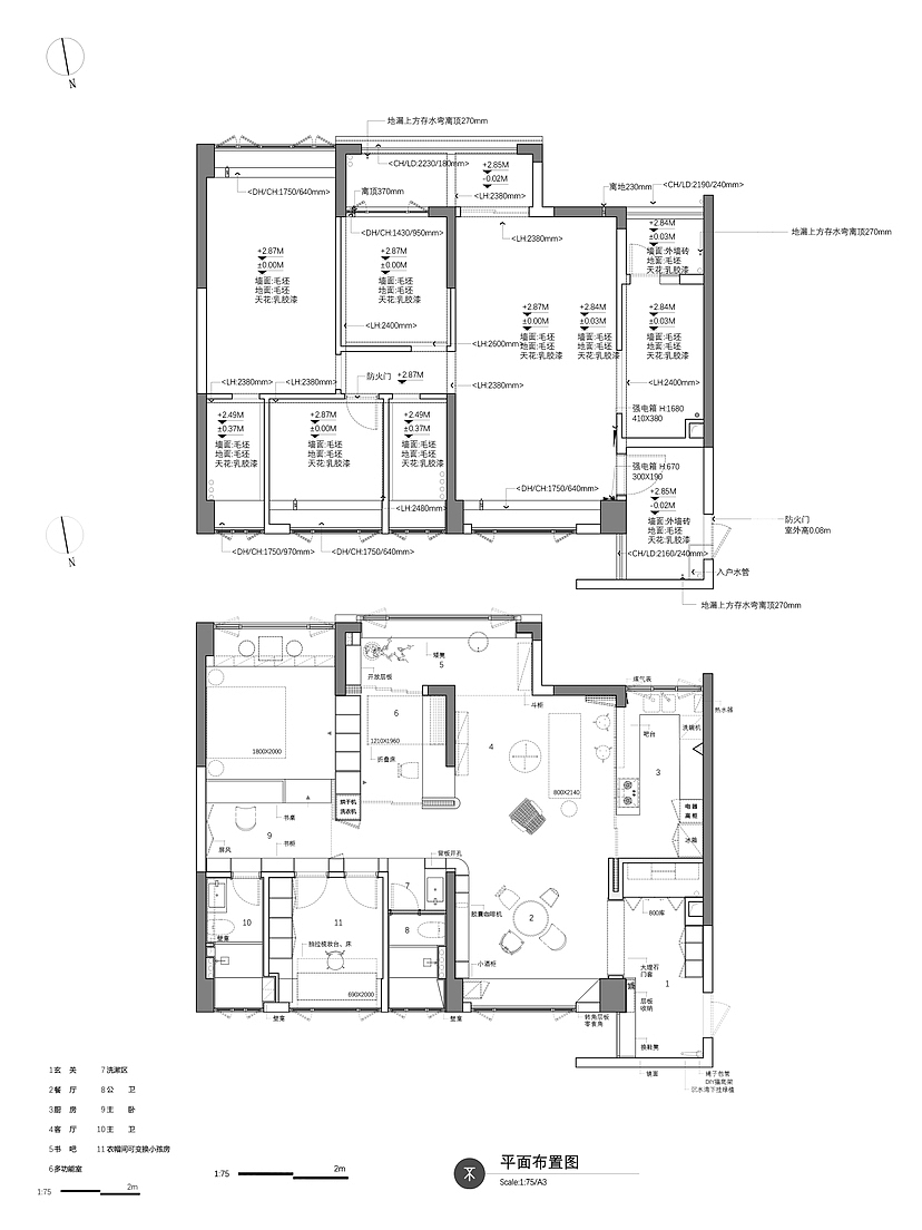
🔴本案屋主是一对年轻的95后夫妻,房屋的原始结构是方正的三居室,屋主希望家里的布局不要那么的千篇一律,每个空间之间的互动性更高一些。考虑到未来有小朋友的生活方式会发生变化,所以这次设计我们着重思考如何在前期就预先把“时间”这个变量给考虑好,让三房焕发出不一样的使用场景。
💡平面布局上我们将原来厨房北面的非承重隔墙拆除,偷取原本属于厨房的一部分面积给到玄关,置入800库加强玄关的储物功能;
▪将南向的生活阳台包进厨房的空间内,并拆除原来厨房东面的非承重隔墙,拉升客厅的开间面积,折叠门的引入让厨房可开可合,提升做菜时的交互性;
▪南向房间为了给过道引入更多的自然光线,将房门用联动拉门替换之前的实体砖墙,作为半开敞书房,进一步扩大了客厅的视觉延伸感,还可以作为临时客房;
▪北向的卧室目前作为主卧的衣帽间来使用,未来可改为小朋友的卧室;
▪公卫一侧墙体置入整面储物柜,为未来生活摆放玩具手办和小朋友的阅读书籍做好了准备;
✏ 设计面积:122㎡📌
🏠 房屋类型:毛坯装修
10
Report
声明
8
Share
相关推荐
in to comment
Add emoji
喜欢TA的作品吗?喜欢就快来夸夸TA吧!
You may like
相关收藏夹
Log in
10Log in and synchronize recommended records
8Log in and add to My Favorites
评论Log in and comment your thoughts
分享Share























































































