CHINIEONE 琴琴家|MOOTHAN. DESIGN
太原/室内设计师/2年前/1613浏览
版权
CHINIEONE 琴琴家|MOOTHAN. DESIGN
富有生活气的城区,白色的建筑外观既跳脱又融入。与周边和谐地对话、安静地观望,书写新旧的关系和变化。空间是品牌价值呈现的重要载体,从材质选择到肌理形态;塑造品牌价值的高度一致。
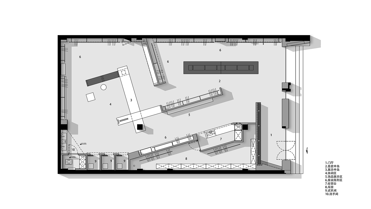
本项目设计的目标简单明晰,通过清晰的体块关系,将空间结构、售卖功能和展示功能结合,简化结构体系,精简结构构件,重视结构逻辑,使之产生流动空间。使用最简搭配和材料平铺净化建造形式。
为了呼应品牌概念,用空间来衬托产品,以尽可能克制的设计手法来体现品牌本身的质感之美。空间无以名状,界限模糊,相互渗透,形成“流动性空间”,将流动性融合在空间之中,鲜活灵动。打造一个即开放又内敛含蓄的空间形象。
在既定空间尺度的束缚下,以自身的空间属性,不骄不躁的立于太原最热闹的街道旁;持续的表达着品牌自身主张独立,在被趋势和潮流所引导的当下另辟蹊径,不被普世标准所限。我们希望身处流行的风暴中的,保持冷静的创作及逻辑思维,结合美学呈现经典但带有品牌温度的作品,以空间的语言来诉说着品牌的情绪。毕竟在零售空间内,产品应该是永远的主角。
主案设计师/孟飛
Lead Designer/Meng Fei
参与设计师/张林、赵钦帅、王鹏宇
Participating designers/Zhang Lin, Zhao Qinshuai,Wang Pengyu
灯光设计/三宜照明
Lighting Design/Sanyi· Lighting
项目位置/山西·太原
Location/Taiyuan, Shanxi Province
项目面积/195m²
Project area/195m²
摄影/RICCI空间摄影、双备
Photography/Ricci spatial photography,Shuangbei
6
Report
声明
21
Share
相关推荐
in to comment
Add emoji
喜欢TA的作品吗?喜欢就快来夸夸TA吧!
You may like
相关收藏夹
Log in
6Log in and synchronize recommended records
21Log in and add to My Favorites
评论Log in and comment your thoughts
分享Share






































































































