浅灰与原木设计,营造103m²三室一厅静谧感十足居所
广州/室内设计师/3年前/1505浏览
版权
浅灰与原木设计,营造103m²三室一厅静谧感十足居所
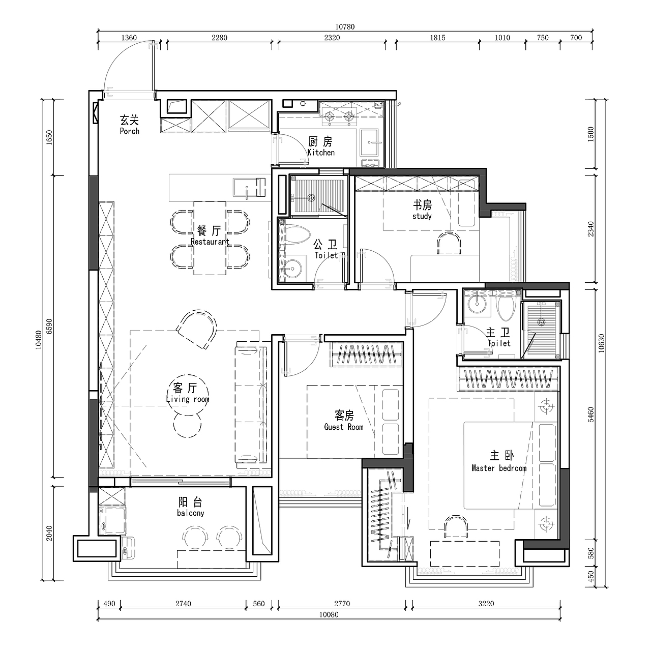
本案为103m²三室一厅的居室设计,业主为一对年轻夫妇和一个不到一岁的孩子,老人家平时白天帮带孩子,晚上偶尔住宿。家里偶尔也会来一些朋友和客人。针对上班族的业主,设计师采用简约明朗的线条,将空间进行了合理的分隔。应对扰嚷的都市生活,一处能让心灵沉淀的生活空间,是本房业主心中的一份渴望,也是本设计在该方案中所体现的主要思想。
面对温馨的家,从容自信于心底长藤而起;我们也一直不断在完善筑家的每一个过程,让业主们都能在平凡的生活中寻找细碎的小美好。

1、业主有烘焙的爱好,平时蒸烤蛋糕,做做甜点,所以对于厨房空间有更大的需求,原有的厨房显然无法满足,设计师将生活阳台作为厨房使用,原厨房位置打开作为西厨及水吧台,如此一来厨房烹饪煎炒,西厨手工蒸烤,业主夫妇可以同时下厨各司其职。
2、另一方面原来狭窄的入户玄关也变得开阔不少,开放式客餐厅设计给人以通透之感,避免视觉给人带来的压迫感,可缓解业主工作一天的疲惫。
3、原来厨房空间采光严重不足,动线复杂,去往生活阳台要穿过厨房。业主提到希望未来能更方便的使用厨房,同时改善厨房的采光问题。于是设计师进行了厨房区域重新规划,现厨房整体采用干净清爽的黑白配色,一体式白色吊柜,不仅在位置上更靠近窗,白色的墙面柜体也更多反射光线,确保厨房空间采光明亮。
2、另一方面原来狭窄的入户玄关也变得开阔不少,开放式客餐厅设计给人以通透之感,避免视觉给人带来的压迫感,可缓解业主工作一天的疲惫。
3、原来厨房空间采光严重不足,动线复杂,去往生活阳台要穿过厨房。业主提到希望未来能更方便的使用厨房,同时改善厨房的采光问题。于是设计师进行了厨房区域重新规划,现厨房整体采用干净清爽的黑白配色,一体式白色吊柜,不仅在位置上更靠近窗,白色的墙面柜体也更多反射光线,确保厨房空间采光明亮。
4
Report
声明
11
Share
相关推荐
in to comment
Add emoji
喜欢TA的作品吗?喜欢就快来夸夸TA吧!
You may like
相关收藏夹
Log in
4Log in and synchronize recommended records
11Log in and add to My Favorites
评论Log in and comment your thoughts
分享Share




































































































