底气策划空间案例——老湘村
广州/设计爱好者/2年前/7674浏览
版权
底气策划空间案例——老湘村
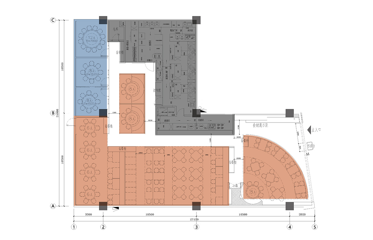
《老湘村》创始于2005年至今已经16年是广州为数不多的老字号湘菜连锁品牌2021年底气有幸与老湘村合作以“湖南乡村与城市品质生活”为创作核心从中探寻了一个可能性创作了老湘村新的品牌形象
47
Report
声明
201
Share
相关推荐
in to comment
Add emoji
喜欢TA的作品吗?喜欢就快来夸夸TA吧!
You may like
相关收藏夹
Log in
47Log in and synchronize recommended records
99+Log in and add to My Favorites
评论Log in and comment your thoughts
分享Share





























































































































