底气策划空间案例——湘辣辣 vol.3
广州/设计爱好者/3年前/5780浏览
版权
底气策划空间案例——湘辣辣 vol.3
项目|湘辣辣|广州
服务范围|空间设计
品牌总监|陈烨
品牌策划|陈烨、汪洋
品牌总监 | 陈子良
设计 | 高瑞龙 王瑶
空间设计 | 卢芯莹
渲染效果 | 王臣冉
软装设计 | 陈美利
施工深化 | 梁晓婵 蔡继红
现场跟进 | 廖峰
品牌梳理|梁广盛
项目时间 | 2022
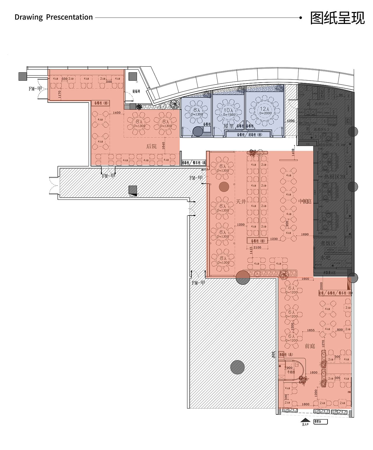
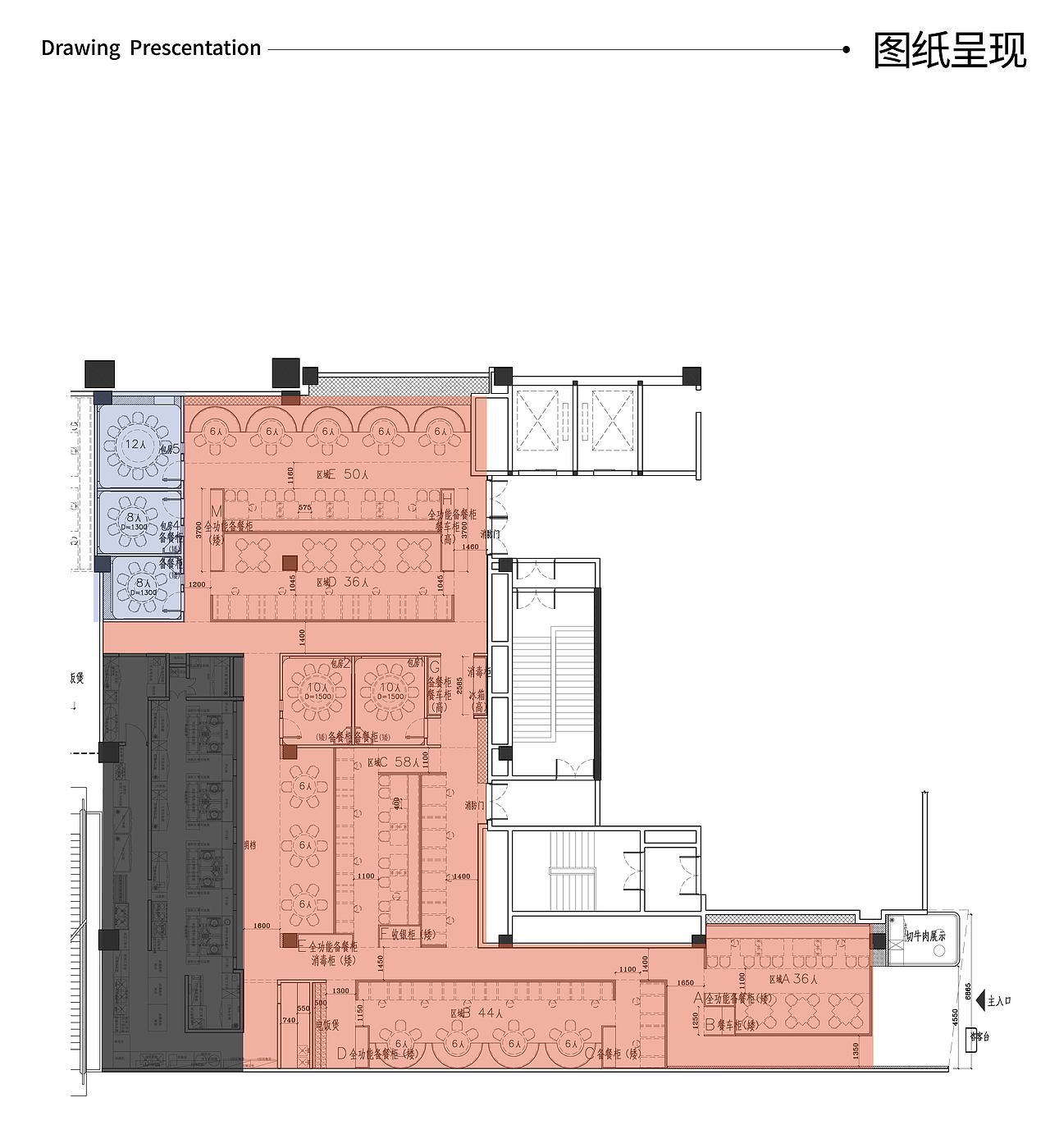
湘辣辣是聚焦湘菜小炒品类,产品以黄牛肉为核心卖点,设计上突破传统湘菜视觉与体验,强调品牌性格更年轻化,吸引更多年轻客户人群,摆脱同质化竞争、呈现差异化特征。除了为品牌做全案服务,我们同时为湘辣辣进行年度服务,为其在珠三角地区的店铺进行设计与升级。
15
Report
声明
101
Share
相关推荐
in to comment
Add emoji
喜欢TA的作品吗?喜欢就快来夸夸TA吧!
You may like
相关收藏夹
Log in
15Log in and synchronize recommended records
99+Log in and add to My Favorites
评论Log in and comment your thoughts
分享Share

























































































