JOE LOL 东山口潮牌店
广州/室内设计师/3年前/2098浏览
版权
JOE LOL 东山口潮牌店
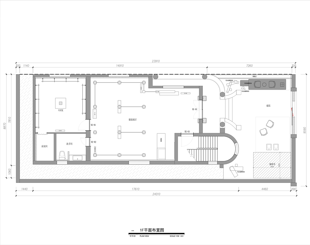
受邀JOE LOL 潮牌,设计项目位于广州东山口。做为广州潮流品牌聚集地,如何让品牌在众多新锐门店脱颖而出,是设计的重点打造方向。我们选择了品牌的代表颜色,绿色做为这次设计的一个亮度。空间以构造方式呈现,在原有旧建筑的基础上,增加新的建筑空间做为鲜明对比。
建筑主要分为三层,一层为服装潮牌卖场,二层为办公空间,三层为天台绿植空间。
6
创作信息
Report
声明
36
Share
相关推荐
in to comment
Add emoji
喜欢TA的作品吗?喜欢就快来夸夸TA吧!
You may like
相关收藏夹
Log in
6Log in and synchronize recommended records
36Log in and add to My Favorites
评论Log in and comment your thoughts
分享Share






























































































