YI ·FAN l 深化设计 (售楼部深化)
苏州/室内设计师/3年前/113浏览
版权
YI ·FAN l 深化设计 (售楼部深化)
YI·FAN l 深化设计 🛰️:Both_eyes
⭐️ 说一说什么是深化设计;深化设计能为设计方和甲方带来什么以及在项目现场起到的作用!
🔥🔥🔥(欢迎行业大神共同讨论)
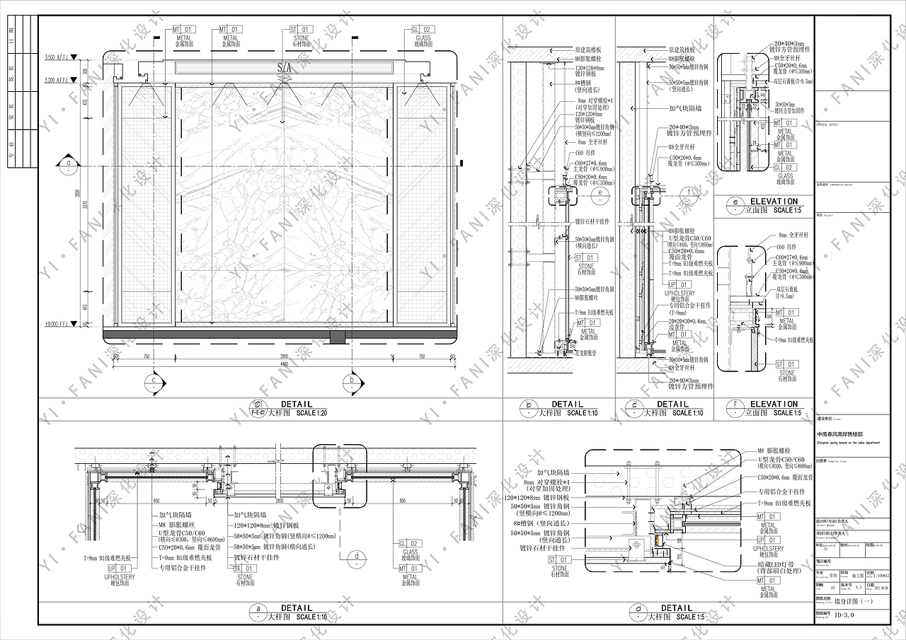
⭐️⭐️ 深化设计的含义:就是依原设计为依据,结合工程现场,对一些图纸和现场不相吻合的地方进行修改或重新设计,并且要求监督现场施工。
⭐️⭐️⭐️ 深化设计的目的:深化设计与隐蔽验收、签证单、竣工图之前要有相互的逻辑关系。
⭐️⭐️⭐️⭐️ 深化设计主要的任务点:收口、节点、大样
⭐️⭐️⭐️⭐️⭐️⭐️ 深化设计师与项目的配合:1.与项目部配合做好各材料小样得到甲方确认。2.放线图确认。3.深化设计图需原设计单位签字确认盖章后交付施工单位
4
Report
声明
1
Share
相关推荐
in to comment
Add emoji
喜欢TA的作品吗?喜欢就快来夸夸TA吧!
You may like
相关收藏夹
Log in
4Log in and synchronize recommended records
1Log in and add to My Favorites
评论Log in and comment your thoughts
分享Share



























































































