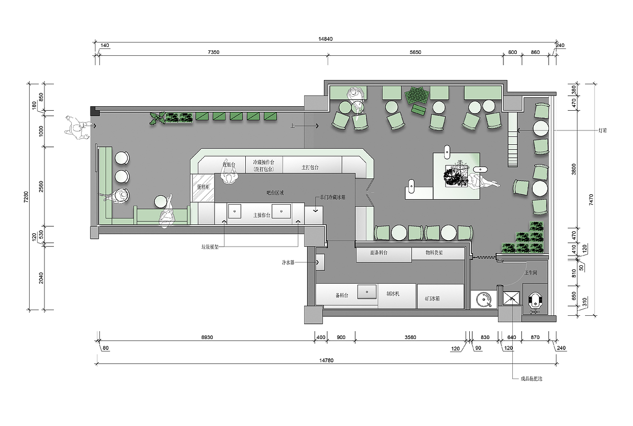
乐捣捣“富氧美学”奶茶空间
泉州/室内设计师/4年前/1003浏览
版权
乐捣捣“富氧美学”奶茶空间
推广案名:乐捣捣
项目位置:福建厦门
项目面积:128M²
设计团队:行光空间
我所期待的健康与快乐——由自然而生,向自然而活
乐捣捣以自然健康为理念,不止是产品,富氧健康也同样体现在空间美学上。
11
Report
声明
41
Share
相关推荐
in to comment
Add emoji
喜欢TA的作品吗?喜欢就快来夸夸TA吧!
You may like
相关收藏夹
Log in
11Log in and synchronize recommended records
41Log in and add to My Favorites
评论Log in and comment your thoughts
分享Share




































































